House in Praia da Baleia: A Forest-Integrated Beach House Design by TWO Arquitetura
A renovated beach house that fully integrates with the Atlantic forest, offering year-round nature immersion and architectural sensitivity.
Living with the Forest in São Sebastião, Brazil
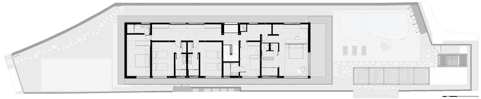
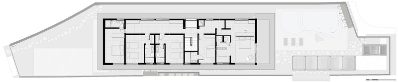
Located in Praia da Baleia, São Sebastião, this 400-square-meter residence by TWO Arquitetura redefines the traditional concept of a beach house through a deeply immersive forest-integrated beach house design. Completed in 2022, the project transforms an existing home into a place that harmonizes with the surrounding Atlantic rainforest, offering a living experience that is as tactile and emotional as it is architectural.


A Radical Inversion: Embracing the Forest, Not Avoiding It
Originally, the house was positioned to turn its back to the forest, with social spaces oriented away from nature. But during a site walk, the architects had a decisive shift in perspective. Enchanted by the lush vegetation and natural ambiance, they chose to reverse the spatial logic. Rather than distancing the architecture from the woods, they embraced it, making the forest the central protagonist.


The renovation involved reorganizing the spatial program so that every key room—living areas, bedrooms, halls, and even bathrooms—offered views into the forest. The layout invites the sounds, textures, and moods of nature into everyday life, ensuring the house evolves alongside its environment.

Year-Round Connection to Nature
A central idea of the project was to eliminate seasonal limitations. This house isn't just for summer leisure; it’s also a winter retreat filled with warmth and intimacy. Cozy corners for family movie nights coexist with expansive spaces for multigenerational gatherings. Whether it's early morning sunlight filtered through trees or nighttime forest songs drifting into the bedrooms, the architecture amplifies seasonal moods while dissolving the line between indoors and outdoors.




The renovation’s atmosphere encourages residents to live in rhythm with the natural environment. It’s not merely a shelter; it’s a medium for experiencing the forest, shaped by weather, light, and wildlife.



Preserving the Old, Honoring the Site
Despite its transformation, the renovation maintained core elements of the original structure. Exposed wooden pilasters were retained, grounding the design in material continuity and memory. The tactile language of wood—aged, textured, and expressive—reinforces the notion that the house belongs to the site rather than imposing upon it.



This sense of humility and respect is foundational to the design philosophy. The house does not dominate the forest; it negotiates its presence, as if asking nature for permission to stay. Architectural choices reflect this attitude, prioritizing sensory connection over formal expression.



Architecture as a Background for Life
The forest-integrated beach house design aims to make architecture recede, allowing life and landscape to take the lead. Openings are carefully framed to bring the forest into focus. Rooms feel less like boxes and more like clearings in a wooded landscape. Lighting, material choices, and spatial arrangements are all in service of enhancing the experience of being immersed in nature.


Instead of one singular view or axis, the house offers multiple angles and moments—small encounters with trees, filtered shadows, reflections in windows—each contributing to a layered sense of place. The architecture becomes a facilitator for emotional and sensory awareness.


An Intimate Dialogue Between Architecture and Ecology
TWO Arquitetura’s House in Praia da Baleia stands as a quiet manifesto for a new kind of luxury: one rooted not in spectacle, but in presence. By re-centering the forest and approaching design with humility, the project sets a compelling example for coastal and tropical architecture. It proves that beach houses can be more than seasonal escapes—they can be living spaces that evolve with the forest and enrich our understanding of place, time, and belonging.




All Photographs are works of Evelyn Müller
Popular Articles
Popular articles from the community
Alton Cliff House: A Harmonious Retreat by f2a Architecture in Lake Country, Canada
Alton Cliff House blends corten steel, prefabrication, and sustainable design, creating a luxurious, energy-efficient retreat perched on Canadian cliffs.
The Ken Roberts Memorial Delineation Competition (Krob)
As the most senior architectural drawing competition currently in operation anywhere in the world, it draws hundreds of entries each year, awarding the very best submissions in a series of medium-based categories.
Split House: A Compact Urban Home Blending Privacy, Light, and Flexible Living in Japan
Compact Japanese home featuring DOMA space, flexible café potential, passive lighting, privacy zoning, and sustainable urban living design.
Free Architecture Competitions You Can Enter Right Now
No entry fees, real prizes. Here are the best free architecture competitions open for submissions in 2026.
Similar Reads
You might also enjoy these articles
Bamboo Housing Challenge 2026: Design Affordable, Sustainable Homes Using Bamboo
An international design competition by Bamboo U and IBUKU inviting architects and designers to reimagine affordable housing using bamboo — with the winning design built full-scale in Bali.
Computational Design & Education: Beegraphy Design Awards Introduces 7th Category (Featuring Jiyun's Innovative Approach)
Dive into Beegraphy’s 7th Design Awards category, where computational design meets education to create immersive, interactive learning tools, inspired by Jiyun’s work.
From Parametric Lighting to Urban Furniture: Join the 2nd Workshop in Beegraphy’s Computational Design Series
Dive into Cutting-Edge Design Techniques and Practical Applications with Industry Experts
Explore Architecture Competitions
Discover active competitions in this discipline
The International Standard for Design Portfolios
The Global Benchmark for Architecture Dissertation Awards
The Global Benchmark for Graduation Excellence
Challenge to reimagine the Iron Throne
Comments (0)
Please login or sign up to add comments
No comments yet. Be the first to comment!