House on the Rias Coast Architecture: Coastal Concrete Residence Rooted in Topography and Townscape by no.10 NOMURA
Coastal concrete house in Japan echoes Rias cliffs and wind-blocking alleys, merging local materials, topography and protective urban form strategies.
House on the Rias Coast by no.10 NOMURA Co., Ltd. is a 567 square meter coastal residence in Japan that translates dramatic maritime geology and a centuries-old urban wind strategy into contemporary domestic architecture. Overlooking the Sea of Japan and the rugged, indented Rias shoreline while backing onto a historic “Masu-gata” alley network shaped to deflect harsh northerly winds, the project fuses landform, climate, and local material expression into a two-tiered concrete and wood-grained envelope that feels carved from its setting.


Coastal Setting and Rias Geomorphology
The home occupies a site commanding long water views across an intricate Rias coastline—a drowned river valley landscape marked by jagged inlets, stepped rock shelves, vegetated ridges, and sea-cut voids referred to locally as “cave gate.” Rather than frame the coast as a distant picture window view, the design abstracts its layered geology into massing, surface texture, and sectional moves. Heavy base, lighter crown; rock below, forest above; incision, recess, and overhang all mirror the reading of cliff and slope visible from the site.


Urban Fabric and Masu-gata Alley Logic
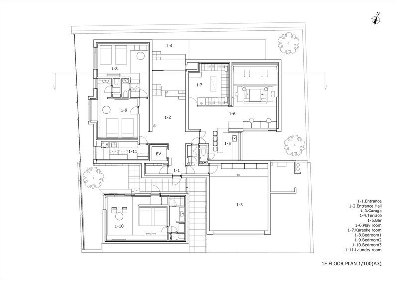
Behind the waterfront panorama lies an opposite scale condition: a labyrinthine matrix of narrow alleys that crank and shift direction in a square-based “Masu-gata” pattern historically used to slow and break the force of northerly winter winds. These dogleg lanes also yield surprise views, intimate thresholds, and layered privacy between neighbors. The ground floor plan of the house intentionally incorporates this alley logic by dividing the building volume into offset segments that create protected pockets, wind breaks, and pedestrian-scaled passages within the parcel boundary, easing the transition from town to home.


Climatic Massing and Wind Moderation
Responding to seasonal northerlies sweeping in from the sea, the north-facing frontage is lifted one level above surrounding grade to form a stepped, three-dimensional square volume that buffers airflow and reduces wind tunneling toward adjacent streets. Conversely, the south side recedes as floors rise, creating a sloped, hill-like profile that softens bulk toward the neighborhood and opens sun access to outdoor terraces. These counter-gestures—lifted shield to the north, eroding terrace to the south—deliver both climatic performance and contextual empathy.


Landscape Translation in Exterior Expression
Material stratification makes the house read as a miniature section of coast. At the lower level, exposed concrete is tooled and washed to produce a rugged, rock-like texture reminiscent of tide-sculpted stone outcrops. Above, board-formed concrete using locally sourced cedar planks imprints a vertical grain that evokes the forested upper bands common along the Rias slopes. Weathering is embraced; as surfaces age, color variation and mineral staining deepen the analogy to lichen-marked rock and weathered timber fences prevalent in the village.



Local Material Ecology
Aggregates embedded in the lower-level concrete originate from the region, reinforcing physical and cultural specificity. Cedar boards used for the upper-level formwork leave their grain as permanent relief, memorializing local forestry within the façade. This coupling of site-sourced mineral and vegetal textures ties the architecture to place while reducing transport impacts and celebrating vernacular craft traditions that remain visible in neighboring board-fenced houses.


Interior–Exterior Continuity Through Two-Tiered Finish Strategy
The conceptual rock‑and‑forest section carries inside. Ground level interiors deploy heavier, cooler surface treatments and darker tones that register as carved out of mass, aligning with circulation paths that echo alley compressions. Upper levels shift to warmer wood expressions, softened light, and expanded glazing toward sea views, recapitulating the transition from craggy shoreline to treed slope. This layered interior finish strategy dissolves the threshold between envelope and inhabitation, letting residents experience the coastal section as lived gradient.


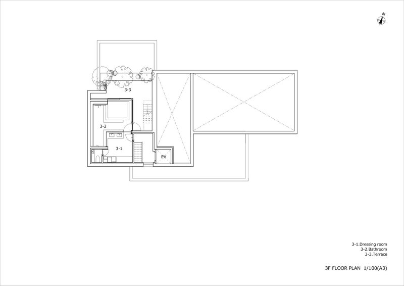
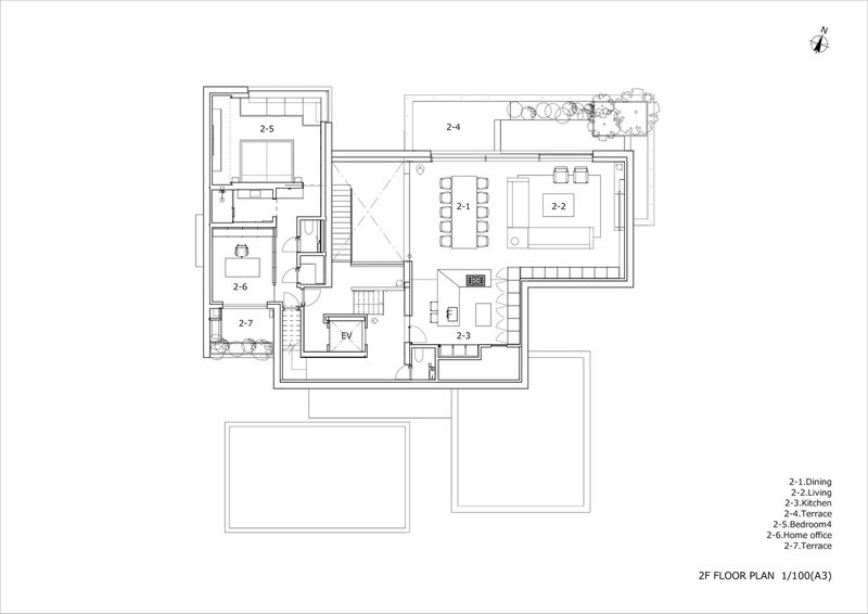
Plan Fragmentation and Contextual Scale
Breaking the 567 square meter program into articulated ground-level segments helped reconcile the substantial residence with the village’s finer grain. Entry courts, inflected walls, and staggered connectors create a walkable sequence reminiscent of turning corners in the Masu-gata alleys. The entrance hall, faceted like an eroded inlet, mediates between public street life and domestic retreat while referencing the “cave gate” voids cut by sea and wind into the Rias cliffs.

Views, Light, and Seasonal Living
Glazing is positioned to capture layered readings of sea, sky, and the interstitial townscape without overexposing interiors to winter wind or summer glare. Deep reveals in the heavier base protect openings, while setbacks above form covered balconies and lookout apertures oriented to shifting coastal light. Living and dining zones leverage long oblique views that slide past protective walls, amplifying spatial depth and reinforcing the sensation of inhabiting landscape rather than simply looking at it.

Weathering as Time-Based Design
Because neighboring dwellings exhibit patinated board fences and age-softened materials, the design team targeted an exterior specification that would weather gracefully into the streetscape. Washed aggregate concrete, cedar-grain impressions, and a restrained finish regime allow salt air, rain, and seasonal temperature swings to etch subtle variation over time. The evolving façade ensures the new construction will not remain visually raw in contrast to its historic context, instead gradually knitting into the coastal community fabric.

Cultural Continuity and Future Landscape
By drawing directly from local material stocks and long-standing environmental adaptations—wind-deflecting street grids, layered coastal ecology, and timber craft—the project aims to extend, rather than overwrite, the region’s spatial DNA. The architects frame the house as a generational insertion that will weather, settle, and eventually read as part of the inherited coastal landscape, weaving contemporary domestic life into an ongoing cultural and geological story.


House on the Rias Coast architecture by no.10 NOMURA reimagines the single-family coastal home as topographic translation, climatic shield, and cultural bridge. Through stratified concrete textures, alley-derived ground planning, north wind mitigation, and interior–exterior continuity rooted in local materials, the project binds a large private residence to the small-scale fabric and dramatic shoreline that define its Japanese setting. As it ages, its weathered surfaces and carved massing will deepen alignment with the Rias coast it was shaped to honor.

All the photographs are works of Takumi Ota
Popular Articles
Popular articles from the community
TGK Nirasaki Plant: A Smart Factory Blending Technology, Landscape, and Wellness
Smart factory in Japan blending IoT manufacturing, scenic trail design, natural ventilation, and landscape integration to enhance user experience and sustainability.
Magic Box Office Barcelona Innovative Sustainable Workplace Design
Innovative sustainable office design featuring triangular form, ceramic façade, flexible interiors, natural light optimization, and creative workspace for modern work culture.
Marvila Apartment Renovation in Lisbon: A Bright Minimalist Attic Transformation by KEMA Studio
Bright attic transformed into minimalist Lisbon apartment with skylights, sustainable materials, open plan layout, and industrial-inspired interior design elements.
Alton Cliff House: A Harmonious Retreat by f2a Architecture in Lake Country, Canada
Alton Cliff House blends corten steel, prefabrication, and sustainable design, creating a luxurious, energy-efficient retreat perched on Canadian cliffs.
Similar Reads
You might also enjoy these articles
Bamboo Housing Challenge 2026: Design Affordable, Sustainable Homes Using Bamboo
An international design competition by Bamboo U and IBUKU inviting architects and designers to reimagine affordable housing using bamboo — with the winning design built full-scale in Bali.
Computational Design & Education: Beegraphy Design Awards Introduces 7th Category (Featuring Jiyun's Innovative Approach)
Dive into Beegraphy’s 7th Design Awards category, where computational design meets education to create immersive, interactive learning tools, inspired by Jiyun’s work.
From Parametric Lighting to Urban Furniture: Join the 2nd Workshop in Beegraphy’s Computational Design Series
Dive into Cutting-Edge Design Techniques and Practical Applications with Industry Experts
Explore Architecture Competitions
Discover active competitions in this discipline
The International Standard for Design Portfolios
The Global Benchmark for Architecture Dissertation Awards
The Global Benchmark for Graduation Excellence
Challenge to reimagine the Iron Throne
Comments (0)
Please login or sign up to add comments
No comments yet. Be the first to comment!