House São Pedro FGMF: A Modern Brazilian Home Blending Architecture with Nature
House São Pedro by FGMF in Brazil combines stacked volumes, glass facades, and wooden panels for a seamless indoor-outdoor living experience.
The House São Pedro FGMF is a contemporary residence in Porto Feliz, São Paulo, Brazil, designed by the renowned FGMF architecture studio. Completed in 2020 and spanning 538 m², the home reflects a sophisticated balance between modern design principles and the lush natural surroundings. The architectural concept emphasizes openness, integration with nature, and the creation of vibrant living spaces that seamlessly transition between indoor and outdoor areas.



Design Concept and Architectural Form
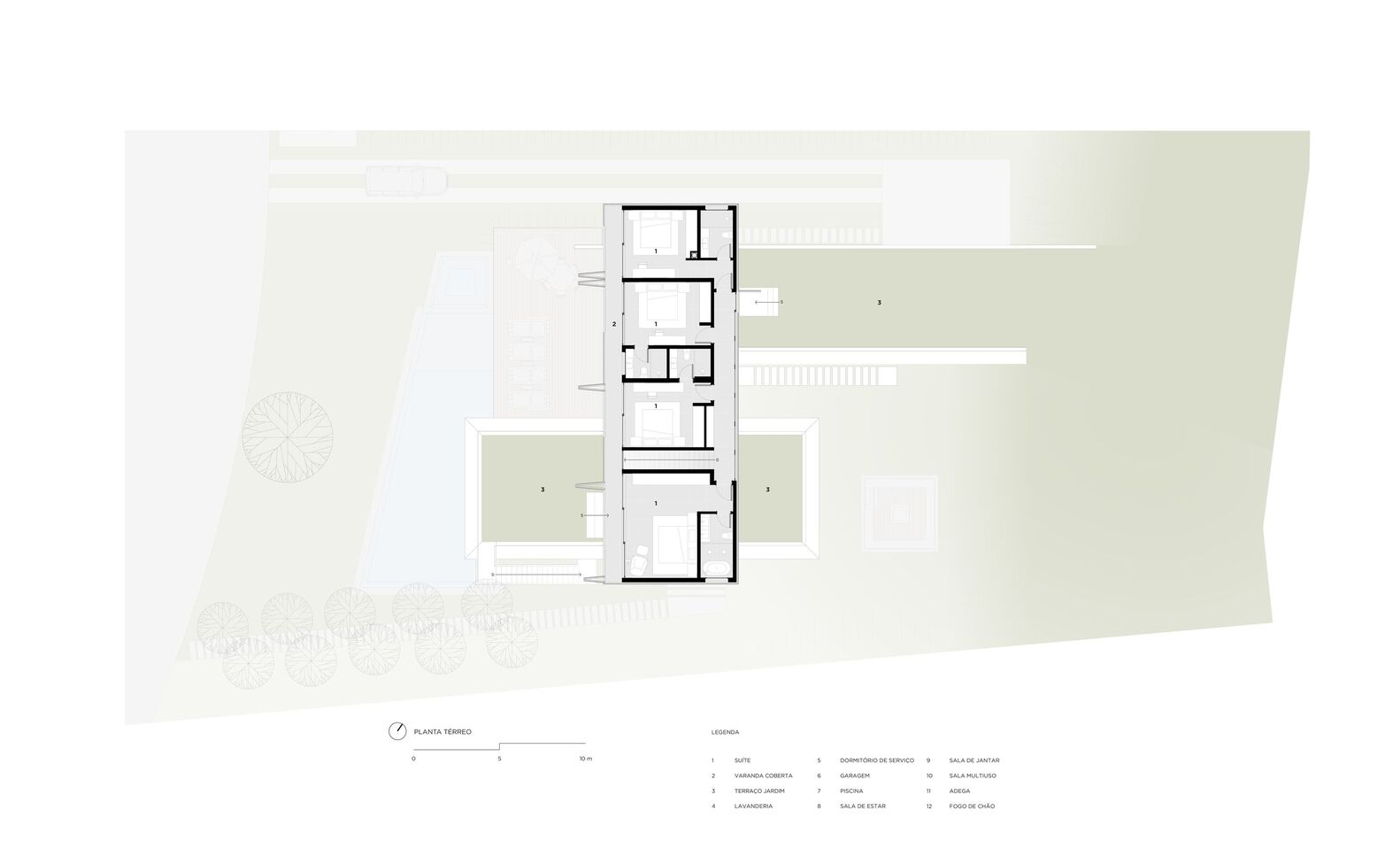
The design of House São Pedro FGMF is rooted in the idea of stacked volumes. The ground floor, designed with extensive glazing, accommodates the social zones, including the living room, home theater, wine cellar, kitchen, service areas, and garage. Above it, the upper block is oriented transversely, housing the private suites of the residents.


This clever arrangement creates dynamic outdoor spaces, such as a shaded gourmet balcony beneath the upper level and an uncovered terrace above the living area that offers privacy for the bedrooms. The placement of the home on a slightly sloped terrain provides both scenic views of the lush surroundings and privacy from neighboring properties.


Materiality and Facade Treatment
The distinct materiality of the home reinforces the concept of stacked blocks. The ground floor is enveloped in floor-to-ceiling glass, creating a transparent connection to the garden and pool areas. In contrast, the upper block features large slatted wooden panels, including fixed and folding elements, which offer shade, ventilation, and a warm aesthetic.


This interplay of glass and wood not only emphasizes the contrast between openness and privacy but also enhances the building’s modern Brazilian architectural character.


Integration of Interior and Exterior
The house is positioned to maximize natural views and make the most of its terrain. The pool, located at the front of the lot, extends under the elevated living room, creating the illusion that the structure floats above a reflective water surface.


The interior design, also developed by FGMF, complements the architectural language by combining minimalism with warmth. Natural materials, soft textures, and curated furnishings create a comfortable yet elegant atmosphere, ensuring that the interior remains in harmony with the outdoor environment.


Spatial Experience and Functionality
The open-plan layout of the ground floor enhances visual and physical connections between spaces. Large sliding glass panels allow the living and dining areas to extend effortlessly to the outdoor terrace, solarium, and poolside spaces. The upper floor, designed for privacy, offers expansive views while maintaining a sense of retreat and intimacy.


The interiors embrace a palette of wood, neutral tones, and modern furniture, creating a balance between transparency and coziness. This cohesive approach ensures that House São Pedro FGMF is both a luxurious residence and a warm family home.


The House São Pedro FGMF is a testament to contemporary Brazilian residential design, blending transparency, natural materials, and architectural elegance. Through its strategic composition of volumes, seamless indoor-outdoor integration, and refined interiors, the house creates an immersive living experience that celebrates both comfort and nature.



All the photographs are works of Israel Gollino
Popular Articles
Popular articles from the community
Filtering Space: A Gradual Spatial Experience
From urban intensity to spatial calm.
Residence BB 214: Quiet Precision in Ludhiana
Minimalist Architecture & Design Studio composes a residence of white volumes, filtered light, and deliberate restraint in Punjab's urban fabric.
Guangzhou's Twin Towers Interiors Move Like Water
DuShe Architectural Design shapes the lobbies of a massive Guangzhou transit hub with undulating ceilings and deep geological materiality.
MAKER architecten Rewire a 1972 Brutalist Dormitory on the VUB Campus as a Living Lab
A modular renovation strategy in Belgium breathes new life into Willy Van Der Meeren's modernist student housing without erasing its concrete bones.
Similar Reads
You might also enjoy these articles
Bamboo Housing Challenge 2026: Design Affordable, Sustainable Homes Using Bamboo
An international design competition by Bamboo U and IBUKU inviting architects and designers to reimagine affordable housing using bamboo — with the winning design built full-scale in Bali.
Computational Design & Education: Beegraphy Design Awards Introduces 7th Category (Featuring Jiyun's Innovative Approach)
Dive into Beegraphy’s 7th Design Awards category, where computational design meets education to create immersive, interactive learning tools, inspired by Jiyun’s work.
From Parametric Lighting to Urban Furniture: Join the 2nd Workshop in Beegraphy’s Computational Design Series
Dive into Cutting-Edge Design Techniques and Practical Applications with Industry Experts
Explore Architecture Competitions
Discover active competitions in this discipline
The International Standard for Design Portfolios
The Global Benchmark for Architecture Dissertation Awards
The Global Benchmark for Graduation Excellence
Challenge to reimagine the Iron Throne
Comments (0)
Please login or sign up to add comments
No comments yet. Be the first to comment!