Hustle Hub – Moscow ZILART: A New Model for Urban Residential Architecture
Hustle Hub Moscow ZILART redefines urban residential architecture with a community-driven, mixed-use living model that unites diverse groups in one shared ecosystem.
Reimagining Urban Residential Architecture
Hustle Hub – Moscow ZILART is a visionary architectural proposal that challenges conventional models of city living. Designed to unite different social groups within a multi-layered residential ecosystem, the project positions itself as a pioneering example of urban residential architecture that blends private living, community engagement, and essential public amenities.
This project, developed by Екатерина Ефимова, uses the density and movement of Moscow's ZILART district as an opportunity to craft a new typology—one that brings people together through shared spaces, integrated lifestyle functions, and spatial transparency.
At its core, Hustle Hub is not just a housing solution; it is a social catalyst designed to enrich the experience of urban life and strengthen neighborhood identity.


Concept Vision: Uniting Urban Life Through Architecture
The central ambition of the Hustle Hub project is to create a cohesive residential complex that seamlessly integrates various groups of the population. Instead of separating functions, the project intentionally blends them, generating a dynamic architectural environment where everyday life naturally encourages interaction.
The design embraces:
- Mixed-use functionality that blends residential, commercial, and communal spaces.
- Shared activity zones ranging from cafés to children’s playrooms.
- Accessible public environments located at the ground level for maximum community engagement.
- Vertical and horizontal circulation transparency that connects users across multiple levels.
This architectural approach promotes continuous movement and encourages residents, visitors, and workers to participate in the collective rhythm of the building.
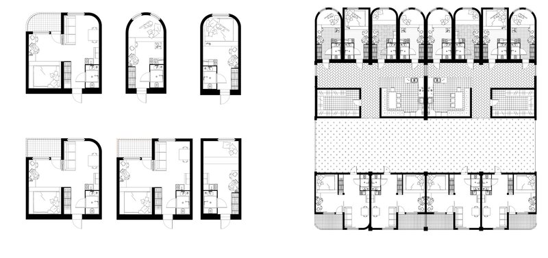
The Ground Floor: A Public Heart for the Entire Quarter
One of the defining elements of Hustle Hub is the transformation of the entire ground floor into an open public area. Designed as the social heart of the quarter, it brings together diverse amenities needed for modern urban living.
Key features include:
- Child development rooms and play areas
- Cafés and small dining spaces
- Recreational and sports zones
- Kindergartens and mini-kindergartens
- Flexible event and meeting pockets
By placing these programs at the base, the building actively dissolves traditional barriers between public and private architecture. The ground level becomes a seamless extension of the city—inviting, lively, and inclusive.
Spatial Strategy: Transparency, Layers, and Community
The architectural visualizations reveal an elegant interplay between solid residential blocks and transparent public connectors. A series of glazed corridors, elevated walkways, and light-filled atriums form the connective tissue of the development.
1. Vertical Transparency
Large glass volumes expose circulation paths and activity spaces, allowing visual dialogue between levels. This enables:
- Safe, visible communal spaces
- Stronger social connection
- Natural light penetration throughout the building
2. Horizontal Connectivity
Bridges and elevated terraces link residential clusters, enabling fluid movement and offering elevated views toward the courtyard and the city.
3. Architectural Rhythm
The repetition of minimalist facades, arches, and modular grids establishes a visual identity that blends contemporary urban design with a welcoming domestic scale.
The Courtyard: A Shared Urban Oasis
At the center of Hustle Hub lies an expansive courtyard that functions as both a social plaza and a private refuge for residents.


Key design outcomes:
- A protected micro-climate suitable for year-round use
- Visual continuity between indoor and outdoor zones
- Opportunities for events, leisure, and community activities
The courtyard acts as the grounding element for the project—balancing density with openness.
Massing and Urban Integration
The ZILART district is known for its mix of modern residential blocks, cultural venues, and creative industries. The project respects this context by maintaining a strong urban edge while introducing its own architectural identity.
The rendered site axonometry shows how Hustle Hub integrates into the surrounding urban fabric:
- Perimeter blocks frame the central courtyard
- Taller volumes mark major access points
- Public connectors create "porosity" at pedestrian levels
- Material tones and geometric forms complement the district’s architectural language
The result is a development that blends seamlessly with its neighbors while still asserting itself as a contemporary landmark.
Social Impact: Architecture as a Unifying Force
Hustle Hub is grounded in the belief that architecture can help bridge divides between people. By layering residential comfort with public life, the project provides:
- Spaces for families, youth, professionals, and seniors
- Opportunities for collaboration and interaction
- Shared infrastructure that supports diverse lifestyles
This unifying vision creates a living environment where communities are not just formed—they flourish.
Architectural Expression: A Balance of Solidity and Lightness
Visually, the project strikes a careful balance between:
- Solid modular residential masses featuring repetitive arched openings
- Lightweight frames and pergolas that crown upper levels
- Transparent circulation volumes that reveal the life of the building
Together, these elements construct a layered architectural composition that feels grounded yet open, private yet communal.
New Paradigm for Urban Residential Architecture
Hustle Hub – Moscow ZILART is more than a residential complex; it is an urban prototype for future-oriented, community-driven living. By merging hospitality, public infrastructure, and residential design into one interconnected system, the project redefines what it means to live together in the modern city.
Through its innovative spatial strategy, transparent circulation networks, and rich ground-floor programming, Hustle Hub sets a new benchmark for urban residential architecture—a place where diversity meets design, and architecture becomes a catalyst for social connection.
Project by Екатерина Ефимова.

Popular Articles
Popular articles from the community
Rede Arquitetos Builds an Open-Air School in Fortaleza That Doubles as a Neighborhood Living Room
Educar II SESC-CE folds sports, dance, and community gathering into a courtyard campus wrapped in mesh and tropical color.
Split House: A Compact Urban Home Blending Privacy, Light, and Flexible Living in Japan
Compact Japanese home featuring DOMA space, flexible café potential, passive lighting, privacy zoning, and sustainable urban living design.
20 Most Popular Commercial Architecture Projects of 2025
From sustainable market concepts to heritage factories, the commercial buildings and proposals that drew the most attention on uni.xyz this year.
Similar Reads
You might also enjoy these articles
Architectural Competition: Create a Luxury Waterfront Community in the UAE!
Mira Developments announces an open competition for the pre-concept design of Mira Coral Bay in Ras Al Khaimah, UAE
Parametric Design: What Can You Learn from the 1st Workshop of Beegraphy?
Discover the Fundamentals and Advanced Techniques of Parametric Design
Feast of flight factory
A new ecological order with sustainable food resources-insects
Beyond Blueprints : How Architecture Presentation Boards Define The Design Narratives?
Unveiling the Art and Strategy Behind Architectural Storytelling
Explore Architecture Competitions
Discover active competitions in this discipline
The International Standard for Design Portfolios
The Global Benchmark for Architecture Dissertation Awards
The Global Benchmark for Graduation Excellence
Challenge to reimagine the Iron Throne
Comments (0)
Please login or sign up to add comments
No comments yet. Be the first to comment!