Inaê House: Tropical Modernist Beach House in Praia do Forte by MACh Arquitetos
Inaê House by MACh Arquitetos blends tropical modernism, cultural heritage, and family legacy into a stunning beach residence in Praia do Forte.
Inaê House, designed by MACh Arquitetos, is a tropical modernist-inspired beach residence located in Praia do Forte, Salvador, Brazil. Completed in 2023, the house was conceived for a large mining family seeking a retreat that balances memory, affection, and a strong connection to nature. With an architectural narrative that merges cultural traditions, tropical modernism, and contemporary living, Inaê House stands as a remarkable example of Brazilian beach house architecture.

Architectural Concept and Family Legacy
The project was born from a family’s desire to create a home that could accommodate siblings, nephews, a matriarch, and friends. More than a residence, the house became a place of reunion, joy, and shared memory. Its architecture reflects hospitality and inclusivity, allowing private moments in enclosed patios while opening generously to the pool, garden, and surrounding forest.
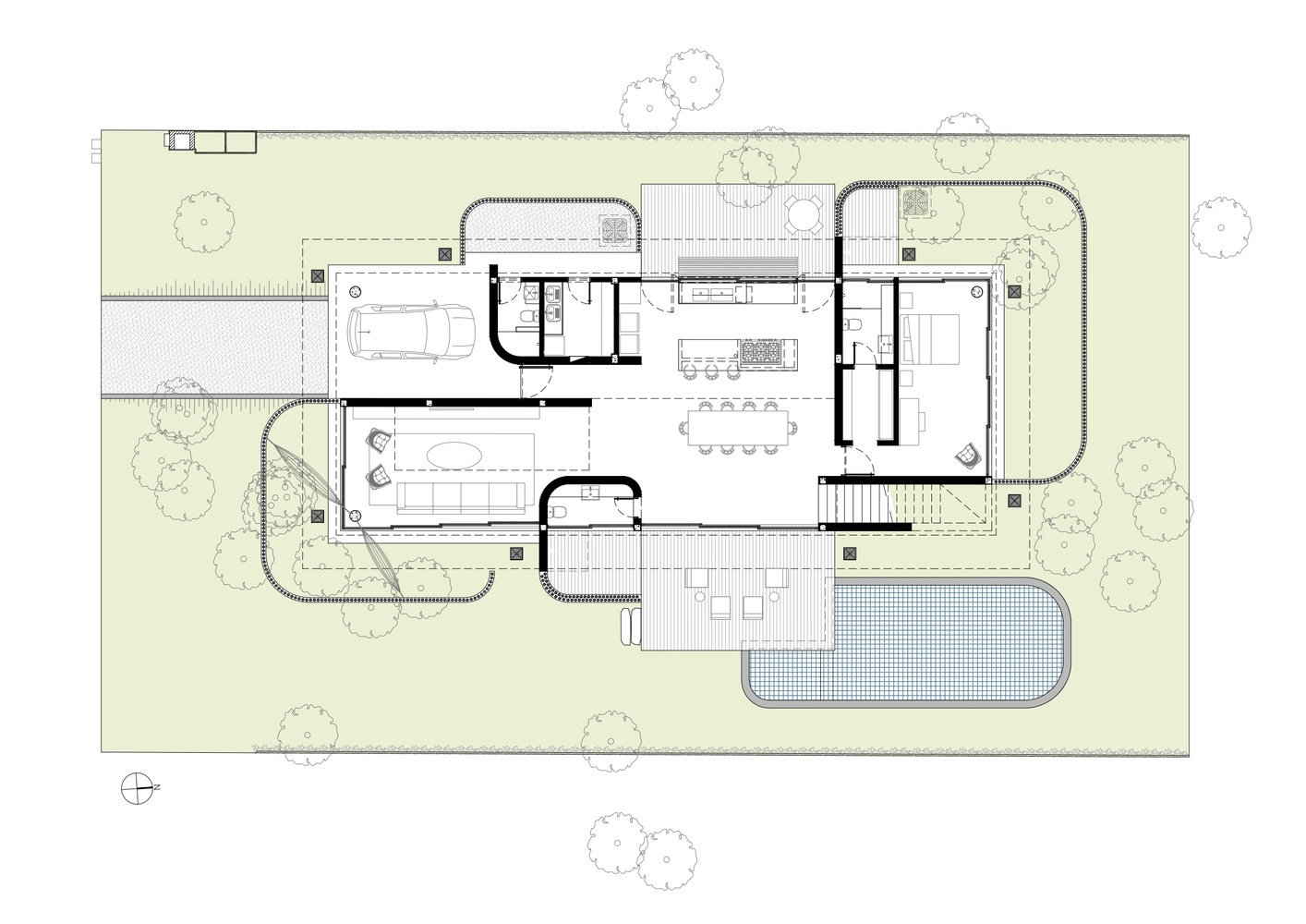
Design and Layout
The ground floor serves as the social hub of the house, adopting an open-plan design that connects seamlessly with outdoor living areas. Large sliding glass panels and open patios blur the boundary between interior and exterior, embracing tropical breezes and natural light. The pool and landscaped backyard enhance the social character of the space, creating a balance between leisure and relaxation.

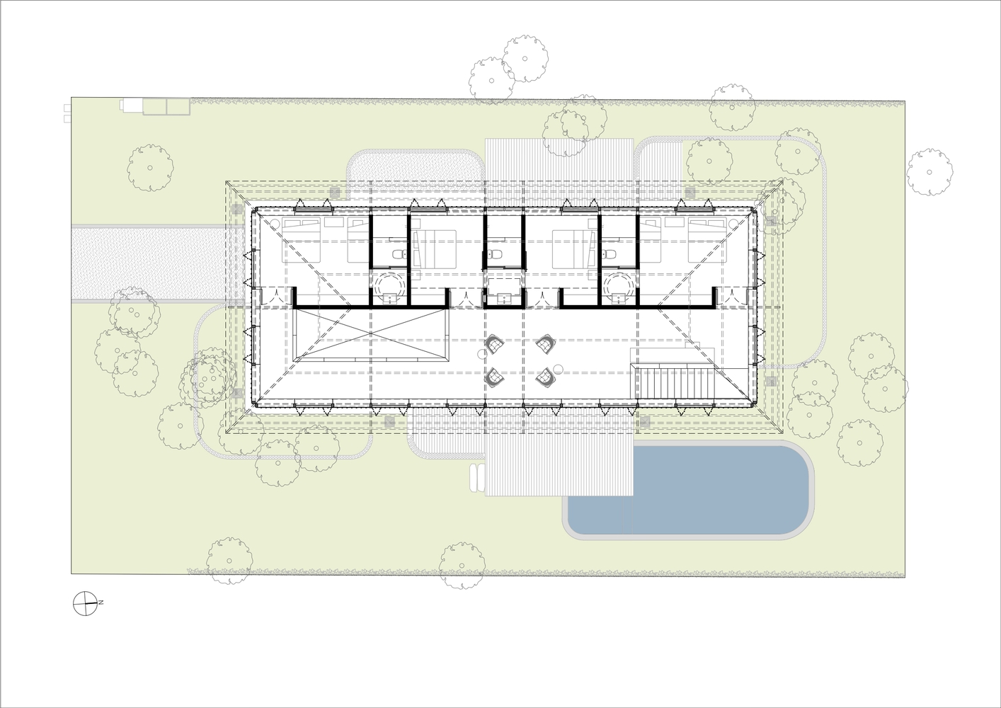
The upper level is supported by a concrete tray structure, which both sustains the roof and defines the geometry of the house. This strong horizontal element recalls the rational clarity of tropical modernism while framing wooden facades that bring warmth and texture.


Wooden Facade and Cultural References
One of the most striking features of Inaê House is its wooden facade system, crafted from joint covers that function both structurally and ornamentally. This facade draws inspiration from diverse cultural references, including Pataxó indigenous traditions, caiçara coastal architecture, and southern Brazilian techniques.

The chromatic treatment of the wood celebrates Iemanjá, the Afro-Brazilian sea goddess, evoking the spiritual connection between architecture, nature, and cultural identity. Through this symbolic design approach, the house transforms into more than a dwelling—it becomes an embodiment of memory, ancestry, and tropical coastal heritage.


Tropical Modernist Influence
MACh Arquitetos drew on tropical modernist principles, emphasizing climate-responsive design, open spatial planning, and integration with the natural environment. The interplay of concrete, wood, and glass creates a balance between robust structural expression and light, permeable spaces. The design promotes cross-ventilation, shade, and an immersive connection with the forest and seascape.


Inaê House is not simply a family beach house—it is a narrative of cultural memory, environmental harmony, and Brazilian modernist tradition reinterpreted for contemporary living. MACh Arquitetos has crafted a residence that embodies both the intimacy of family life and the expansive openness of tropical coastal architecture.







All photographs are works of Leonardo Finotti
Popular Articles
Popular articles from the community
Inverted Architecture Installation by Studio Link-Arc: Exploring the Intersection of Architecture and Living Organisms
Inverted Architecture Installation by Studio Link-Arc blends mycelium, sustainability, inverted design, ecological cycles, and urban adaptive architecture in Shenzhen.
Solar Steam: A Climate-Responsive Architecture That Redefines the Monument
A climate-responsive memorial architecture that transforms heat, decay, and time into a living system reflecting humanity’s ecological impact.
Atelier Macri Concept Store Interior Design by CASE-REAL
Atelier Macri store features a "ko" counter, walnut wood details, cork displays, blending retail, gallery, and seamless customer experiences.
Gads Hill Early Learning Center by JGMA: Adaptive Reuse Shaping Community-Focused Educational Architecture
Adaptive reuse transforms fragmented structure into vibrant early learning center with playful façade, natural light, and community-focused sustainable design.
Similar Reads
You might also enjoy these articles
Bamboo Housing Challenge 2026: Design Affordable, Sustainable Homes Using Bamboo
An international design competition by Bamboo U and IBUKU inviting architects and designers to reimagine affordable housing using bamboo — with the winning design built full-scale in Bali.
Computational Design & Education: Beegraphy Design Awards Introduces 7th Category (Featuring Jiyun's Innovative Approach)
Dive into Beegraphy’s 7th Design Awards category, where computational design meets education to create immersive, interactive learning tools, inspired by Jiyun’s work.
From Parametric Lighting to Urban Furniture: Join the 2nd Workshop in Beegraphy’s Computational Design Series
Dive into Cutting-Edge Design Techniques and Practical Applications with Industry Experts
Introducing Sphere by UNI: Pioneering a New Era in AEC Industry
Unlocking Global Potential with BIM and Agile Management
Explore Architecture Competitions
Discover active competitions in this discipline
The International Standard for Design Portfolios
The Global Benchmark for Architecture Dissertation Awards
The Global Benchmark for Graduation Excellence
Challenge to reimagine the Iron Throne
Comments (0)
Please login or sign up to add comments
No comments yet. Be the first to comment!