Industrial Building Renovation: Transforming Spaces for Modern Use
The article discusses the sustainable renovation of the Pad(dock) Factory, focusing on insulation, space optimization, and modern architectural solutions.
In recent years, the renovation of industrial buildings has become a trending topic in the field of architecture. The transformation of outdated, uninsulated factories into modern, functional spaces presents both challenges and opportunities. This article delves into the intricate process of industrial building renovation, showcasing a prime example from the Sungsoo district, known for its youthful and trendy atmosphere.


The Need for Renovation in Sungsoo
The Sungsoo district's approach to rejuvenating old industrial buildings involves rough concrete finishes and expansive glass storefronts, a style that has revitalized the area both economically and culturally. Yet, beneath this modern facade lies a common issue: poor insulation. The Pad(dock) Factory and Office Renovation project by one-aftr highlights how addressing this fundamental problem can lead to significant improvements in building functionality and sustainability.





Challenges and Solutions in Renovating Industrial Buildings
The primary challenge in renovating industrial buildings like the one in Sungsoo is improving insulation without compromising the structure's industrial character. The project in focus involved a two-story, L-shaped concrete structure with brick cladding, typical of many industrial buildings in the area. The renovation process entailed reconfiguring the layout to optimize logistical flow and applying tailored insulation techniques to meet the thermal needs of different areas.





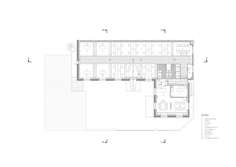
Ground Floor Transformation
The renovation strategy involved consolidating all production and storage areas on the ground floor. This reconfiguration streamlined the entire production process, from arrival and processing to storage and distribution. Insulation on this level was minimized due to the radiant heat produced by the machinery, showcasing an innovative approach to energy efficiency.



Second Floor Centralization
The office space, initially spread across two levels, was centralized on the second floor. This area received thicker insulation to compensate for the lack of internal heat sources, highlighting the project's tailored approach to insulation and thermal comfort.


The Importance of Insulation in Renovation Projects
The Pad(dock) Factory renovation demonstrates the critical role of insulation in transforming old industrial buildings into comfortable and energy-efficient spaces. By adopting a strategic design approach, the project achieved a distinctive vertical crenulation effect, enhancing the building's aesthetic while improving its thermal performance.



Reimagining Preservation Through Sustainable Renovation
The concept of preservation in architecture is evolving. In the context of reducing our carbon footprint, the Pad(dock) Factory project exemplifies how old buildings can be equipped with modern features to ensure their prolonged survival. This sustainable approach to renovation not only preserves the historical essence of industrial buildings but also transforms them into viable spaces for contemporary use.








The renovation of industrial buildings presents a unique opportunity to blend historical preservation with modern sustainability practices. The Pad(dock) Factory and Office Renovation project serves as a benchmark for architects and developers looking to breathe new life into old structures. By focusing on critical elements such as insulation and spatial reconfiguration, it is possible to transform industrial relics into vibrant, energy-efficient spaces that meet the demands of today's users.




All photographs are work of Jang Mi
Popular Articles
Popular articles from the community
The Ken Roberts Memorial Delineation Competition (Krob)
As the most senior architectural drawing competition currently in operation anywhere in the world, it draws hundreds of entries each year, awarding the very best submissions in a series of medium-based categories.
On the Brooks House by Monsoon Collective – A Contemporary Kerala Home Rooted in Tradition
Kerala home blending tradition and modernity with water-inspired design, brick architecture, courtyard planning, and sustainable rainwater harvesting strategies.
Flamboyant House by Juliana Camargo + Prumo Projetos
Modern Brazilian house integrating existing tree, pool, and volumes with glass, wood, and transitional spaces blending interior, exterior, and landscape seamlessly.
Inverted Architecture Installation by Studio Link-Arc: Exploring the Intersection of Architecture and Living Organisms
Inverted Architecture Installation by Studio Link-Arc blends mycelium, sustainability, inverted design, ecological cycles, and urban adaptive architecture in Shenzhen.
Similar Reads
You might also enjoy these articles
Bamboo Housing Challenge 2026: Design Affordable, Sustainable Homes Using Bamboo
An international design competition by Bamboo U and IBUKU inviting architects and designers to reimagine affordable housing using bamboo — with the winning design built full-scale in Bali.
Computational Design & Education: Beegraphy Design Awards Introduces 7th Category (Featuring Jiyun's Innovative Approach)
Dive into Beegraphy’s 7th Design Awards category, where computational design meets education to create immersive, interactive learning tools, inspired by Jiyun’s work.
From Parametric Lighting to Urban Furniture: Join the 2nd Workshop in Beegraphy’s Computational Design Series
Dive into Cutting-Edge Design Techniques and Practical Applications with Industry Experts
Introducing Sphere by UNI: Pioneering a New Era in AEC Industry
Unlocking Global Potential with BIM and Agile Management
Explore Architecture Competitions
Discover active competitions in this discipline
The International Standard for Design Portfolios
The Global Benchmark for Architecture Dissertation Awards
The Global Benchmark for Graduation Excellence
Challenge to reimagine the Iron Throne
Comments (0)
Please login or sign up to add comments
No comments yet. Be the first to comment!