Industrial Studio Design in Montreal: Ivy Studio's Transformation of Studio Idéal
Studio Idéal in Montreal blends industrial heritage with modern design, creating a functional and inspiring photography studio space.
A New Identity for an Industrial Gem
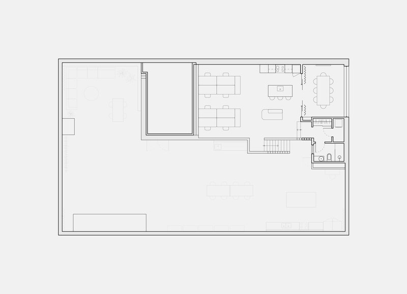
Located in the heart of Montreal's Ville-Marie borough, Studio Idéal is a shining example of how industrial spaces can be transformed into functional, modern, and aesthetically striking environments. Designed by Ivy Studio, this 4,500-square-foot renovation combines old-world industrial charm with contemporary elegance. Originally a window cleaning service shop, the space now serves as a photography studio catering to culinary artists, offering a seamless fusion of design and utility.



The Ground Floor: A Space for Creativity
The ground floor of Studio Idéal is defined by its openness and dramatic verticality, boasting 21-foot ceilings that enhance the feeling of spaciousness. A bold backdrop wall sets the tone for the space, while an inviting lounge area and a fully equipped open kitchen provide a balance of relaxation and functionality.

The industrial character of the original building has been thoughtfully preserved, with newly sealed concrete floors and warm white painted masonry walls acting as a foundation for the modern design. Ample storage solutions and well-designed washrooms further emphasize the studio’s practical nature.

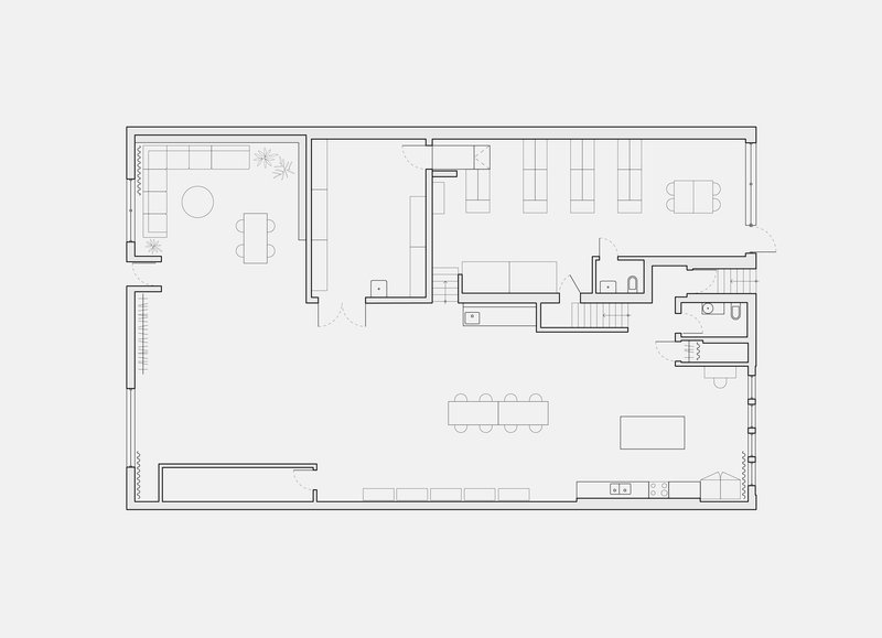
The Mezzanine: A Playful Workspace
Ascending to the mezzanine reveals a workspace that is as functional as it is whimsical. Inspired by the playful style of renowned architect Ricardo Bofill, the mezzanine features camel-colored stucco walls that evoke the texture and nostalgia of a sandcastle. This area houses workstations, a meeting room, a second kitchen, and an additional washroom, ensuring it meets the needs of creative professionals.


The centerpiece of the mezzanine is the open kitchen, a masterpiece of craftsmanship. Stainless steel millwork with a handmade matte finish creates a sleek and modern aesthetic, while cream-colored concrete slabs adorn the countertops and backsplash. The pièce de résistance is a custom stove hood made from natural brass, blending artistry and utility seamlessly.

Lighting Design: Creating Atmosphere
Lighting plays a crucial role in defining the atmosphere of Studio Idéal. Over the central dining and lounge areas, clusters of oversized light globes are suspended like ethereal clouds. These luminous installations cast a warm glow throughout the space, creating an ambiance that is both welcoming and inspiring.


A Celebration of Industrial Heritage
Studio Idéal is a love letter to Montreal's industrial past, celebrating its architectural roots while reimagining its potential for the future. Every corner of the space tells a story, from the raw materials preserved in the design to the modern finishes that enhance its utility.


The result is a studio that balances old and new, merging the industrial aesthetics of the past with contemporary innovation. The revitalized space stands as a testament to the enduring power of creativity and the ability of thoughtful design to transform and elevate its surroundings.




A Visionary Space in Montreal
Ivy Studio’s redesign of Studio Idéal redefines what industrial studio design can achieve. By honoring the building's history while adapting it for modern use, the project creates a space that is functional, beautiful, and brimming with character. Whether serving as a photography studio, a culinary workspace, or a gathering place, Studio Idéal embodies the best of Montreal's architectural spirit.


All Photographs are work of Virginie Gosselin
Popular Articles
Popular articles from the community
A Contemporary Take on Iranian Residential Architecture
A modern interior design in Mashhad that reinterprets brick, light, and spatial flow to create a warm, contemporary residential architecture.
On the Brooks House by Monsoon Collective – A Contemporary Kerala Home Rooted in Tradition
Kerala home blending tradition and modernity with water-inspired design, brick architecture, courtyard planning, and sustainable rainwater harvesting strategies.
Flamboyant House by Juliana Camargo + Prumo Projetos
Modern Brazilian house integrating existing tree, pool, and volumes with glass, wood, and transitional spaces blending interior, exterior, and landscape seamlessly.
Louis Malle Cinema: A Limestone Cultural Landmark Revitalizing Community Life in Prayssac
Limestone cinema extension with public forecourt, blending heritage and modern design to create flexible cultural spaces and strengthen community interaction.
Similar Reads
You might also enjoy these articles
The Ken Roberts Memorial Delineation Competition (Krob)
As the most senior architectural drawing competition currently in operation anywhere in the world, it draws hundreds of entries each year, awarding the very best submissions in a series of medium-based categories.
Waterfront Redevelopment and Urban Revitalization in Mumbai: Forging a New Dawn for Darukhana
A transformative waterfront redevelopment project reimagining Darukhana’s shipbreaking heritage into an inclusive urban future.
OUT-OF-MAP: A Call for Postcards on Feminist Narratives of Public Space
Rhizoma Design and Research Lab invites artists, designers, architects, researchers, and students to reflect on how feminist perspectives can reshape public space. Selected works will be exhibited in Barcelona, October 2026. Submissions open until 15 April 2026.
Documentation Work on Buddhist Wooden Temple
Architectural syncretism and cultural hybridity: A comparative study of the Buddhist temples in Chattogram Hill tracks
Explore Architecture Competitions
Discover active competitions in this discipline
The International Standard for Design Portfolios
The Global Benchmark for Architecture Dissertation Awards
The Global Benchmark for Graduation Excellence
Challenge to reimagine the Iron Throne
Comments (0)
Please login or sign up to add comments
No comments yet. Be the first to comment!