Innovation Hub Architecture: Designing for Growth and Synergy
The article explores the architectural design of the Incuba Next Innovation Hub, highlighting flexibility, sustainability, and community-driven innovation spaces.
Innovation hubs have become crucial in fostering collaboration and growth within industries. These spaces are designed to facilitate the exchange of ideas, nurture startups, and promote innovation. When it comes to innovation hub architecture, the focus is on creating environments that foster creativity, adaptability, and community while also supporting the operational needs of fast-growing businesses. The Incuba Next Innovation Hub in Aarhus, Denmark, designed by ADEPT and AART Architects, stands as an exemplary model of innovation hub architecture. This 18-story building serves as a dynamic space for IT and tech startups, combining modern design principles with a commitment to sustainability and functionality.



The Vision Behind the Incuba Next Innovation Hub
The Incuba Next Innovation Hub is more than just a collection of office spaces; it is a carefully crafted environment designed to promote synergy and growth among technology companies. For over three decades, Incuba in Aarhus has played a vital role in bridging the gap between academia, industry, and research. With the Incuba Next hub, the vision was to create an architecture that would enhance the ability of startups and scale-ups to thrive. This is a space where innovation can flourish, offering over 20,000 square meters of flexible office spaces, shared facilities, and stunning views across the city.








Architectural Design and Features of Innovation Hub Architecture
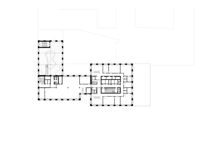
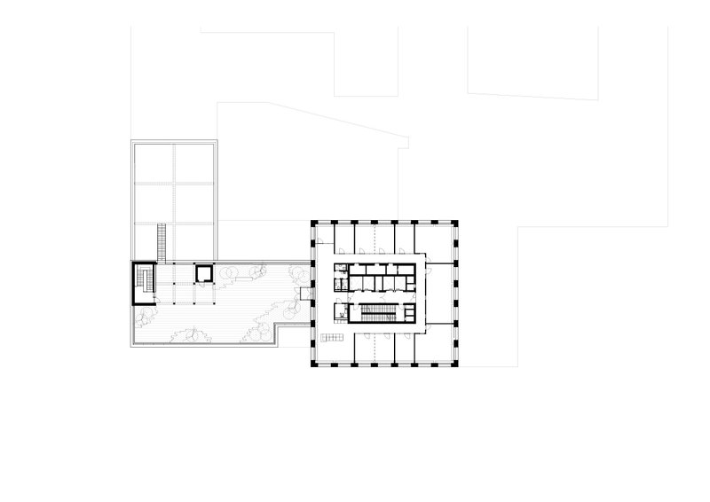
At the heart of the Incuba Next Innovation Hub's architecture is the integration of flexibility and functionality. The building is composed of 18 floors, each offering a versatile workspace that can be adapted to suit the evolving needs of its tenants. The architects, ADEPT and AART, designed the building to ensure a balance between modern, scalable office spaces and communal areas that encourage interaction and collaboration. Special attention was given to creating open, active, and welcoming spaces on the ground floor, where tenants and visitors can interact informally. These spaces blend seamlessly with the surrounding Incuba campus, contributing to the identity of the district.






The building’s exterior features Kolumba brick, which lends a sense of solidity and tactility, enhancing the overall aesthetic of the building while ensuring it harmonizes with the surrounding environment. This thoughtful approach to innovation hub architecture ensures that the building remains in tune with its surroundings, offering a welcoming, professional environment for businesses.






Sustainable Design and Energy Efficiency
Sustainability is a key consideration in the design of the Incuba Next Innovation Hub. The building has earned DGNB Gold certification for its environmental and operational standards. The architecture incorporates advanced solutions to optimize energy efficiency and reduce environmental impact. Notably, the Building Management System (BMS) is based on open-source technology, allowing tenants to use collected data in new and innovative ways. The MEP solutions, fire strategies, and construction techniques employed in the design also provide long-term flexibility, ensuring the building can evolve with changing needs.



Community and Collaboration in Innovation Hub Architecture
One of the most defining features of the Incuba Next Innovation Hub is its emphasis on fostering a sense of community. Innovation hubs are not just about physical space—they are about creating environments where ideas can collide, and collaboration can thrive. To support this, the Incuba Next building offers a variety of shared spaces, including a restaurant, café, and informal workspaces, where individuals from different companies can meet, share ideas, and form partnerships. The communal spaces are integral to the innovation hub architecture, as they encourage interaction and inspire creativity among the residents of the building.





Moreover, the building features landscaped roof terraces that provide semi-private spaces for relaxation and reflection. These areas allow tenants to enjoy unobstructed views of the city while also providing a break from the fast-paced work environment.





The Future of Innovation Hub Architecture
The Incuba Next Innovation Hub represents the future of innovation hub architecture—a space designed not just for work, but for the creation of ideas, solutions, and partnerships. By prioritizing flexibility, sustainability, and community, the architects have created a building that meets the evolving needs of the tech industry while offering an inspiring environment for growth. As the demand for innovation hubs continues to rise, the Incuba Next Innovation Hub sets a high standard for how architecture can support and foster innovation, collaboration, and sustainable development in the modern world.





All Photographs are work of Morten Aagaard Krogh
Popular Articles
Popular articles from the community
Treehouse Apartment: A Warm Timber Interior Blending Craft, Play, and Contemporary Living
Warm timber apartment with integrated treehouse, combining natural materials, craftsmanship, and playful design to create a flexible, family-oriented living environment.
Inverted Architecture Installation by Studio Link-Arc: Exploring the Intersection of Architecture and Living Organisms
Inverted Architecture Installation by Studio Link-Arc blends mycelium, sustainability, inverted design, ecological cycles, and urban adaptive architecture in Shenzhen.
A Contemporary Take on Iranian Residential Architecture
A modern interior design in Mashhad that reinterprets brick, light, and spatial flow to create a warm, contemporary residential architecture.
Atelier Macri Concept Store Interior Design by CASE-REAL
Atelier Macri store features a "ko" counter, walnut wood details, cork displays, blending retail, gallery, and seamless customer experiences.
Similar Reads
You might also enjoy these articles
The Ken Roberts Memorial Delineation Competition (Krob)
As the most senior architectural drawing competition currently in operation anywhere in the world, it draws hundreds of entries each year, awarding the very best submissions in a series of medium-based categories.
Waterfront Redevelopment and Urban Revitalization in Mumbai: Forging a New Dawn for Darukhana
A transformative waterfront redevelopment project reimagining Darukhana’s shipbreaking heritage into an inclusive urban future.
OUT-OF-MAP: A Call for Postcards on Feminist Narratives of Public Space
Rhizoma Design and Research Lab invites artists, designers, architects, researchers, and students to reflect on how feminist perspectives can reshape public space. Selected works will be exhibited in Barcelona, October 2026. Submissions open until 15 April 2026.
Documentation Work on Buddhist Wooden Temple
Architectural syncretism and cultural hybridity: A comparative study of the Buddhist temples in Chattogram Hill tracks
Explore Architecture Competitions
Discover active competitions in this discipline
The International Standard for Design Portfolios
The Global Benchmark for Architecture Dissertation Awards
The Global Benchmark for Graduation Excellence
Challenge to reimagine the Iron Throne
Comments (0)
Please login or sign up to add comments
No comments yet. Be the first to comment!