Innovative Brick Facade: Unveiling the Fa-brick Project by Society of Architecture
Explore the Fa-brick project in South Korea, showcasing an innovative brick facade that reimagines traditional materials for modern architecture.
In the realm of architecture, the facade not only defines the aesthetic appeal of a building but also influences its environmental interactions and internal atmosphere. The Fa-brick project by Society of Architecture in Gangnam-Gu, South Korea, showcases an innovative brick facade that redefines traditional building envelopes.





Concept and Design Philosophy of Fa-brick
Rethinking Brick as a Decorative and Functional Element
Fa-brick explores the potential of bricks, a fundamental building block, by using them in a non-traditional manner. Unlike conventional mortar-based construction, Fa-brick employs a method where bricks are hung on frames with fixing devices. This approach allows bricks to act as screens rather than opaque barriers, fostering a dynamic interaction between the building’s interior and the external environment.





Modular Design and Structural Innovation
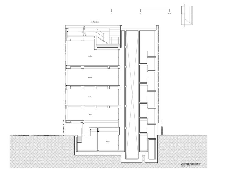
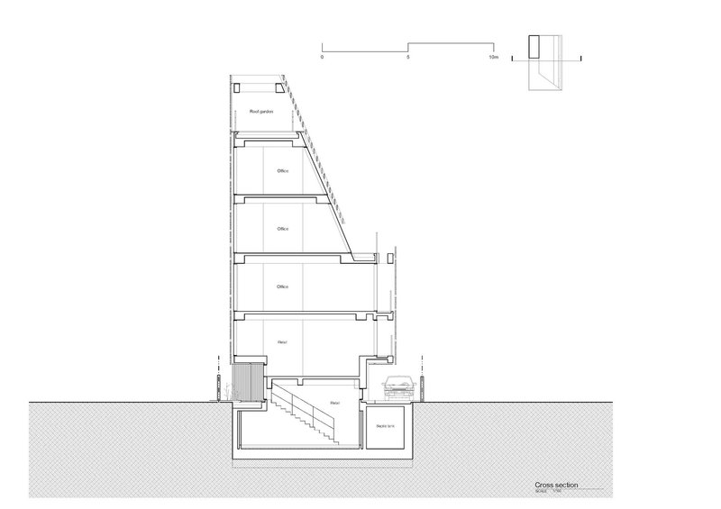
The design of Fa-brick is governed by modular thinking. The project adheres to precise measurements influenced by factors like material weight, production methods, and structural limits. Each element of the facade is meticulously planned, from the spacing between the bricks to the dimensions of the metal structures that integrate them into the building.



Architectural Features of the Fa-brick
The Facade as a Light Modulator
One of the standout features of the Fa-brick’s innovative brick facade is its ability to control light transmission. The spacing within the brick modules varies, allowing different amounts of light to penetrate the building at various times of the day, enhancing the ambiance within while maintaining a unique external aesthetic.



Integration with the Urban Environment
Despite its modern approach, Fa-brick harmonizes with the surrounding traditional brick buildings in Gangnam-Gu. It mirrors the common architectural language but introduces a nuanced expression that distinguishes it from its neighbors.



Technical Specifications and Construction
Material and Construction Techniques
The facade features 25mm thick bricks arranged in a pattern set by a minimum module of 430mm. This modular approach not only achieves a high degree of precision but also contributes to the facade’s visual rhythm. The metal structure binding the bricks follows intervals of 1,210mm, wrapping the entire building in a continuous, undulating wave of brick.



Sustainable Aspects and Innovation
By employing a hanging method for brick placement, Fa-brick minimizes the use of mortar and enhances the building's sustainability profile. This method also facilitates easier maintenance and potential material reuse, aligning with contemporary sustainable building practices.









The Impact of Innovative Brick Facades
The Fa-brick project by Society of Architecture represents a significant advancement in how bricks can be utilized not just as a structural component but as a key element in modern facade design. This innovative approach not only enhances the building's functionality and interaction with its surroundings but also sets a new standard for aesthetic innovation in urban architecture.









All photographs are work of Kyungsub Shin, Texture on Texture
Popular Articles
Popular articles from the community
On the Brooks House by Monsoon Collective – A Contemporary Kerala Home Rooted in Tradition
Kerala home blending tradition and modernity with water-inspired design, brick architecture, courtyard planning, and sustainable rainwater harvesting strategies.
Inverted Architecture Installation by Studio Link-Arc: Exploring the Intersection of Architecture and Living Organisms
Inverted Architecture Installation by Studio Link-Arc blends mycelium, sustainability, inverted design, ecological cycles, and urban adaptive architecture in Shenzhen.
Atelier Macri Concept Store Interior Design by CASE-REAL
Atelier Macri store features a "ko" counter, walnut wood details, cork displays, blending retail, gallery, and seamless customer experiences.
Solar Steam: A Climate-Responsive Architecture That Redefines the Monument
A climate-responsive memorial architecture that transforms heat, decay, and time into a living system reflecting humanity’s ecological impact.
Similar Reads
You might also enjoy these articles
The Ken Roberts Memorial Delineation Competition (Krob)
As the most senior architectural drawing competition currently in operation anywhere in the world, it draws hundreds of entries each year, awarding the very best submissions in a series of medium-based categories.
Waterfront Redevelopment and Urban Revitalization in Mumbai: Forging a New Dawn for Darukhana
A transformative waterfront redevelopment project reimagining Darukhana’s shipbreaking heritage into an inclusive urban future.
OUT-OF-MAP: A Call for Postcards on Feminist Narratives of Public Space
Rhizoma Design and Research Lab invites artists, designers, architects, researchers, and students to reflect on how feminist perspectives can reshape public space. Selected works will be exhibited in Barcelona, October 2026. Submissions open until 15 April 2026.
Documentation Work on Buddhist Wooden Temple
Architectural syncretism and cultural hybridity: A comparative study of the Buddhist temples in Chattogram Hill tracks
Explore Architecture Competitions
Discover active competitions in this discipline
The International Standard for Design Portfolios
The Global Benchmark for Architecture Dissertation Awards
The Global Benchmark for Graduation Excellence
Challenge to reimagine the Iron Throne
Comments (0)
Please login or sign up to add comments
No comments yet. Be the first to comment!