Innovative Educational Architecture in Remote Australia: Karratha Senior High School's Transformation
Exploring how Karratha Senior High School's architectural transformation enhances education in remote Australia through sustainable and culturally respectful design.
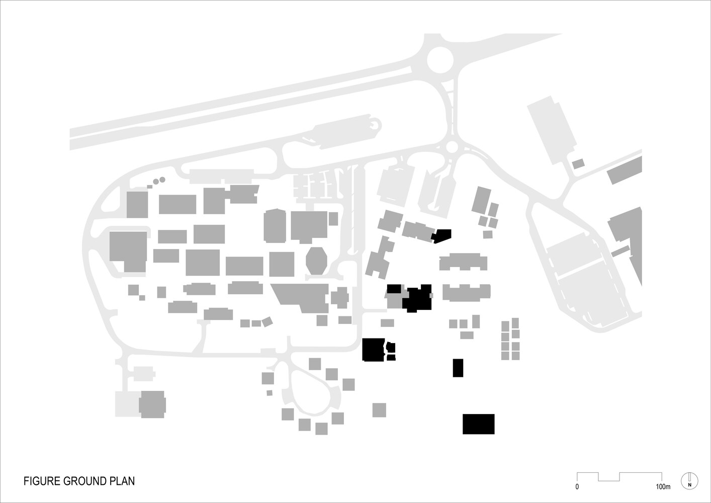
Karratha Senior High School, situated in the remote Pilbara region of Western Australia, has undergone a significant transformation, showcasing the potential of educational architecture in remote Australia. Designed by Iredale Pedersen Hook Architects, the school's new technical learning facilities exemplify how thoughtful design can enhance educational experiences in challenging environments.



Contextual Design in a Challenging Environment
Located in a cyclonic, semi-arid climate, Karratha Senior High School faces unique environmental challenges. The design addresses these by incorporating structures that withstand extreme weather while providing comfortable learning spaces. The school's proximity to culturally significant Aboriginal sites influenced the design, ensuring that the architecture respects and reflects the local heritage.



Integration of Cultural Elements
The architects integrated elements that pay homage to the Ngarluma people, the traditional custodians of the land. The use of materials and spatial arrangements reflects the surrounding landscape and cultural narratives, creating a learning environment that is both functional and meaningful.




Multifunctional Learning Spaces
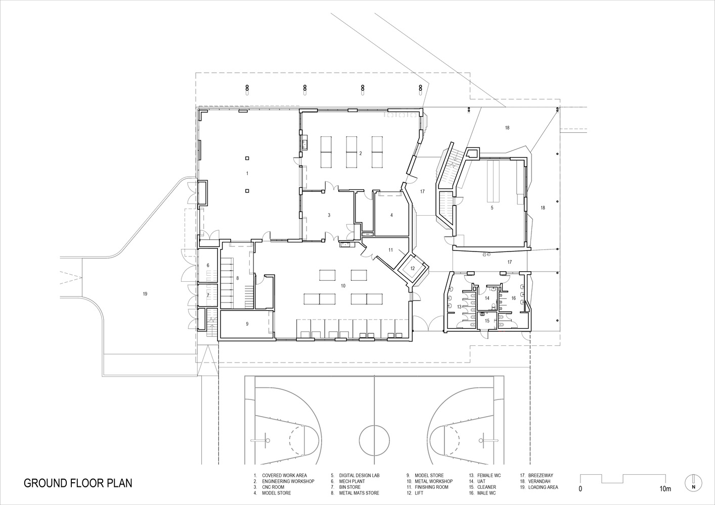
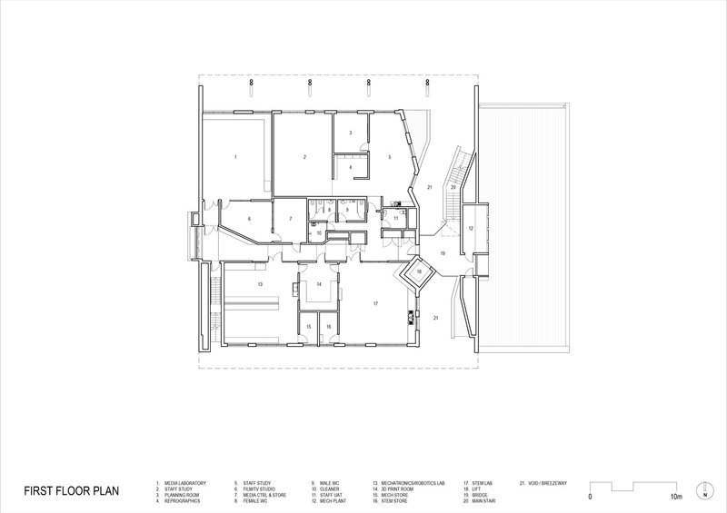
The new facilities include engineering workshops, media classrooms, and STEM laboratories, designed to be adaptable and multifunctional. This flexibility allows for various teaching methods and learning styles, catering to a diverse student body. The incorporation of natural light and ventilation enhances the learning environment, promoting student well-being and engagement.




Sustainability and Community Engagement
Sustainability was a key consideration in the design process. The use of locally sourced materials and energy-efficient systems reduces the school's environmental footprint. Additionally, the design fosters community engagement by creating spaces that can be utilized for local events and gatherings, strengthening the school's role within the community.




The transformation of Karratha Senior High School exemplifies how educational architecture in remote Australia can overcome environmental challenges while honoring cultural heritage. Through innovative design, the school provides a dynamic and sustainable learning environment that serves both students and the broader community.








All Photographs are works of Peter Bennetts
Popular Articles
Popular articles from the community
On the Brooks House by Monsoon Collective – A Contemporary Kerala Home Rooted in Tradition
Kerala home blending tradition and modernity with water-inspired design, brick architecture, courtyard planning, and sustainable rainwater harvesting strategies.
Atelier Macri Concept Store Interior Design by CASE-REAL
Atelier Macri store features a "ko" counter, walnut wood details, cork displays, blending retail, gallery, and seamless customer experiences.
Treehouse Apartment: A Warm Timber Interior Blending Craft, Play, and Contemporary Living
Warm timber apartment with integrated treehouse, combining natural materials, craftsmanship, and playful design to create a flexible, family-oriented living environment.
Solar Steam: A Climate-Responsive Architecture That Redefines the Monument
A climate-responsive memorial architecture that transforms heat, decay, and time into a living system reflecting humanity’s ecological impact.
Similar Reads
You might also enjoy these articles
The Ken Roberts Memorial Delineation Competition (Krob)
As the most senior architectural drawing competition currently in operation anywhere in the world, it draws hundreds of entries each year, awarding the very best submissions in a series of medium-based categories.
Waterfront Redevelopment and Urban Revitalization in Mumbai: Forging a New Dawn for Darukhana
A transformative waterfront redevelopment project reimagining Darukhana’s shipbreaking heritage into an inclusive urban future.
OUT-OF-MAP: A Call for Postcards on Feminist Narratives of Public Space
Rhizoma Design and Research Lab invites artists, designers, architects, researchers, and students to reflect on how feminist perspectives can reshape public space. Selected works will be exhibited in Barcelona, October 2026. Submissions open until 15 April 2026.
Documentation Work on Buddhist Wooden Temple
Architectural syncretism and cultural hybridity: A comparative study of the Buddhist temples in Chattogram Hill tracks
Explore Architecture Competitions
Discover active competitions in this discipline
The International Standard for Design Portfolios
The Global Benchmark for Architecture Dissertation Awards
The Global Benchmark for Graduation Excellence
Challenge to reimagine the Iron Throne
Comments (0)
Please login or sign up to add comments
No comments yet. Be the first to comment!