HIBINOSEKKEI and Youji no Shiro Nest a Four-Story Climbing Atrium Inside a Shenzhen Kindergarten
Cheer Kindergarten in Shenzhen's Nanshan District wraps laminated bamboo pods and climbing nets around a skylit atrium to spark spontaneous play.
Most kindergartens treat circulation as filler: corridors you pass through to reach the actual rooms. Cheer Kindergarten, a 4,240 m² renovation in Shenzhen's Nanshan District designed by HIBINOSEKKEI and Youji no Shiro, inverts that logic entirely. The corridors, staircases, and atrium are the architecture. A four-story void at the center of the building is strung with bulbous laminated bamboo lanterns and large-scale climbing nets, turning vertical movement into a physical adventure. The classrooms, by contrast, are calm and rectilinear. The hierarchy is deliberate: the threshold between order and wildness is the building's core spatial idea.
Completed in November 2023, the project works within the shell of an existing reinforced concrete structure. Most exterior walls were preserved, which kept demolition waste low and allowed the design team to focus resources on a radically transformed interior. Gabion stone walls anchor the street entrance, a planted courtyard punctures the ground floor, and a rooftop terrace with a wading pool caps the composition. The result is a compact vertical landscape that compensates for its tight 2,743 m² site by stacking experiences rather than spreading them out.
The Atrium as Engine



The central atrium is the building's circulatory, social, and environmental engine all at once. Rising the full height of the four above-ground floors, it is crowned with operable glass skylights that draw warm air upward and pull fresh air through the large openings and foldable doors on the lower levels. The passive stack ventilation strategy is not ornamental; in Shenzhen's subtropical climate, reducing reliance on mechanical cooling is a meaningful performance gain.
Spatially, the atrium works because it is never empty. Suspended laminated bamboo pods, shaped like oversized seed cases, hang at different levels and glow with warm interior light. A timber staircase rises beside woven pendant fixtures, and reading nooks line the corridors that wrap the void. Children experience the full depth of the building every time they look across the balustrade, which transforms waiting, walking, and pausing into moments of spatial awareness.
Bamboo Lanterns and the Bird's Nest Motif



The bent laminated bamboo structures are the most visually arresting elements in the project, and they earn their presence. Shaped to evoke a bird's nest, the motif carries a straightforward metaphor: a nest is where young life is sheltered and prepared for flight. What elevates it beyond metaphor is the material itself. Bamboo is light, warm to the touch, and visually complex in its grain, qualities that engage children's tactile and visual curiosity in ways that painted drywall cannot.
Suspended across three levels on both the east and west sides of the atrium, the pods serve as enclosures, landmarks, and light fixtures simultaneously. Their bulbous profiles soften the rectilinear concrete frame of the existing building, introducing organic geometry without resorting to freeform chaos. The detailing is precise: slats are evenly spaced, curves are smooth, and connections to the surrounding white balustrades are cleanly resolved. It is playful architecture that does not abandon rigor.
Climbing Nets and the Case for Risk


HIBINOSEKKEI and Youji no Shiro have long argued that kindergartens should encourage managed physical risk, and the climbing nets at Cheer Kindergarten are the clearest expression of that position. Large white mesh structures span between floors, curving overhead to create enclosed tunnels and open platforms. Children scramble, hang, and crawl through them, developing proprioception and spatial confidence in a way that flat playground surfaces simply do not allow.
The arched wall niches in the adjacent playroom offer a quieter counterpart: semi-enclosed alcoves where a child can sit, observe, and choose when to re-enter the action. The pairing is significant. Good early childhood environments do not just ramp up stimulation; they offer a gradient from active to contemplative, letting children regulate their own engagement. The architecture here provides that gradient within a single room.
Ground and Growth



A large tree rises from a circular planter bed at the ground floor, its canopy reaching toward the upper levels. It is the most patient element in the building: its growth will be measured in years, not semesters, giving successive cohorts of children a living reference point for change over time. The courtyard garden around it connects to a basement-level spatial garden via stairs and grass-covered slopes, ensuring that outdoor play extends below grade without dead ends.
The aerial view reveals how tightly the kindergarten is packed among surrounding residential towers. Context matters here. Nanshan District is one of Shenzhen's densest and most commercially active neighborhoods, and open ground is scarce. By stacking gardens vertically, from the basement slope to the courtyard to the rooftop terrace, the architects multiply usable outdoor area well beyond what the 2,743 m² footprint would normally support.
Earth Walls and Geological Memory



The material palette extends beyond bamboo. Earth walls, inspired by the old red sandstone geological layers beneath Shenzhen, introduce a raw, stratified texture that contrasts with the smooth timber flooring and white-painted surfaces elsewhere. These walls are not decorative appliqué; they reference the literal ground the building sits on, giving children a tactile connection to the site's deep history.
In the classrooms, the approach shifts to restraint. Floor-to-ceiling windows, linear ceiling lighting, and low timber tables create calm, evenly lit rooms where focused activity can happen. The hallways overlooking the atrium, bathed in warm afternoon sun through timber-framed glazing, serve as transition spaces where the energy of the atrium is visible but buffered. Light is the connective tissue: it enters through the skylights, bounces off the bamboo lanterns, and filters through hallway windows into every classroom.
Rooftop, Kitchen, and the Edges



The rooftop terrace with its octagonal wading pool, timber decking, and open sky is a generous move for a building this compact. It functions as a summer extension of the program, a place where water play and unstructured outdoor time happen without leaving the building's footprint. Down at ground level, a long service window into the commercial kitchen lets children watch food being prepared, a small detail that turns a utilitarian function into a learning opportunity.
The street-level entrance uses gabion stone walls and a dark metal canopy to signal arrival without overwhelming the residential context. It is practical and restrained, sheltering families during Shenzhen's frequent rainstorms while maintaining a low, welcoming scale. The entry pathway winds through planted beds under a white soffit, compressing the visitor's field of view before the atrium opens up above. It is a classic architectural sequence, and it works.
Staff Spaces and the Adult Program



A kindergarten is also a workplace, and the project acknowledges this with meeting rooms enclosed by dark metal panels beneath exposed timber ceiling joists, and a long open workspace with glass-enclosed meeting pods. These spaces are clearly delineated from the children's realm in material and mood, offering staff a professional environment that respects their daily needs. The exposed ceiling beams in the open hall where children play suggest a shared structural language, but the palette diverges enough to mark the boundary.
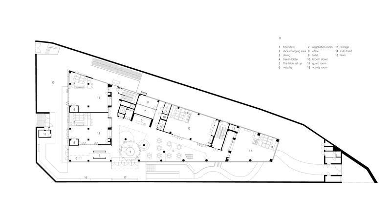
Plans and Drawings






The floor plans reveal the elongated triangular footprint that drives the building's internal organization. The ground floor splits between interior rooms on the left and a landscaped outdoor play area on the right, with the atrium void carving through the center. As you ascend, partitions thin out and open areas expand, culminating in a simplified third-floor layout that opens onto the rooftop terrace at the narrow end. The section drawings are the most revealing: they show how the cantilevered floor plates, staircases, and atrium void work together to create a five-story interior that reads as a single continuous space rather than a stack of discrete floors.
The elevation drawings confirm that the exterior intervention was minimal. Vertical cladding and stepped massing define the facades, but the existing concrete structure is largely intact beneath. The design intelligence here is almost entirely interior, which makes the section, not the elevation, the primary drawing for understanding the project.
Why This Project Matters
Cheer Kindergarten matters because it demonstrates that a renovation in a dense urban district can produce spatial richness that rivals any new-build campus. By preserving the existing shell and concentrating resources on the atrium, climbing structures, and material palette, HIBINOSEKKEI and Youji no Shiro delivered an environment that is physically challenging, sensorially rich, and climatically responsive on a constrained site. The vertical garden strategy, from basement slope to rooftop pool, is a replicable model for urban kindergartens everywhere.
More broadly, the project advances an argument that early childhood environments should not be sanitized boxes decorated with primary colors. Children benefit from height, texture, risk, and contact with living things. The bamboo lanterns, the climbing nets, the tree growing through the floor: these are not gimmicks. They are architectural positions about what childhood spaces owe the people who inhabit them. In a city building as fast as Shenzhen, that position is worth defending.
Cheer Kindergarten, designed by HIBINOSEKKEI and Youji no Shiro. Nanshan District, Shenzhen, China. 4,240 m². Completed 2023. Photographs by Siming Wu.
About the Studio
Youji no Shiro
Share Your Own Work on uni.xyz
If projects like this are the kind of work you want to make, uni.xyz is a place to publish your own, find collaborators, and enter design competitions.
Popular Articles
Popular articles from the community
20 Most Popular Furniture Design Projects of 2025
Modular street systems, parametric benches, and insect hotels: the furniture design projects that captivated architects on uni.xyz in 2025.
Goldstein Heather Doubles a Victorian Terrace in West London with a Four-Storey Lateral Extension
A 244 square metre addition in Stamford Brook transforms a narrow end-of-terrace house into a 500 square metre family home of sculpted arches and daylight.
boq architekti Fits a Gabled Family House onto a Tiny Moravian Hillside Plot with No Room for a Garden
A 115 square meter home in South Moravia trades a garden for a rooftop terrace and a fully glazed facade facing the village below.
1-1 Architects Builds a Nagoya House and Office from Decades of Stockpiled Timber
A 69-square-meter tower in dense residential Nagoya transforms surplus lumber into a home and workplace for a construction company.
Similar Reads
You might also enjoy these articles
Olio Towers: A Mid-Rise for Performers That Fuses Housing, Rehearsal, and Stage
Located blocks from Houston's Theater District, this modular tower stacks living units around a central performance atrium.
Oasis: Modular Green Housing Carved into Dhaka's Urban Fabric
A shortlisted Plugin Housing entry reclaims unauthorized settlements in Dhaka with stepped concrete volumes, green roofs, and ventilation-driven design.
Black Hole: A Floating Megastructure for the Post-Physical Era
Emiliano Mazzarotto envisions a spherical, self-scaling arena where e-sports, digital hotels, and holographic stadiums replace traditional public space.
Compact & Sustainable Living in Piraeus: A Four-Level Family Home Built Around Light and Air
A narrow townhouse in one of Greece's densest port cities uses a central atrium and passive strategies to house three generations under one roof.
Explore Architecture Competitions
Discover active competitions in this discipline
The International Standard for Design Portfolios
The Global Benchmark for Architecture Dissertation Awards
The Global Benchmark for Graduation Excellence
Challenge to reimagine the Iron Throne
Comments (0)
Please login or sign up to add comments
No comments yet. Be the first to comment!