Innovative Urban House Design: Maximizing Space and Light in Narrow Sites
Exploring the 2700 House by IGArchitects: Innovative design maximizes space and light on a narrow urban site.
In the heart of Saitama, Japan, stands a testament to innovative urban house design, the 2700 House by IGArchitects. This architectural marvel, completed in 2023, navigates the challenges of a narrow site with creativity and precision, offering a new perspective on urban living spaces.


The Challenge of Urban Space
The Concept
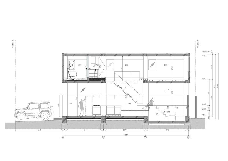
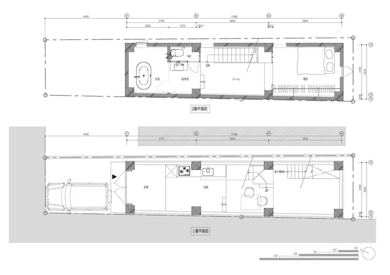
Urban areas often present architects with the challenge of limited space. The 2700 House, designed by the visionary team at IGArchitects, transforms this constraint into an opportunity. Built on a site with a mere 2.9m frontage and a depth of 16m, this house showcases how thoughtful design can create spaciousness and connectivity to the outdoors within tight urban confines.



Design Philosophy
IGArchitects' approach was to create a dialogue between the house's interior and the urban exterior, a feat that seemed daunting given the 2.7m frontage. Yet, through strategic design, this narrow home welcomes the city in, blurring the lines between inside and outside.





Architectural Strategy
Structure and Light
The house's architectural backbone consists of 8 pillars supporting a concrete box, symbolizing strength and resilience. The ingenious placement of windows on all sides ensures natural light floods the interior, crafting a cave-like ambiance on the ground floor that transitions to openness as one moves inward.






Spatial Dynamics
On the first floor, flexibility is key, with the space designed to adapt to various uses. The second floor, by contrast, offers a private retreat with limited windows and ceiling height to foster coziness. This dual nature underscores the home's ability to cater to different moods and needs.




Living Spaces Redefined
The Flow of Space
In the 2700 House, every inch serves a purpose. The living area merges seamlessly with the kitchen, dining area, and beyond, offering a continuous flow that extends the perception of space. Furniture placement and floor level changes introduce a subtle division of areas without erecting barriers, promoting an interactive living environment.




Material and Atmosphere
Concrete, often seen as cold and impersonal, is warmed by the influx of natural light and the house's open design. The material's solidity provides a stark contrast to the softness of the natural elements that permeate the interior, creating a harmonious balance.
The 2700 House by IGArchitects is a beacon of innovative urban house design, proving that with creativity and thoughtful planning, even the narrowest sites can be transformed into open, light-filled homes. This project not only maximizes space and light but also redefines urban living, offering a blueprint for future developments in densely populated cities.
By embracing the limitations of urban sites and turning them into strengths, the 2700 House stands as a symbol of architectural ingenuity and a source of inspiration for architects and homeowners alike, charting a course towards more livable, sustainable urban spaces.



All Photographs are the work of Ooki Jingu
Popular Articles
Popular articles from the community
An Miên Lumière Cafe by xưởng xép, Ho Chi Minh City, Vietnam
An industrial-inspired café where layered steel and warm light create a dynamic, immersive environment shaped by reflection, depth, and perception.
On the Brooks House by Monsoon Collective – A Contemporary Kerala Home Rooted in Tradition
Kerala home blending tradition and modernity with water-inspired design, brick architecture, courtyard planning, and sustainable rainwater harvesting strategies.
Louis Malle Cinema: A Limestone Cultural Landmark Revitalizing Community Life in Prayssac
Limestone cinema extension with public forecourt, blending heritage and modern design to create flexible cultural spaces and strengthen community interaction.
Inverted Architecture Installation by Studio Link-Arc: Exploring the Intersection of Architecture and Living Organisms
Inverted Architecture Installation by Studio Link-Arc blends mycelium, sustainability, inverted design, ecological cycles, and urban adaptive architecture in Shenzhen.
Similar Reads
You might also enjoy these articles
Bamboo Housing Challenge 2026: Design Affordable, Sustainable Homes Using Bamboo
An international design competition by Bamboo U and IBUKU inviting architects and designers to reimagine affordable housing using bamboo — with the winning design built full-scale in Bali.
Computational Design & Education: Beegraphy Design Awards Introduces 7th Category (Featuring Jiyun's Innovative Approach)
Dive into Beegraphy’s 7th Design Awards category, where computational design meets education to create immersive, interactive learning tools, inspired by Jiyun’s work.
From Parametric Lighting to Urban Furniture: Join the 2nd Workshop in Beegraphy’s Computational Design Series
Dive into Cutting-Edge Design Techniques and Practical Applications with Industry Experts
Introducing Sphere by UNI: Pioneering a New Era in AEC Industry
Unlocking Global Potential with BIM and Agile Management
Explore Architecture Competitions
Discover active competitions in this discipline
The International Standard for Design Portfolios
The Global Benchmark for Architecture Dissertation Awards
The Global Benchmark for Graduation Excellence
Challenge to reimagine the Iron Throne
Comments (0)
Please login or sign up to add comments
No comments yet. Be the first to comment!