IT Coffee by studiomateriality: A Sustainable Café Redefining Fast Food in Athens
IT Coffee by studiomateriality blends sustainable design with modern aesthetics, creating an eco-friendly, urban café oasis in Chalandri, Athens.
A New Take on Fast Casual Dining
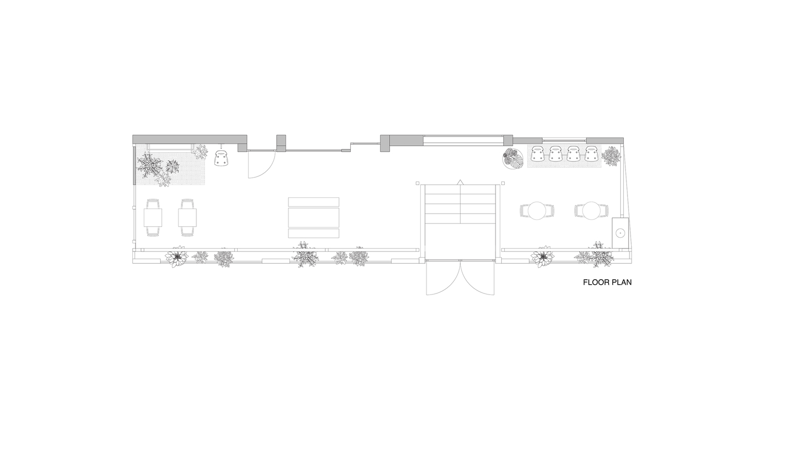
IT Coffee, designed by studiomateriality, brings a fresh approach to hospitality architecture in Athens, Greece. This 43 m² coffee shop in Chalandri is the latest addition to the IT brand, known for pioneering healthy fast food since 2004. With its roots in Athens’ city center, IT expanded into its first comfort restaurant in Kolonaki in 2013. Now, a decade later, it continues to grow, embracing sustainability and innovative design.


A Zero-Waste Philosophy with Green Design
The brand's identity is deeply tied to the color green, symbolizing its commitment to sustainability. The new store integrates eco-friendly materials, recycling initiatives, and circular waste management to minimize its environmental footprint.
Designed as a space that harmonizes with the urban landscape, IT Coffee features a mix of modern and traditional materials. White tile, commonly found in contemporary café interiors, contrasts with exposed brick, reminiscent of rural architecture. This interplay of elements enhances the shop’s aesthetic while reinforcing its eco-conscious ethos.


An Urban Retreat with Functional Design
The concept behind IT Coffee’s design is to create a garden-like oasis amid the city's hustle. Emphasizing takeaway culture, the layout encourages quick yet enjoyable visits. A standout feature is the bright yellow seating, inspired by vintage waiting areas at suburban bus stations—offering customers a comfortable spot while they wait for their freshly prepared meals.



A Fusion of Architecture and Sustainability
Lighting, provided by Bright Special Lighting SA, plays a key role in enhancing the ambiance. The careful selection of textures and tiles further elevates the café’s contemporary yet nostalgic atmosphere. By blending modern café aesthetics with a focus on sustainable architecture, IT Coffee stands as a model for green hospitality design in Greece.

All Photographs are works of Alina Lefa
Popular Articles
Popular articles from the community
Filtering Space: A Gradual Spatial Experience
From urban intensity to spatial calm.
A Park Building That Wants to Be a Landscape
Omrania's Operations & Maintenance Building at King Salman Park dissolves industrial program into Riyadh's largest green infrastructure.
20 Most Popular Commercial Architecture Projects of 2025
From sustainable market concepts to heritage factories, the commercial buildings and proposals that drew the most attention on uni.xyz this year.
MAKER architecten Rewire a 1972 Brutalist Dormitory on the VUB Campus as a Living Lab
A modular renovation strategy in Belgium breathes new life into Willy Van Der Meeren's modernist student housing without erasing its concrete bones.
Similar Reads
You might also enjoy these articles
Filtering Space: A Gradual Spatial Experience
From urban intensity to spatial calm.
The Ken Roberts Memorial Delineation Competition (Krob)
As the most senior architectural drawing competition currently in operation anywhere in the world, it draws hundreds of entries each year, awarding the very best submissions in a series of medium-based categories.
Waterfront Redevelopment and Urban Revitalization in Mumbai: Forging a New Dawn for Darukhana
A transformative waterfront redevelopment project reimagining Darukhana’s shipbreaking heritage into an inclusive urban future.
OUT-OF-MAP: A Call for Postcards on Feminist Narratives of Public Space
Rhizoma Design and Research Lab invites artists, designers, architects, researchers, and students to reflect on how feminist perspectives can reshape public space. Selected works will be exhibited in Barcelona, October 2026. Submissions open until 15 April 2026.
Explore Architecture Competitions
Discover active competitions in this discipline
The International Standard for Design Portfolios
The Global Benchmark for Architecture Dissertation Awards
The Global Benchmark for Graduation Excellence
Challenge to reimagine the Iron Throne
Comments (0)
Please login or sign up to add comments
No comments yet. Be the first to comment!