Julpo Regeneration Series: Revitalizing a Declining Town Through Architecture
The Julpo Regeneration Series revitalizes a declining town, using architecture to redefine public spaces, adaptive reuse, and urban engagement.
Transforming Julpo’s Urban Landscape
The Julpo Regeneration Series by Narrative Architects is a bold experiment in urban regeneration through architecture, reimagining neglected structures and redefining public spaces. Julpo, once a thriving port town in South Korea, has faced gradual decline due to economic shifts and urban migration. By introducing architectural interventions that contrast with the existing urban fabric, the project injects new vitality into the town, fostering community engagement and renewed public interaction.

Julpo’s past as a bustling trade hub is still reflected in its urban structure, but the stagnation following the port's closure left many spaces underutilized. Through this regeneration project, architecture serves as both a functional and symbolic tool to reestablish Julpo as a space for collective experiences and public activities.

Architectural Interventions as Catalysts for Change
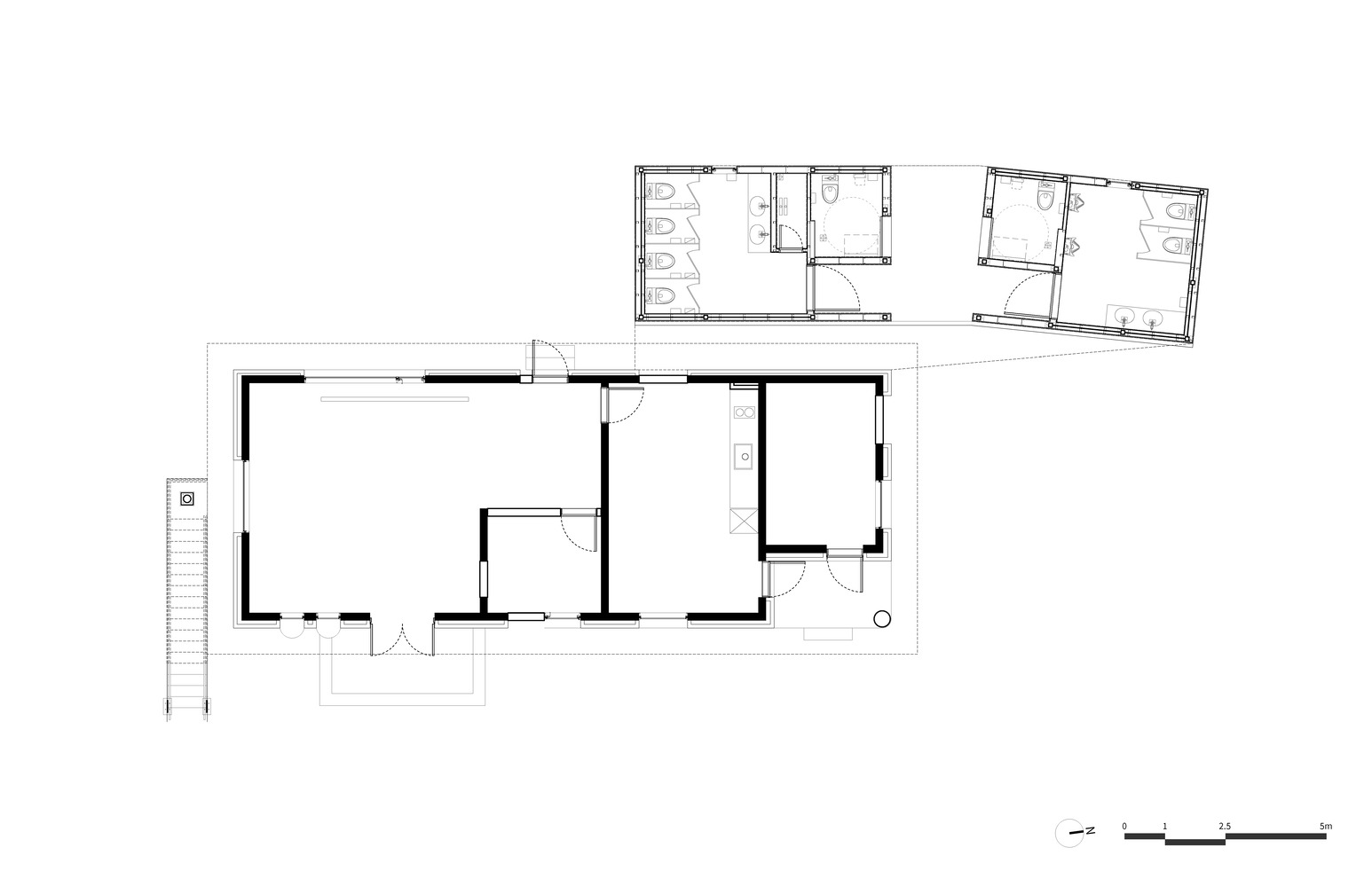
The Julpo Regeneration Series consists of several architectural interventions, each designed to redefine public engagement and social interaction. One of the central elements is the Julpo Hub & Public Restroom, a structure that breaks away from the rigid orthogonal grid established during the Japanese colonial era. Originally a modest facility for market merchants, this building has been transformed into a dynamic community hub, accommodating a meeting room, a video studio, and a shared kitchen.


The integration of a newly accessible rooftop terrace further enhances its role as a public space, offering an observation deck for the town’s sunset—a subtle yet powerful reference to Julpo’s cultural identity. By reinforcing the original brick structure and introducing flexible, multi-purpose spaces, the project breathes new life into a once-static environment.

Contrast and Contextual Dialogue in Design
A key aspect of the project is its deliberate use of contrasting forms to challenge the existing urban context. The newly constructed public restroom adopts a low-tech, double-curved roof, wrapped in metallic cladding that visually disrupts the linear arrangement of surrounding structures. This juxtaposition of old and new architecture serves as a mediator between past and present, creating a striking yet harmonious dialogue between the built environment and the community.


Beyond its function, the restroom’s sculptural form acts as an architectural statement, drawing attention to the evolving nature of Julpo’s public spaces. By engaging in visual and spatial contrast, the project highlights the potential of urban regeneration through architecture, proving that even the most utilitarian structures can contribute to a city’s identity and cultural renewal.


Adaptive Reuse and the Revival of Julpo’s Warehouses
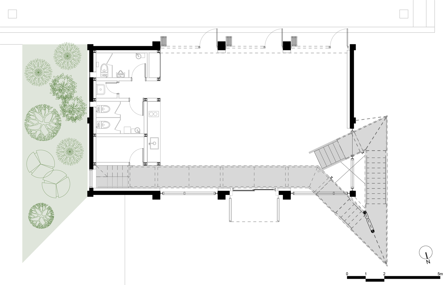
Another significant component of the regeneration project is the revitalization of Julpo’s historical warehouses. These reinforced concrete structures, remnants of the town’s trading past, had long remained unused. Their rigid and enclosed nature previously limited public access and interaction, cutting them off from the surrounding market and community areas.

Through adaptive reuse, these warehouses have been opened and reconfigured to accommodate a variety of community-driven programs. Large stainless steel doors, once used for cold storage, have been fixed open to serve as inviting canopies. The introduction of a lightweight steel gallery traversing the exterior walls creates new layers of spatial experience, inviting visitors to explore the history of Julpo while fostering new urban activities.

The redesigned warehouse blurs the boundaries between interior and exterior, transforming a once-static space into a dynamic environment that supports cultural exhibitions, community gatherings, and public engagement. By weaving together historical narratives with modern functionality, the intervention ensures that these buildings continue to evolve with the needs of the town.

The Power of Architecture in Urban Regeneration
The Julpo Regeneration Series exemplifies how urban regeneration through architecture extends beyond physical transformations. By introducing new publicness, fostering interaction, and challenging the static nature of old structures, the project redefines how declining urban areas can be reactivated. Rather than erasing the past, these interventions build upon Julpo’s history, offering a renewed sense of place and identity for its residents.


Through bold contrasts, adaptive reuse, and thoughtful spatial reconfigurations, the project showcases the potential of architecture to act as a catalyst for urban revitalization. In doing so, it sets a precedent for other towns facing similar challenges, demonstrating that sustainable regeneration is not merely about restoring buildings, but about creating meaningful spaces that inspire community engagement and collective growth.
