Kita Spreeklang: A Sensitive Approach to Daycare Architecture in Germany
A historically rooted daycare in Germany that blends child-focused design with sensitive architecture in Fürstenwalde’s urban fabric.
A Harmonious Fusion of History, Function, and Child-Centered Design in Fürstenwalde
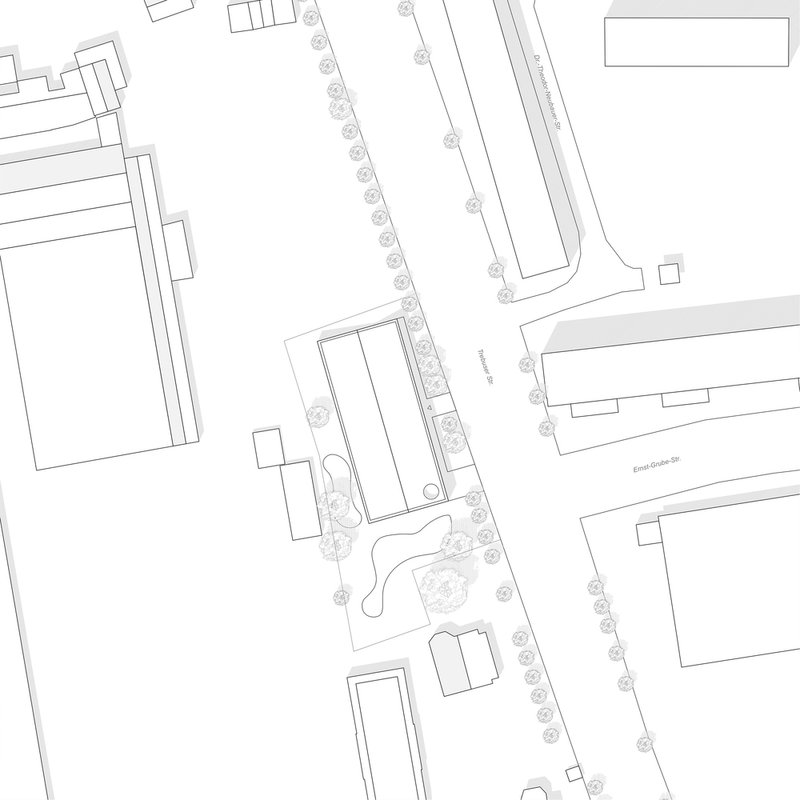
In the heart of Fürstenwalde/Spree, Kita Spreeklang emerges as a refined example of daycare architecture in Germany, offering a thoughtful balance between historic preservation and modern educational design. Designed by Schoener und Panzer Architekten BDA for Rahn Education, this 1,600-square-meter daycare facility provides care and early education for up to 130 children. Strategically positioned within the historically significant “Pintsch-Areal,” the project honors the site's architectural legacy while creating a nurturing and engaging environment for young learners.




Respecting Historical Context through Architectural Sensitivity
The daycare’s placement within a plot surrounded by industrial-era architecture—including a protected villa and a nearby ice cellar—required a design approach that was sensitive to its heritage. The architects responded with a restrained street-facing elevation, defined by classical design elements like cornices and pilaster strips, reflecting the internal layout without overwhelming its historical surroundings. The two-story structure respects the site’s original building lines and integrates a traditional Brandenburg linden tree avenue into the design, preserving the essence of the cultural landscape.




Bridging Architectural Eras with the Butterfly Roof
A defining feature of the building is its butterfly roof, which serves as a subtle architectural mediator. It visually bridges the pitched roof of the neighboring villa, the shed forms of nearby industrial structures, and the horizontality of prefabricated housing blocks. This clever roof form not only unites disparate elements of the neighborhood’s architectural language but also contributes to the unique identity of the daycare.




Dynamic Play Spaces Through Folding Geometry
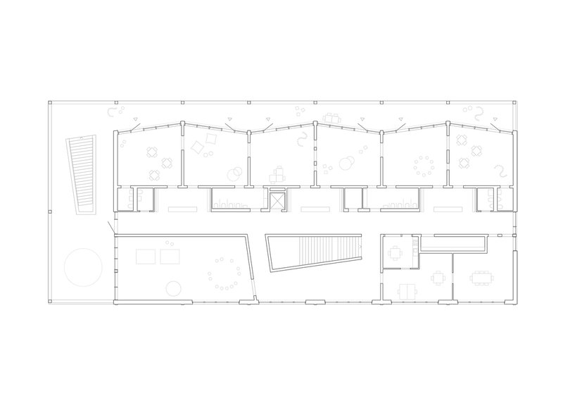
On the southwest façade, facing the children’s play area, the architecture becomes more expressive. An external corridor and expansive play terrace create an active interface between the interior and outdoor spaces. The rigid geometry of the overall form softens through the introduction of a folded facade, generating shaded and semi-enclosed play spaces. These architectural gestures enrich the children's experience and underscore the building's role as both a learning environment and a recreational haven.




Functional Interior Layout Designed for Education
Internally, the layout prioritizes clarity and function. A central play corridor runs along the street-facing edge, flanked by utility and service rooms. The group rooms open toward the outdoor spaces and are each equipped with private cloakrooms and sanitary facilities, supporting smooth daily operations. The design includes a dining hall on the ground floor and a sports room on the upper level, both directly accessible from the main foyer. In addition, wide corridors are designed to function as extra play areas, reinforcing the building's alignment with Rahn Education’s pedagogical principles.



Architecture That Encourages Growth and Exploration
Kita Spreeklang is more than just a building—it is a spatial narrative that supports growth, community, and education. The project is a benchmark for contemporary daycare architecture in Germany, blending modest, context-aware design with spaces that stimulate children’s curiosity and social development. With careful attention to heritage, materiality, and functionality, Schoener und Panzer Architekten BDA have created a timeless setting that reflects both historical memory and forward-thinking education.





All Photographs are works of MICHAEL MOSER IMAGES, Robert Gemmel
Popular Articles
Popular articles from the community
20 Most Popular Office Building Projects of 2025
From biophilic workspaces in India to net-positive energy offices in New Delhi, 20 office building projects that defined architecture in 2025.
20 Most Popular Furniture Design Projects of 2025
Modular street systems, parametric benches, and insect hotels: the furniture design projects that captivated architects on uni.xyz in 2025.
boq architekti Fits a Gabled Family House onto a Tiny Moravian Hillside Plot with No Room for a Garden
A 115 square meter home in South Moravia trades a garden for a rooftop terrace and a fully glazed facade facing the village below.
Biophilic Architecture and Regenerative Stadium Design: Biophilia Lagos by Rachel George
A regenerative stadium in Lagos transforms landfill into a living ecosystem through biophilic architecture, waste reuse, and environmental healing.
Similar Reads
You might also enjoy these articles
Bamboo Housing Challenge 2026: Design Affordable, Sustainable Homes Using Bamboo
An international design competition by Bamboo U and IBUKU inviting architects and designers to reimagine affordable housing using bamboo — with the winning design built full-scale in Bali.
Computational Design & Education: Beegraphy Design Awards Introduces 7th Category (Featuring Jiyun's Innovative Approach)
Dive into Beegraphy’s 7th Design Awards category, where computational design meets education to create immersive, interactive learning tools, inspired by Jiyun’s work.
From Parametric Lighting to Urban Furniture: Join the 2nd Workshop in Beegraphy’s Computational Design Series
Dive into Cutting-Edge Design Techniques and Practical Applications with Industry Experts
Introducing Sphere by UNI: Pioneering a New Era in AEC Industry
Unlocking Global Potential with BIM and Agile Management
Explore Architecture Competitions
Discover active competitions in this discipline
The International Standard for Design Portfolios
The Global Benchmark for Architecture Dissertation Awards
The Global Benchmark for Graduation Excellence
Challenge to reimagine the Iron Throne
Comments (0)
Please login or sign up to add comments
No comments yet. Be the first to comment!