LaCol: Uniting Communities, Empowering Cooperation at La Comunal Espai Cooperatiu!
Can LaCol revolutionize cooperation and community engagement at La Comunal Espai Cooperatiu?
Revitalizing Barcelona's Industrial Heritage: La Comunal Espai Cooperatiu Shines as a Model of Adaptive Reuse
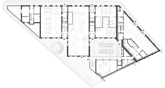
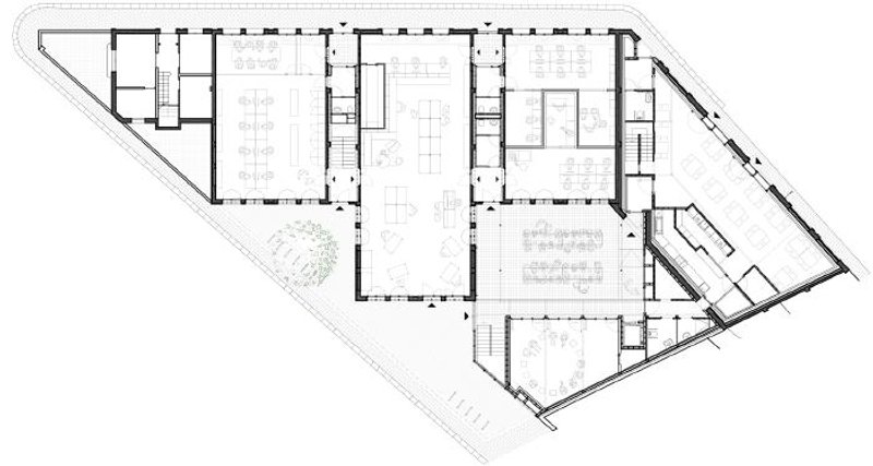
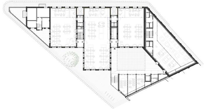
Located in the vibrant Sants district of Barcelona, La Comunal Espai Cooperatiu occupies an impressive half-block space within a protected industrial building that dates back to 1926. Originally designed for the manufacturing of naval sails, this historic structure has now transformed into a bustling workspace housing eight organizations, including the innovative Lacol.
In a remarkable intervention, the architectural team embarked on a mission to restore the building's initial geometry while rehabilitating its original constructions. To seamlessly blend the old with the new, a small yet distinctive addition was made to the dividing wall of neighbouring houses. The heart of the complex lies in its central courtyard, not only facilitating ventilation and natural light for the surrounding spaces but also acting as a central meeting point for individuals to connect and collaborate.
Throughout the renovation process, the existing buildings underwent minimal treatment, except for the restaurant and concert hall which received special attention. The roofs, after careful removal of asbestos-containing fibre cement, were adorned with corrugated galvanized steel sheets, serving as a visual differentiator between the original and added materials. A meticulous climate strategy was employed, focusing on three key aspects: air, water, and materials.
Air quality was improved by incorporating greenhouses, cleverly capturing the sun's heat and reducing the reliance on air conditioning. In terms of water conservation, a 5,000-liter tank was installed to harness rainwater from the roofs, effectively repurposing it for irrigation and cleaning purposes. As for the existing buildings, their energy efficiency and bioclimatic performance were significantly enhanced through meticulous intervention. Insulation played a pivotal role, with a lime and cork mortar mix chosen to ensure compatibility and align with the materials and techniques required for a heritage project. Notably, 1,200 linear meters of reclaimed joists were ingeniously repurposed as rakes for roof insulation, exemplifying the project's commitment to sustainability. Moreover, floors and other ground-contacting elements were carefully insulated using rigid insulation envelopes, sourced from the reputable sandwich panel industry.
La Comunal Espai Cooperatiu stands tall as a remarkable testament to adaptive reuse, breathing new life into Barcelona's industrial legacy. This architectural gem exemplifies the harmonious fusion of heritage preservation and contemporary design, serving as a beacon of inspiration for future adaptive reuse projects. By reclaiming and repurposing industrial spaces, La Comunal Espai Cooperatiu demonstrates the potential for sustainability, community engagement, and creative collaboration within urban environments.




























Popular Articles
Popular articles from the community
Flamboyant House by Juliana Camargo + Prumo Projetos
Modern Brazilian house integrating existing tree, pool, and volumes with glass, wood, and transitional spaces blending interior, exterior, and landscape seamlessly.
Solar Steam: A Climate-Responsive Architecture That Redefines the Monument
A climate-responsive memorial architecture that transforms heat, decay, and time into a living system reflecting humanity’s ecological impact.
Atelier Macri Concept Store Interior Design by CASE-REAL
Atelier Macri store features a "ko" counter, walnut wood details, cork displays, blending retail, gallery, and seamless customer experiences.
A Contemporary Take on Iranian Residential Architecture
A modern interior design in Mashhad that reinterprets brick, light, and spatial flow to create a warm, contemporary residential architecture.
Similar Reads
You might also enjoy these articles
The Ken Roberts Memorial Delineation Competition (Krob)
As the most senior architectural drawing competition currently in operation anywhere in the world, it draws hundreds of entries each year, awarding the very best submissions in a series of medium-based categories.
A Contemporary Take on Iranian Residential Architecture
A modern interior design in Mashhad that reinterprets brick, light, and spatial flow to create a warm, contemporary residential architecture.
Franche-Comté Advanced School of Engineering by Dominique Coulon & associés, Besançon
A flexible engineering school immersed in woodland, combining concrete minimalism, adaptable spaces, and natural light to support evolving educational environments.
Waterfront Redevelopment and Urban Revitalization in Mumbai: Forging a New Dawn for Darukhana
A transformative waterfront redevelopment project reimagining Darukhana’s shipbreaking heritage into an inclusive urban future.
Explore Architecture Competitions
Discover active competitions in this discipline
The International Standard for Design Portfolios
The Global Benchmark for Architecture Dissertation Awards
The Global Benchmark for Graduation Excellence
Challenge to reimagine the Iron Throne
Comments (0)
Please login or sign up to add comments
No comments yet. Be the first to comment!