Lamarzocco Gangnam: A Landmark in Minimalist Retail Interior Design by RVMN
Minimalist retail space in Seoul fuses architecture, art, and coffee culture to create an immersive Lamarzocco brand experience.
Blending Emptiness and Craftsmanship in a Boutique Coffee Experience
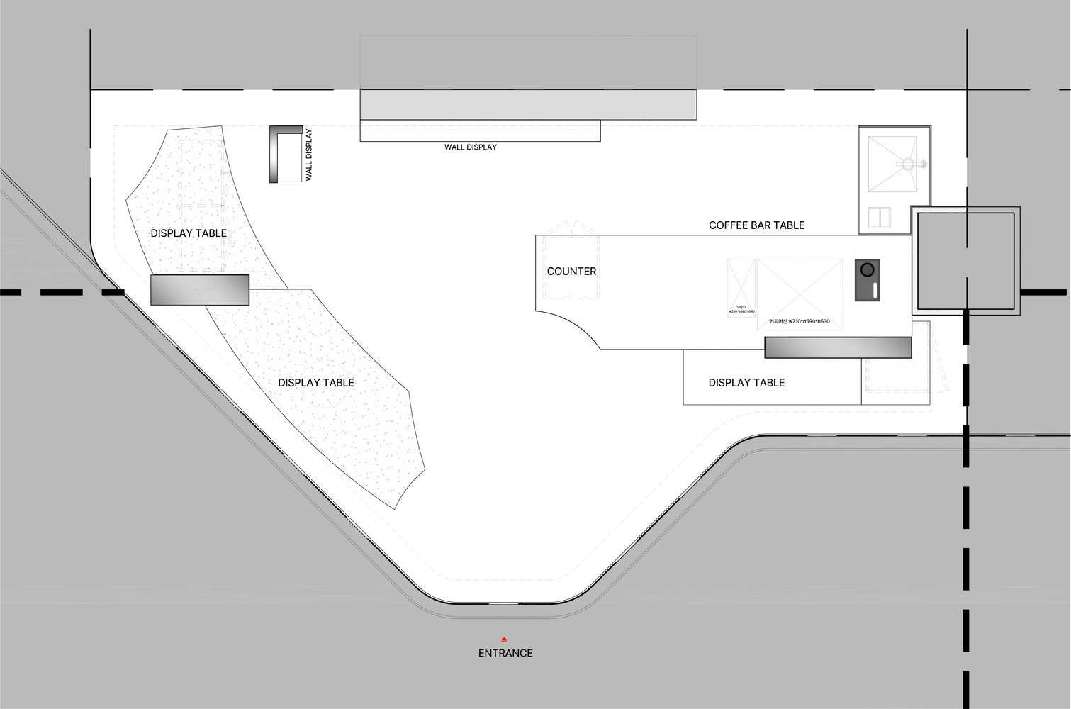
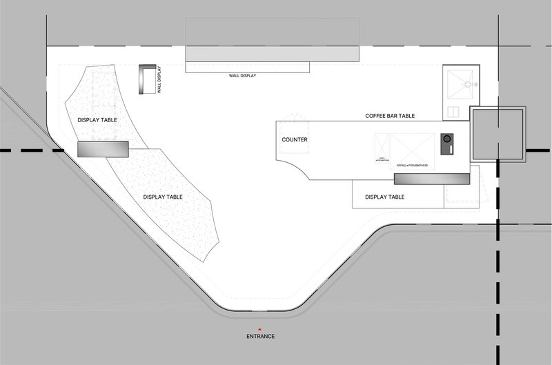
In the heart of Seoul’s bustling Gangnam district, the Lamarzocco Shinsegae Department Store boutique marks a new chapter for the globally renowned espresso machine brand. Designed by RVMN, this compact, 24-square-meter flagship redefines how brands communicate identity through minimalist retail interior design, transforming a retail environment into a curated sensory and spatial journey. More than a product showroom, this space becomes an immersive extension of Lamarzocco’s artisanal roots and evolving customer base.

Designing Emptiness as a Platform for Connection
Conceived under the theme “Flavor of Emptiness,” the interior design plays with architectural voids as a strategy for connection and discovery. Here, emptiness is not absence—it is an intentional foundation for relationships, encounters, and self-expression through coffee. RVMN blurs the boundary between sales and tasting, allowing visitors to navigate freely between product interaction and personal coffee rituals.

The layout prioritizes spatial clarity while integrating layers of experience. Customers aren’t merely browsing; they are participating in the brand’s philosophy, encouraged to find their own flavor through curated stillness and movement. In this context, retail becomes ritual, and architecture becomes the medium through which lifestyle and craftsmanship align.

Material Language and Artistic Collaboration
The space’s tactile material palette is a direct nod to Lamarzocco’s origins in metalworking and handcrafted excellence. In collaboration with artist Kwangho Lee, RVMN infused the environment with expressive forms and rich textural contrasts. The central white wall, sculpted with wave-like textures, radiates energy and dynamism in an otherwise serene interior, while monolithic volumes finished in gray micro-topping ground the space with quiet strength.


Blue sculptural elements, strategically placed between larger masses, represent voids made visible—colorful metaphors for the “empty” spaces that connect function and form. Polished metal beads punctuate these textures, reinforcing the brand’s industrial heritage and design sensibility.

A Compact Island of Identity
Despite its modest 24-square-meter footprint, the Lamarzocco store achieves a monumental presence. Its island-style layout invites visitors to circulate intuitively, fostering intimate encounters with both product and brand. Functional volumes are intentionally sculpted at various heights to align with natural sightlines, emphasizing human scale and ergonomic comfort.


This retail architecture doesn’t overwhelm—it invites pause, contemplation, and tactile interaction. The deliberate variation of volume, light, and material composes a quiet rhythm, echoing the intimate pleasure of a well-made cup of espresso.

A Future-Oriented Retail Blueprint
As the first department store boutique for Lamarzocco globally, this project signals a shift in how brands approach the future of retail architecture. No longer just points of sale, stores like this become cultural microcosms—spaces where identity, experience, and lifestyle converge. RVMN’s approach captures this evolution with elegance and depth, crafting a minimalist yet richly sensorial interior that elevates the act of retail into an art form.


In the Lamarzocco Gangnam store, architecture and coffee converge—offering a refined, thoughtful model for how minimalist design can articulate heritage, invite discovery, and cultivate a loyal, design-conscious audience.


All Photographs are works of Yongjoon Choi