LCI Barcelona 22@ Campus: A Visionary Design School by CIRCULAR STUDIO
This article explores the LCI Barcelona 22@ Campus, an architectural masterpiece by CIRCULAR STUDIO, merging educational spaces with urban integration.
Overview of LCI Barcelona 22@ Campus
The LCI Barcelona 22@ Campus, designed by CIRCULAR STUDIO, serves as an international hub for the LCI Education network, a prestigious global association of design and visual arts schools. Located in the 22@ district of Barcelona, once an industrial area and now a hub for technology and innovation, the campus is a stunning example of contemporary educational architecture that integrates urban transformation with functional design.




A Visionary Campus in the Heart of Barcelona’s Innovation District
Occupying 11,740 m², the campus provides a cutting-edge learning environment for approximately 3,000 students. It features classrooms, laboratories, studios, and social spaces, creating a "vertical campus" designed to maximize spatial efficiency while maintaining a dynamic, interactive atmosphere for students and faculty. This architectural innovation in Poblenou blends urban accessibility with a welcoming educational facility that inspires creativity.




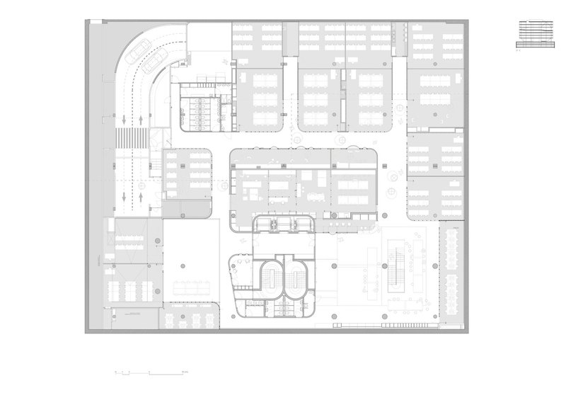
Architectural Layout and Key Design Elements
Above-Ground Features
The above-ground structure houses key facilities, including classrooms, practical labs, administrative offices, a library, and student lounges. The circulation spaces run parallel to the façade, serving as social areas, workspaces, and exhibition zones. This circulation design creates an interplay between solid and open spaces, inviting students to experience a seamless connection between indoor and outdoor environments.




Underground Space and Flexible Learning Areas
The underground area mirrors the footprint of the above-ground structure, providing an expansive open plaza that includes two large, adaptable halls for diverse activities, along with workshops, fabrication labs, and communal areas. Natural light reaches these spaces through double-height openings and skylights, enhancing the underground areas’ ambiance and connectivity with the main plaza above.




Facade Design: A Play of Light and Texture
A key element of the LCI Barcelona 22@ Campus is its responsive facade, designed to optimize natural light. The aluminum-clad exterior, with a transparent powder finish, reflects the surrounding environment, responding to changes in daylight and enhancing the building’s visual integration with the urban setting. Internally, walls are paneled in white, amplifying natural light and creating a clean, minimalist interior.




Urban Integration and Community Engagement
Ground Floor and Public Access
The ground floor of the campus is intentionally designed as a permeable space, set back from the building’s perimeter. Glass facades create a transparent entryway, allowing visual continuity between the street and the building interior. Access is facilitated by a bridge that leads into the plaza, with seating steps and a ramp that further blurs the boundaries between campus and city. This design fosters community engagement, as the plaza doubles as a gathering space for students and the local community.



Social Spaces and Plaza Design
The campus plaza, both above and below ground, serves as a community hub. The design enables a social journey for students, with circulation extending across various levels. Between the third and fifth floors, movement occurs along a recessed facade, leading to a raised fourth-floor plaza, a gathering space designed to capture the Mediterranean breeze and maximize shade through overhangs that protect against direct sunlight.


Interior Spaces Designed for Learning and Collaboration
Quadruple-Height Entrance Foyer and Vertical Circulation
A defining interior feature of the LCI Barcelona 22@ Campus is its quadruple-height foyer at the main entrance. This impressive vertical space is traversed by a metal staircase connecting the ground and the first two levels, creating a strong visual link between the different floors and fostering a sense of community and collaboration.




Practical Labs, Workshops, and Student Lounges
The campus is equipped with advanced practical labs and workshops, providing students with facilities for hands-on learning in design and visual arts. The integration of these workspaces with open student lounges promotes collaboration, creativity, and an interactive learning environment.



Sustainability and Climate-Responsive Design
The campus’s climate-responsive design not only enhances the student experience but also contributes to sustainability. By preventing glare through carefully oriented facades and maximizing indirect light, the design minimizes the need for artificial lighting. Additionally, overhangs and recessed facade elements help regulate the building’s temperature, ensuring a comfortable interior climate year-round.


A Campus That Inspires Future Creators
The LCI Barcelona 22@ Campus by CIRCULAR STUDIO exemplifies innovative educational architecture, blending academic functionality with a strong commitment to urban integration and sustainable design. This campus not only meets the demands of a contemporary learning environment but also fosters community engagement and environmental consciousness. It stands as a symbol of architectural evolution, creating a space where students can thrive in an inspiring, collaborative, and modern setting.


All photographs are work of Salva López
Popular Articles
Popular articles from the community
Rede Arquitetos Builds an Open-Air School in Fortaleza That Doubles as a Neighborhood Living Room
Educar II SESC-CE folds sports, dance, and community gathering into a courtyard campus wrapped in mesh and tropical color.
Magic Box Office Barcelona Innovative Sustainable Workplace Design
Innovative sustainable office design featuring triangular form, ceramic façade, flexible interiors, natural light optimization, and creative workspace for modern work culture.
20 Most Popular Commercial Architecture Projects of 2025
From sustainable market concepts to heritage factories, the commercial buildings and proposals that drew the most attention on uni.xyz this year.
Similar Reads
You might also enjoy these articles
Filtering Space: A Gradual Spatial Experience
From urban intensity to spatial calm.
The Ken Roberts Memorial Delineation Competition (Krob)
As the most senior architectural drawing competition currently in operation anywhere in the world, it draws hundreds of entries each year, awarding the very best submissions in a series of medium-based categories.
Waterfront Redevelopment and Urban Revitalization in Mumbai: Forging a New Dawn for Darukhana
A transformative waterfront redevelopment project reimagining Darukhana’s shipbreaking heritage into an inclusive urban future.
OUT-OF-MAP: A Call for Postcards on Feminist Narratives of Public Space
Rhizoma Design and Research Lab invites artists, designers, architects, researchers, and students to reflect on how feminist perspectives can reshape public space. Selected works will be exhibited in Barcelona, October 2026. Submissions open until 15 April 2026.
Explore Architecture Competitions
Discover active competitions in this discipline
The International Standard for Design Portfolios
The Global Benchmark for Architecture Dissertation Awards
The Global Benchmark for Graduation Excellence
Challenge to reimagine the Iron Throne
Comments (0)
Please login or sign up to add comments
No comments yet. Be the first to comment!