Light Gallery House by PLAN Architects Office: A Minimalist Family Home Designed for Light, Privacy & Connection
Light Gallery House blends minimal design, natural light, and private indoor-outdoor spaces to create a peaceful, family-centered home in South Korea.
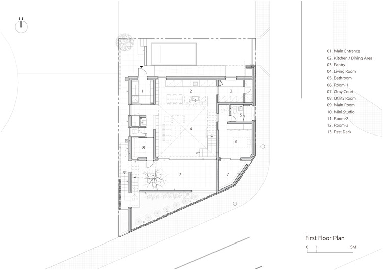
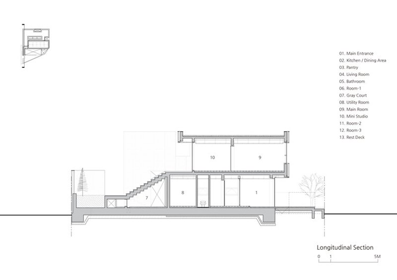
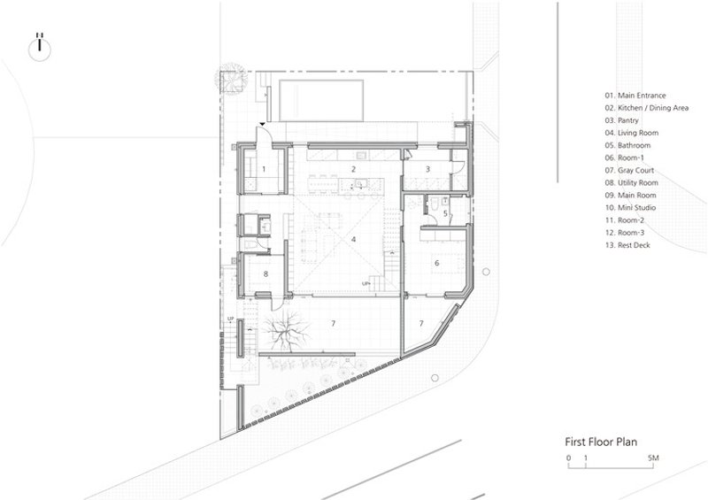
Located in Naju-si, South Korea, the Light Gallery House by PLAN Architects Office is a warm, light-filled residence designed to meet the evolving needs of a young family. Completed in 2024 and spanning 197 m², this contemporary home balances privacy, natural light, and flexible communal spaces, creating a nurturing environment for three generations living under one roof.
Just a minute away from the firm’s previous project, House of Boundary, the Light Gallery House shares a similar spatial context but responds uniquely to the clients’ lifestyle. After years of enduring inter-floor noise in their apartment, the couple dreamed of a home that offered peace, freedom, and a better environment for their two children and grandmother.


A Home Shaped by Light, Quiet, and Family Needs
The homeowners — a couple with strong backgrounds in fashion, design, and hospitality — brought refined tastes and detailed preferences. Yet, they entrusted the architect fully, aware that their strong opinions on style, structure, and lighting could limit creative possibilities.
Their brief focused on:
- A stress-free home with simple forms
- Soft transitions between indoor and outdoor spaces
- Abundant natural light
- Privacy without compromising openness
- A home centered around shared activities, reading, and family tim


Architectural Expression: Minimal, Sculptural, and Light-Driven
The exterior of Light Gallery House stands out with its triangular front façade, where light-toned bricks follow the irregular site boundaries. This gives the building a calm sculptural identity. Privacy is thoughtfully integrated: a raised garden shields the front, while carefully designed slits in the walls allow controlled sunlight and fresh air to permeate the interior without compromising seclusion.
These slits appear in varied scales—between masses of different heights, walls, corners, and façade elements—creating a subtle rhythm and enhancing ventilation.


A Dynamic LDK at the Heart of Family Life
The home’s layout places the LDK (Living, Dining, Kitchen) area at its center, forming the emotional heart of the house. Surrounded by the front yard, service zones, and second-floor bedrooms, the LDK is where the family gathers for conversations, reading, and shared moments.
To promote freedom and interaction:
- There is no sofa or television
- Walls are lined with bookshelves
- Natural light floods the space from multiple directions
- Visual openness connects the yard, dining area, kitchen, and upper level
This creates a bright, lively, child-friendly atmosphere where kids can run freely under their parents’ watch.

Seamless Indoor–Outdoor Harmony
Three distinct front outdoor areas extend the living experience beyond the walls:
- A living extension for family interactions
- A serene garden
- A meditation space for quiet reflection
High exterior walls preserve privacy while slits maintain airflow and light, allowing family members to transition smoothly between indoors and outdoors.


A Soft Fortress Filled with Light
The result is a home resembling a gentle brick fortress, embracing intimate interior spaces washed in natural light. Every room is connected visually or atmospherically, creating layered spatial experiences that shift throughout the day.
Designed with simplicity, solidity, and sensitivity, the Light Gallery House aspires to be a lifelong sanctuary where the family can grow, rest, and share their brightest moments.



Popular Articles
Popular articles from the community
On the Brooks House by Monsoon Collective – A Contemporary Kerala Home Rooted in Tradition
Kerala home blending tradition and modernity with water-inspired design, brick architecture, courtyard planning, and sustainable rainwater harvesting strategies.
Louis Malle Cinema: A Limestone Cultural Landmark Revitalizing Community Life in Prayssac
Limestone cinema extension with public forecourt, blending heritage and modern design to create flexible cultural spaces and strengthen community interaction.
Flamboyant House by Juliana Camargo + Prumo Projetos
Modern Brazilian house integrating existing tree, pool, and volumes with glass, wood, and transitional spaces blending interior, exterior, and landscape seamlessly.
A Contemporary Take on Iranian Residential Architecture
A modern interior design in Mashhad that reinterprets brick, light, and spatial flow to create a warm, contemporary residential architecture.
Similar Reads
You might also enjoy these articles
The Ken Roberts Memorial Delineation Competition (Krob)
As the most senior architectural drawing competition currently in operation anywhere in the world, it draws hundreds of entries each year, awarding the very best submissions in a series of medium-based categories.
Waterfront Redevelopment and Urban Revitalization in Mumbai: Forging a New Dawn for Darukhana
A transformative waterfront redevelopment project reimagining Darukhana’s shipbreaking heritage into an inclusive urban future.
OUT-OF-MAP: A Call for Postcards on Feminist Narratives of Public Space
Rhizoma Design and Research Lab invites artists, designers, architects, researchers, and students to reflect on how feminist perspectives can reshape public space. Selected works will be exhibited in Barcelona, October 2026. Submissions open until 15 April 2026.
Documentation Work on Buddhist Wooden Temple
Architectural syncretism and cultural hybridity: A comparative study of the Buddhist temples in Chattogram Hill tracks
Explore Architecture Competitions
Discover active competitions in this discipline
The International Standard for Design Portfolios
The Global Benchmark for Architecture Dissertation Awards
The Global Benchmark for Graduation Excellence
Challenge to reimagine the Iron Throne
Comments (0)
Please login or sign up to add comments
No comments yet. Be the first to comment!