Lumio School: A Visionary Eco-Conscious School Design by Amelia Tavella
Lumio School exemplifies eco-conscious school design, integrating nature, sustainability, and culture into an immersive learning environment in Corsica.
A School in Harmony with Nature
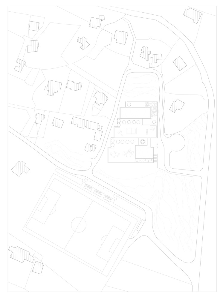
Perched at the foot of the village of Lumio in Corsica, Lumio School, designed by Amelia Tavella, is a masterpiece of eco-conscious school design. This innovative educational and cultural space seamlessly integrates with the natural landscape, preserving the spirit of Corsican heritage while embracing sustainability. With its cascading terraces, immersive greenery, and organic materiality, the school embodies an architectural philosophy that respects the environment, allowing students to learn within a space that harmonizes with nature.





Architectural Philosophy: Building Without Undoing
Amelia Tavella’s approach to architecture is deeply rooted in the idea of building without destruction. Rather than altering the natural terrain, her design philosophy prioritizes integration, allowing nature to dictate the architectural form. The school does not impose itself on the landscape but rather folds into it, echoing the undulating topography of Lumio. The use of Balagne stone granite links the structure to Corsican history, symbolizing continuity between past and future.





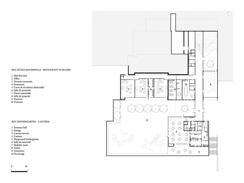
A School that Embraces the Land
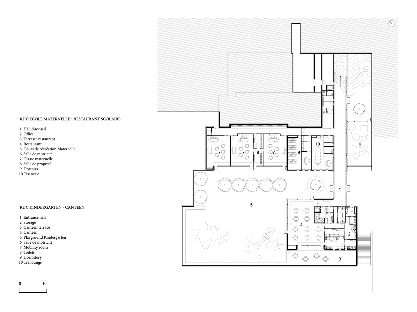
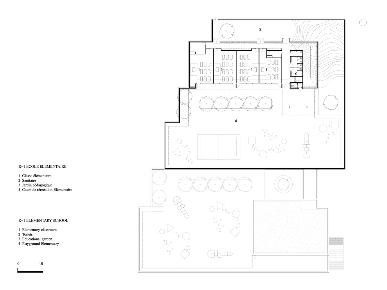
The architectural design of Lumio School mirrors the rhythms of the land, with three distinct tiers cascading toward the Mediterranean. The uppermost level houses the elementary classrooms, providing panoramic views of the sea and village. Below, the preschool and cultural center are enveloped within the valley, creating an environment that fosters both security and freedom. The staggered layout allows for rooftop playgrounds, where children play amidst nature, their movements unrestricted by rigid boundaries.





Sustainability and Eco-Conscious Design
Sustainability is an intrinsic aspect of the school’s design, evident in its material choices, energy efficiency, and seamless interaction with the surrounding landscape. The green terraces preserve Corsica’s natural topography while offering children immersive outdoor learning experiences. The architectural lines follow the contours of the land, reducing environmental impact while enhancing the site's biodiversity. The interplay between light, air, and materials ensures a naturally ventilated and illuminated learning environment, minimizing energy consumption.




A Living Classroom: Art, Culture, and Learning
Education at Lumio School extends beyond traditional pedagogy, embracing art and cultural immersion as fundamental elements of learning. The internal street that weaves through the different levels is designed as an open-air amphitheater, a space where knowledge and movement are intrinsically linked. Created in collaboration with artist Pauline Guerrier, the monumental staircase reflects the organic curves of the terrain, transforming movement into an act of learning. The wide white stone steps, reminiscent of ancient philosophical schools, symbolize the ascent to wisdom.





A Space for Community and Knowledge
More than just a school, Lumio School serves as a cultural and educational hub for the broader community. The integration of a cultural center within the school complex underscores the idea that education extends beyond childhood, fostering lifelong learning and shared experiences. By blending learning spaces with areas dedicated to cultural expression, the design strengthens community bonds and encourages intergenerational knowledge exchange.








The Future of Eco-Conscious Educational Spaces
Lumio School is a testament to the potential of eco-conscious school design, where architecture coexists with nature rather than displacing it. This project redefines the way educational spaces are conceived, proving that sustainability, culture, and learning can seamlessly intertwine. As a model for future school designs, it challenges conventional notions of built environments, demonstrating that architecture can be both an extension of history and a vision for the future.














All Photographs are works of Audric Verdier, Thibaut Dini
Popular Articles
Popular articles from the community
Gads Hill Early Learning Center by JGMA: Adaptive Reuse Shaping Community-Focused Educational Architecture
Adaptive reuse transforms fragmented structure into vibrant early learning center with playful façade, natural light, and community-focused sustainable design.
Atelier Macri Concept Store Interior Design by CASE-REAL
Atelier Macri store features a "ko" counter, walnut wood details, cork displays, blending retail, gallery, and seamless customer experiences.
Inverted Architecture Installation by Studio Link-Arc: Exploring the Intersection of Architecture and Living Organisms
Inverted Architecture Installation by Studio Link-Arc blends mycelium, sustainability, inverted design, ecological cycles, and urban adaptive architecture in Shenzhen.
The Ken Roberts Memorial Delineation Competition (Krob)
As the most senior architectural drawing competition currently in operation anywhere in the world, it draws hundreds of entries each year, awarding the very best submissions in a series of medium-based categories.
Similar Reads
You might also enjoy these articles
Bamboo Housing Challenge 2026: Design Affordable, Sustainable Homes Using Bamboo
An international design competition by Bamboo U and IBUKU inviting architects and designers to reimagine affordable housing using bamboo — with the winning design built full-scale in Bali.
Computational Design & Education: Beegraphy Design Awards Introduces 7th Category (Featuring Jiyun's Innovative Approach)
Dive into Beegraphy’s 7th Design Awards category, where computational design meets education to create immersive, interactive learning tools, inspired by Jiyun’s work.
From Parametric Lighting to Urban Furniture: Join the 2nd Workshop in Beegraphy’s Computational Design Series
Dive into Cutting-Edge Design Techniques and Practical Applications with Industry Experts
Explore Architecture Competitions
Discover active competitions in this discipline
The International Standard for Design Portfolios
The Global Benchmark for Architecture Dissertation Awards
The Global Benchmark for Graduation Excellence
Challenge to reimagine the Iron Throne
Comments (0)
Please login or sign up to add comments
No comments yet. Be the first to comment!