M45 Building: A Landmark of Adaptive Reuse Architecture in Villeurbanne
The M45 Building exemplifies adaptive reuse architecture, transforming industrial heritage into a sustainable, flexible, and contemporary urban space in Villeurbanne.
Transforming Industrial Heritage into a Contemporary Urban Hub
The M45 Building, designed by TRIPTYQUE, stands as a pioneering example of adaptive reuse architecture, transforming Villeurbanne’s industrial heritage into a dynamic and flexible urban space. Located in the Mansart district, an area known for its industrial past, M45 reinterprets historical architecture to meet the evolving needs of modern cities. Rather than erasing history, this project embraces and revitalizes it, creating a seamless connection between past and future.



A Hybrid Structure Merging Old and New
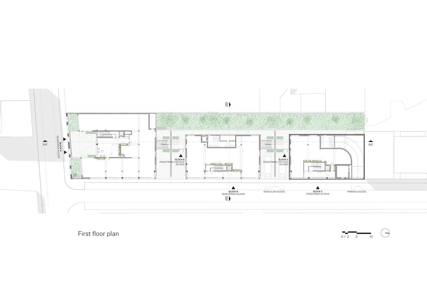
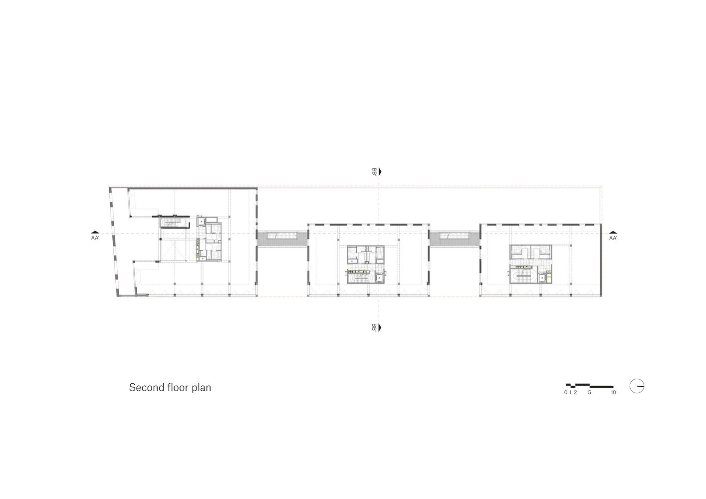
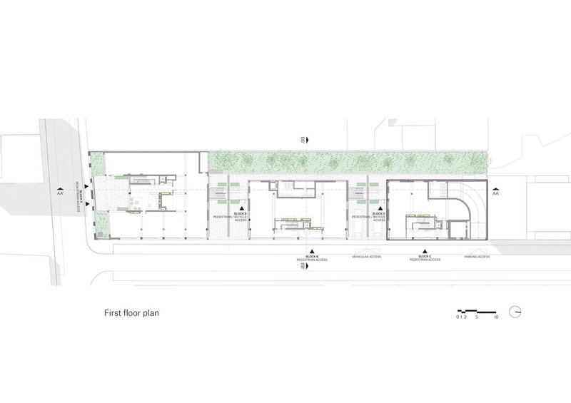
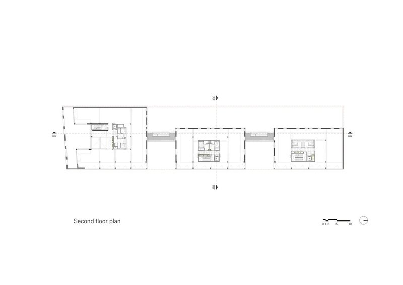
M45 is a bold architectural statement that integrates key elements of a former industrial hangar while introducing a contemporary design language. The building’s structure is organized into three distinct volumes, each maintaining a connection to its historical context while offering new spatial possibilities. By mutualizing emergency exits through external walkways, the design optimizes space and circulation, opening up sightlines and enhancing accessibility.



Programmatic Flexibility and Reversible Spaces
At its core, the M45 Building embodies adaptability, allowing for evolving functions over time. The lower levels are dedicated to small-scale artisan workshops, supporting local craft and production. Meanwhile, the upper floors house office and commercial spaces that can be reconfigured as urban demands change. This level of flexibility ensures the long-term viability of the building, making it a model for sustainable urban development.



Essentialist Architecture for a Connected Urban Environment
M45’s architectural approach is rooted in essentialism, prioritizing function and form without unnecessary complexity. The subdivision of the building into smaller units fosters a sense of permeability, encouraging movement and interaction within the urban fabric. Interconnecting walkways enhance connectivity, transforming the space into a dynamic hub that promotes collaboration and engagement between different users.



Reinventing Industrial Heritage for the Future
Beyond its architectural significance, M45 plays a crucial role in reinforcing Villeurbanne’s creative economy. By integrating small-scale production within the city, the project supports a compact and efficient urban model where diverse functions coexist harmoniously. This approach aligns with contemporary urban planning strategies that emphasize mixed-use developments and local economic growth.




A Model for Sustainable Urban Revitalization
M45 is more than just a building; it is a testament to how adaptive reuse architecture can preserve history while meeting the demands of modern urban life. By offering adaptable, reversible spaces within a refined architectural framework, the project sets a new standard for industrial heritage transformation. As cities worldwide seek sustainable solutions for urban growth, M45 serves as an inspiring blueprint for reimagining industrial spaces for the future.





All photographs are works of Salem Mostefaoui
Popular Articles
Popular articles from the community
Split House: A Compact Urban Home Blending Privacy, Light, and Flexible Living in Japan
Compact Japanese home featuring DOMA space, flexible café potential, passive lighting, privacy zoning, and sustainable urban living design.
Rede Arquitetos Builds an Open-Air School in Fortaleza That Doubles as a Neighborhood Living Room
Educar II SESC-CE folds sports, dance, and community gathering into a courtyard campus wrapped in mesh and tropical color.
TGK Nirasaki Plant: A Smart Factory Blending Technology, Landscape, and Wellness
Smart factory in Japan blending IoT manufacturing, scenic trail design, natural ventilation, and landscape integration to enhance user experience and sustainability.
Filtering Space: A Gradual Spatial Experience
From urban intensity to spatial calm.
Similar Reads
You might also enjoy these articles
Bamboo Housing Challenge 2026: Design Affordable, Sustainable Homes Using Bamboo
An international design competition by Bamboo U and IBUKU inviting architects and designers to reimagine affordable housing using bamboo — with the winning design built full-scale in Bali.
Computational Design & Education: Beegraphy Design Awards Introduces 7th Category (Featuring Jiyun's Innovative Approach)
Dive into Beegraphy’s 7th Design Awards category, where computational design meets education to create immersive, interactive learning tools, inspired by Jiyun’s work.
From Parametric Lighting to Urban Furniture: Join the 2nd Workshop in Beegraphy’s Computational Design Series
Dive into Cutting-Edge Design Techniques and Practical Applications with Industry Experts
Explore Architecture Competitions
Discover active competitions in this discipline
The International Standard for Design Portfolios
The Global Benchmark for Architecture Dissertation Awards
The Global Benchmark for Graduation Excellence
Challenge to reimagine the Iron Throne
Comments (0)
Please login or sign up to add comments
No comments yet. Be the first to comment!