Makries Mires Residence Architecture: A Harmonious Blend of Concrete and Landscape
The article explores the architecture of Makries Mires Residence, showcasing its concrete canopy, spatial organization, and seamless integration with nature.
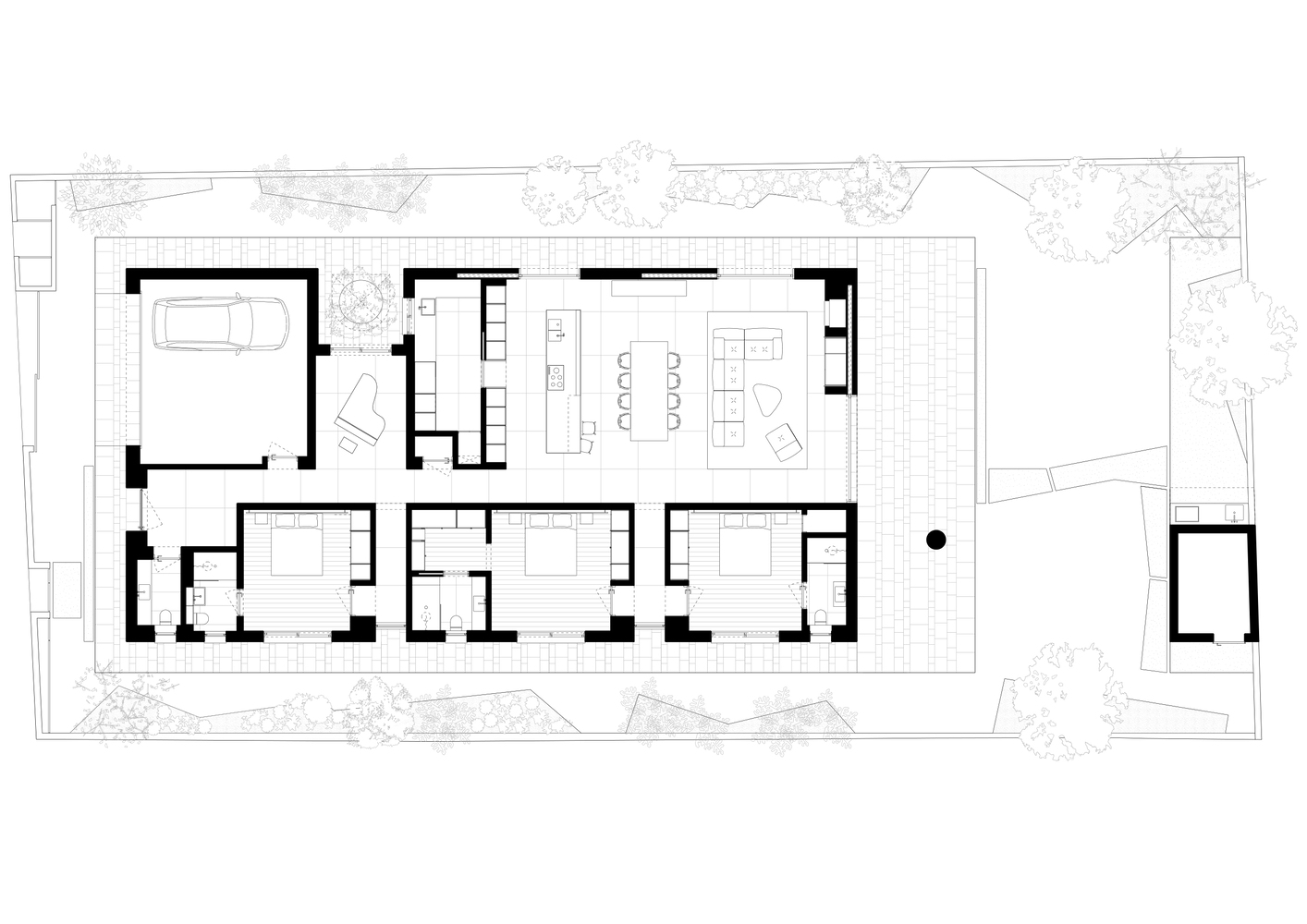
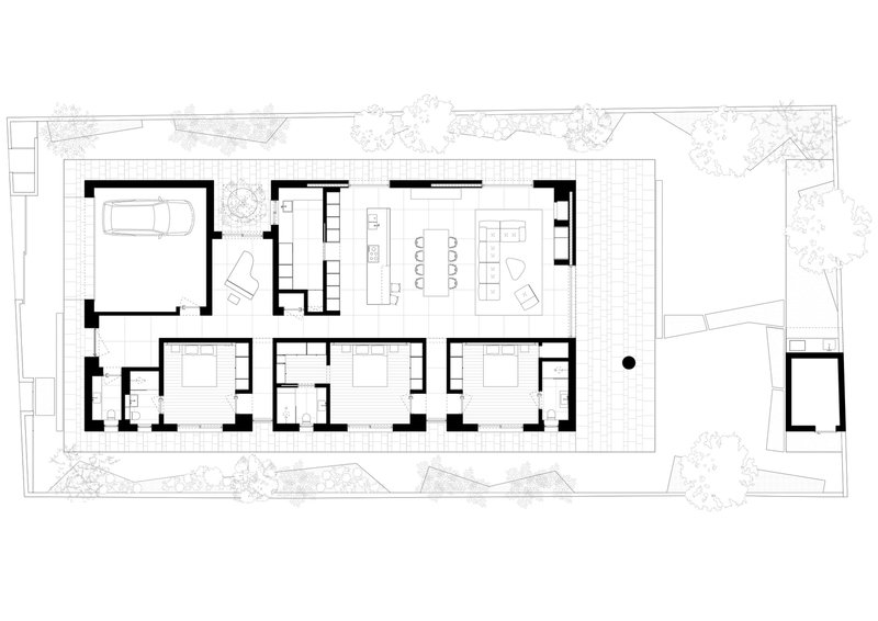
The Makries Mires Residence, designed by Anastasiou Misseri, redefines contemporary residential architecture in Cyprus. Situated on the outskirts of Nicosia, this 274 m² home embodies a seamless integration of modernist design principles with environmental consciousness. The architectural approach establishes an independent language within a neighborhood characterized by diverse styles and forms, creating a residence that is both visually striking and functionally efficient.



A Table-Like Structure Maximizing Outdoor Space
The residence is strategically positioned towards the front of a narrow rectangular plot, allowing for an expansive garden at the rear. A key design element is its table-like structure, which not only anchors the house but also enhances spatial efficiency. This architectural choice optimizes the relationship between built and open space, ensuring that the house does not feel enclosed despite its urban setting.



A defining feature of the design is the concrete canopy that wraps around the structure. Cast in-situ, this canopy serves a dual function—shielding the interior from sun and rain while also offering shelter to the perimeter outdoor spaces. This protective element emphasizes the balance between indoor and outdoor living, a key consideration in Mediterranean architecture.



The Impact of the Grand Canopy on Spatial Experience
One of the most striking architectural gestures is the 4-meter-long cantilevered canopy extending into the garden. This covered veranda, supported by a single cylindrical concrete column, enhances the spatial grandeur of the exterior while maintaining structural elegance. The bold projection of the canopy creates a shaded outdoor area that functions as a transitional space, reinforcing the relationship between nature and architecture.



A Dual-Zone Interior for Optimized Living
The internal layout of Makries Mires Residence is divided into two distinct zones, each responding to environmental and functional needs. The western zone houses the bedrooms, strategically positioned to capture the cooling evening breezes during Cyprus' warm summers. This passive cooling strategy enhances comfort while reducing energy consumption.


The eastern zone accommodates the main living spaces, designed with expansive openings that frame views of the surrounding landscape. These large openings not only flood the interiors with natural light but also create a seamless connection between the indoor and outdoor environments.


The Sculptural Presence of the Exposed Concrete Wall
A central architectural feature of the house is a 17-meter-long exposed concrete wall that runs the entire length of the structure. More than just a structural element, this wall serves as a sculptural centerpiece, reinforcing the materiality of the design. It also provides a sense of privacy, subtly dividing the home’s two primary zones while maintaining a sense of openness.



This interplay between solid and void, enclosure and openness, results in a residence that feels both protected and connected to its surroundings. The restrained material palette, dominated by concrete, enhances the raw yet refined aesthetic of the home.



A Testament to Contemporary Cypriot Architecture
Makries Mires Residence stands as a testament to the evolving landscape of Cypriot architecture. By blending modernist principles with environmental sensitivity, Anastasiou Misseri has created a home that respects its context while making a bold architectural statement. The careful orchestration of space, materiality, and light ensures that the residence remains timeless, offering a harmonious living experience that is both innovative and rooted in its environment.


All Photographs are works of James Retief
Popular Articles
Popular articles from the community
Split House: A Compact Urban Home Blending Privacy, Light, and Flexible Living in Japan
Compact Japanese home featuring DOMA space, flexible café potential, passive lighting, privacy zoning, and sustainable urban living design.
Atelier Macri Concept Store Interior Design by CASE-REAL
Atelier Macri store features a "ko" counter, walnut wood details, cork displays, blending retail, gallery, and seamless customer experiences.
Free Architecture Competitions You Can Enter Right Now
No entry fees, real prizes. Here are the best free architecture competitions open for submissions in 2026.
Alton Cliff House: A Harmonious Retreat by f2a Architecture in Lake Country, Canada
Alton Cliff House blends corten steel, prefabrication, and sustainable design, creating a luxurious, energy-efficient retreat perched on Canadian cliffs.
Similar Reads
You might also enjoy these articles
Bamboo Housing Challenge 2026: Design Affordable, Sustainable Homes Using Bamboo
An international design competition by Bamboo U and IBUKU inviting architects and designers to reimagine affordable housing using bamboo — with the winning design built full-scale in Bali.
Computational Design & Education: Beegraphy Design Awards Introduces 7th Category (Featuring Jiyun's Innovative Approach)
Dive into Beegraphy’s 7th Design Awards category, where computational design meets education to create immersive, interactive learning tools, inspired by Jiyun’s work.
From Parametric Lighting to Urban Furniture: Join the 2nd Workshop in Beegraphy’s Computational Design Series
Dive into Cutting-Edge Design Techniques and Practical Applications with Industry Experts
Explore Architecture Competitions
Discover active competitions in this discipline
The International Standard for Design Portfolios
The Global Benchmark for Architecture Dissertation Awards
The Global Benchmark for Graduation Excellence
Challenge to reimagine the Iron Throne
Comments (0)
Please login or sign up to add comments
No comments yet. Be the first to comment!