Mediterranean Villa Architecture: Bundle House by NOMO Studio
An in-depth look at Bundle House, a stunning Mediterranean villa blending modern design, local materials, and sea-facing architecture.
Introduction to Bundle House
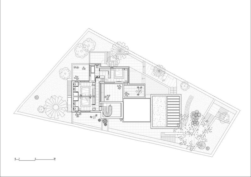
Located on a striking trapezoidal plot in Spain, the Bundle House by NOMO Studio is a 350 m² Mediterranean villa that transforms site challenges into design triumphs. Completed in 2024, this architectural masterpiece offers breathtaking views of the Mediterranean Sea, making it a stunning example of Mediterranean villa architecture that blends natural harmony with modern innovation.




Site and Design Strategy
Faced with an oblique site orientation, the architects devised a solution that turned limitations into opportunities. They opened up strategic corners to capture sunset views over the sea, while subdividing the villa’s extensive program into nine rectangular volumes. These volumes vary in height and step gracefully down the slope, weaving elegantly around the mature trees on the property. The staggered design not only respects the natural topography but also creates private outdoor pockets and seamlessly integrates indoor and outdoor spaces, reinforcing the essence of Mediterranean villa architecture.





The Role of the Central Patio
A defining feature of Bundle House is its central 6x6 meter patio, which bathes the interiors in natural light. Surrounded by double-height ceilings, the patio is designed as a multifunctional living space, with built-in seating and lounge puffs that adapt to the seasons. In summer, it offers shaded, cross-ventilated comfort, while in cooler months, it becomes a wind-sheltered outdoor area. Sliding open two corner full-height windows merges the porch, living area, and patio into one expansive, light-filled zone, maximizing the villa’s connection to its Mediterranean environment.




Structural Expression and Materials
The architecture of Bundle House is characterized by exposed concrete beams stretched between solid masonry walls and delicate metal columns. These structural elements support a glazed facade that blurs the line between inside and out. The construction approach draws on the regional palette: ceramic vaulted ceilings, concrete blocks, and sandy-toned facades that reflect the local context and help keep the interiors cool. The sandstone pavements complement the ceiling’s rhythm, creating a unified material language that reinforces the Mediterranean villa’s identity.





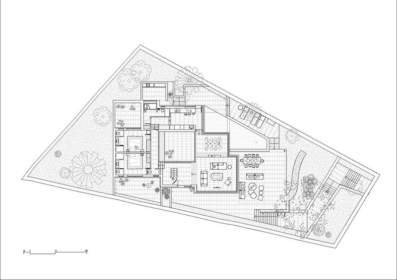
Interior Atmosphere and Spatial Flow
Stepping inside, the villa reveals a warm, earthy palette rich in natural materials like sandstone, ceramic, granite, and wood. The minimalist exterior gives way to interiors full of texture and pattern, with the building’s construction techniques left proudly on display. Visitors are greeted by a double-height hall illuminated by natural light, where a sculptural metal staircase spirals upward, connecting the two floors. The ground floor orbits the central courtyard, while upstairs, corridors become light-filled open galleries that maintain visual connections throughout the home. Ensuite bedrooms exude spaciousness and comfort, featuring open washbasins, large mirrors, and fluted-glass enclosures. Instead of traditional wardrobes, open cabinets with curtains introduce softness and maximize spatial efficiency.





Integrating the Pool and Rooftop Terrace
One of the villa’s most enchanting features is its integration of the pool as a design element that encircles the dining area, creating the illusion of dining within water. A whimsical, staggered staircase leads to the rooftop terrace, which offers panoramic views toward Mallorca Island, culminating the villa experience with a playful architectural gesture.




A Masterpiece of Mediterranean Villa Architecture
Bundle House by NOMO Studio exemplifies how thoughtful Mediterranean villa architecture can merge site constraints, local materials, and environmental responsiveness into a unified, inspiring whole. With its layered volumes, light-filled interiors, and masterful integration of outdoor spaces, it stands as a beacon of contemporary Mediterranean design, offering residents a luxurious yet deeply contextual living experience.




All Photographs are works of Adrià Goula
Popular Articles
Popular articles from the community
Three Architects Stitch a Social Center into a Crumbling Galician Hamlet
In Muimenta, Spain, timber and plywood volumes graft onto granite ruins to anchor a rural revitalization effort.
Guangzhou's Twin Towers Interiors Move Like Water
DuShe Architectural Design shapes the lobbies of a massive Guangzhou transit hub with undulating ceilings and deep geological materiality.
ure LLC Builds a Timber-Framed Suburban Office That Doubles as a Community Living Room in Hiroshima
KItoNOKO wraps sawtooth roofs and corrugated metal around an exposed timber frame to give a commercial district a new civic anchor.
Not All Architecture Grounds a Timber Retreat in Victoria's Coastal Bushland
Ironbark House stretches low beneath eucalyptus canopy, threading a quiet domestic life between courtyard, deck, and landscape.
Similar Reads
You might also enjoy these articles
Bamboo Housing Challenge 2026: Design Affordable, Sustainable Homes Using Bamboo
An international design competition by Bamboo U and IBUKU inviting architects and designers to reimagine affordable housing using bamboo — with the winning design built full-scale in Bali.
Computational Design & Education: Beegraphy Design Awards Introduces 7th Category (Featuring Jiyun's Innovative Approach)
Dive into Beegraphy’s 7th Design Awards category, where computational design meets education to create immersive, interactive learning tools, inspired by Jiyun’s work.
From Parametric Lighting to Urban Furniture: Join the 2nd Workshop in Beegraphy’s Computational Design Series
Dive into Cutting-Edge Design Techniques and Practical Applications with Industry Experts
Explore Architecture Competitions
Discover active competitions in this discipline
The International Standard for Design Portfolios
The Global Benchmark for Architecture Dissertation Awards
The Global Benchmark for Graduation Excellence
Challenge to reimagine the Iron Throne
Comments (0)
Please login or sign up to add comments
No comments yet. Be the first to comment!