Mezzanine Apartment Design: A Multi-Level Transformation by Office Ten Architecture
This article explores how a compact London apartment was transformed through mezzanine apartment design and material-led spatial layering.
A Compact Apartment Reimagined Through Spatial Innovation
In the heart of London, Office Ten Architecture has masterfully redefined compact living with a striking example of mezzanine apartment design. The project revolves around a complete overhaul of a previously dark and confined one-bedroom unit, transforming it into a bright, spatially rich, multi-level family home. This transformation celebrates the power of spatial optimization, strategic lighting, and material tactility—all within a modest 60-square-meter footprint.



Loft Conversion as a Gateway to Vertical Living
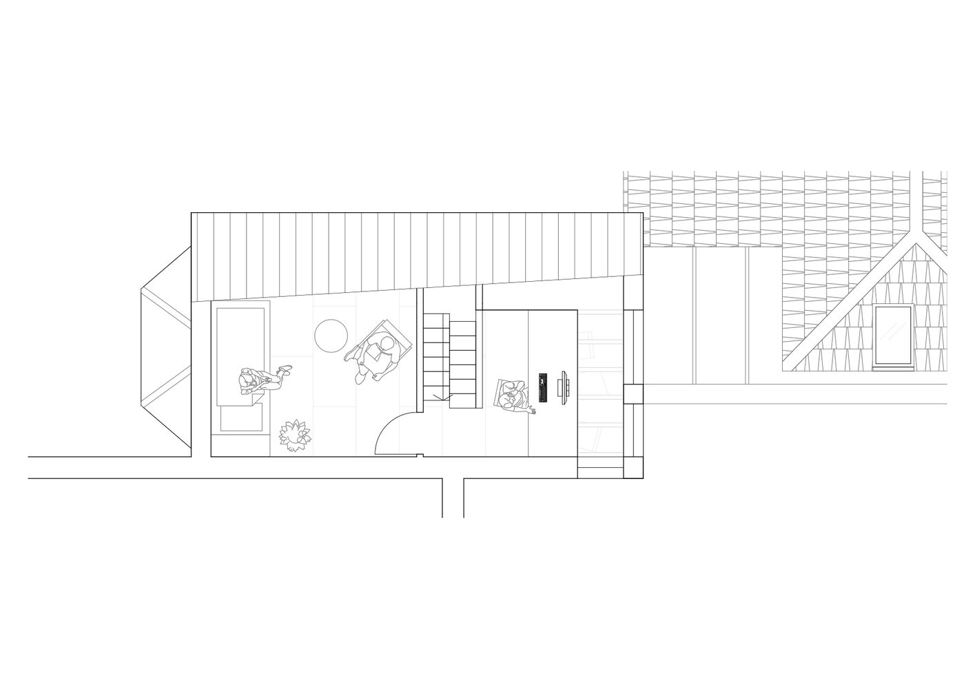
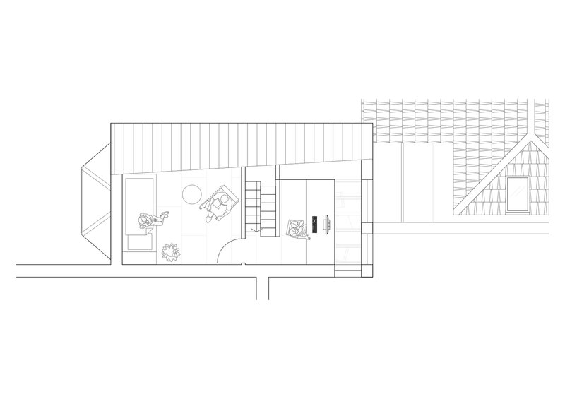
The foundation of the design lies in the vertical expansion of the existing apartment. By replacing the outdated roof with a more energy-efficient alternative, the architects unlocked the possibility of inserting a mezzanine level. This key intervention not only introduced a new layer of usable space but also brought a dramatic spatial rhythm to the interior. The newly integrated mezzanine offers visual dynamism and breaks away from the monotony of a single-level layout, allowing the apartment to unfold vertically with character and purpose.




Lighting, Contrast, and Material Palette
Natural light floods the interiors through large skylights, emphasizing the height and openness gained through the new mezzanine structure. The interplay of light and shadow becomes a central theme in this mezzanine apartment design, as daylight pours over a rich palette of exposed timber, raw plaster, and concrete panels. These materials were carefully selected to create tactile contrasts and accentuate the spatial transitions between levels. The contrast between the moody, intimate lower floors and the bright, expansive top level offers a dynamic living experience that evolves throughout the day and with the seasons.




Spatial Variety Inspired by Kettle’s Yard
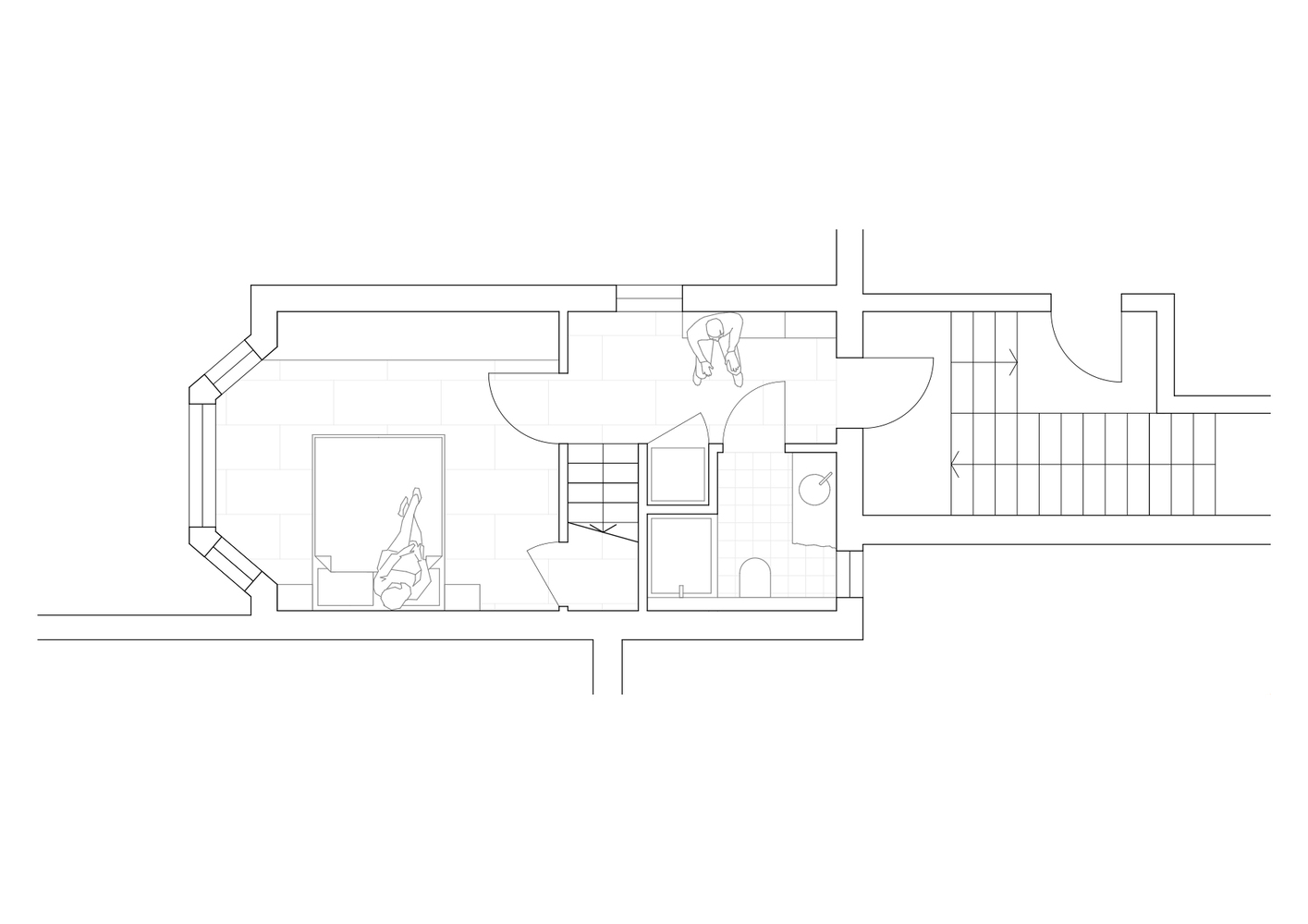
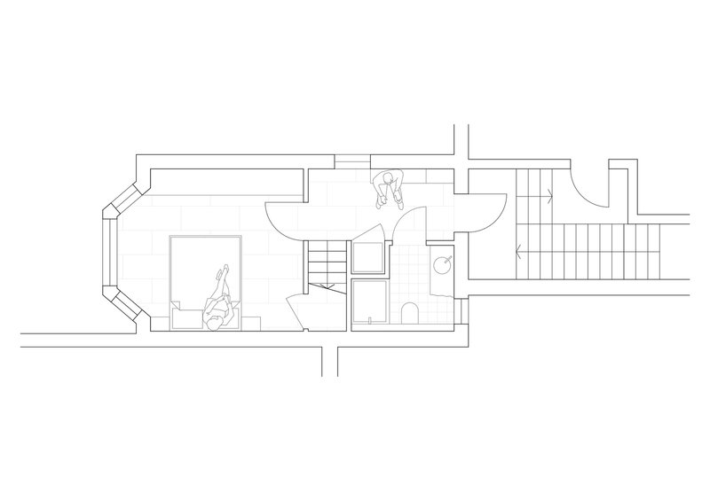
Drawing inspiration from Kettle's Yard in Cambridge, the architects introduced a series of smaller, defined rooms instead of opting for a large open-plan layout. This deliberate fragmentation lends variety to the space while maximizing functionality. Each room is designed with minimal space, but thanks to visual overlaps and borrowed views, the apartment feels generous and interconnected. Sightlines across the mezzanine and between levels allow the occupants to experience a continuity of space despite the physical separations.




Three Floors of Connected Living
The reimagined apartment now spans three distinct levels. The ground floor retains a cozy, intimate feel suitable for private family moments, while the newly added mezzanine and upper floors capture an abundance of natural light, offering a vibrant and expansive atmosphere for social gatherings or peaceful retreats. The internal transitions between these levels are seamless, emphasizing movement and connection within the home. This layered approach to living creates a spatial richness rarely found in compact urban dwellings.




A Model for Small-Footprint Urban Homes
This mezzanine apartment design stands as a model for intelligent architectural interventions in dense urban contexts. Through clever spatial reconfiguration and strategic use of materials and light, Office Ten Architecture showcases how even the most constrained spaces can be transformed into dynamic, livable environments. The result is a home that balances functionality, aesthetics, and a strong emotional connection to space—proving that size is never a limitation when design is handled with imagination and precision.




All Photographs are works of Sarah Rainer
Popular Articles
Popular articles from the community
An Miên Lumière Cafe by xưởng xép, Ho Chi Minh City, Vietnam
An industrial-inspired café where layered steel and warm light create a dynamic, immersive environment shaped by reflection, depth, and perception.
Solar Steam: A Climate-Responsive Architecture That Redefines the Monument
A climate-responsive memorial architecture that transforms heat, decay, and time into a living system reflecting humanity’s ecological impact.
Louis Malle Cinema: A Limestone Cultural Landmark Revitalizing Community Life in Prayssac
Limestone cinema extension with public forecourt, blending heritage and modern design to create flexible cultural spaces and strengthen community interaction.
Atelier Macri Concept Store Interior Design by CASE-REAL
Atelier Macri store features a "ko" counter, walnut wood details, cork displays, blending retail, gallery, and seamless customer experiences.
Similar Reads
You might also enjoy these articles
Bamboo Housing Challenge 2026: Design Affordable, Sustainable Homes Using Bamboo
An international design competition by Bamboo U and IBUKU inviting architects and designers to reimagine affordable housing using bamboo — with the winning design built full-scale in Bali.
Computational Design & Education: Beegraphy Design Awards Introduces 7th Category (Featuring Jiyun's Innovative Approach)
Dive into Beegraphy’s 7th Design Awards category, where computational design meets education to create immersive, interactive learning tools, inspired by Jiyun’s work.
From Parametric Lighting to Urban Furniture: Join the 2nd Workshop in Beegraphy’s Computational Design Series
Dive into Cutting-Edge Design Techniques and Practical Applications with Industry Experts
Introducing Sphere by UNI: Pioneering a New Era in AEC Industry
Unlocking Global Potential with BIM and Agile Management
Explore Architecture Competitions
Discover active competitions in this discipline
The International Standard for Design Portfolios
The Global Benchmark for Architecture Dissertation Awards
The Global Benchmark for Graduation Excellence
Challenge to reimagine the Iron Throne
Comments (0)
Please login or sign up to add comments
No comments yet. Be the first to comment!