Microlibrary Pringwulung SHAU Indonesia – Revitalizing Kampung Mrican Through Community-Centered Urban Design
Microlibrary Pringwulung by SHAU Indonesia revitalizes Kampung Mrican with cultural architecture, public spaces, and community-driven urban development.
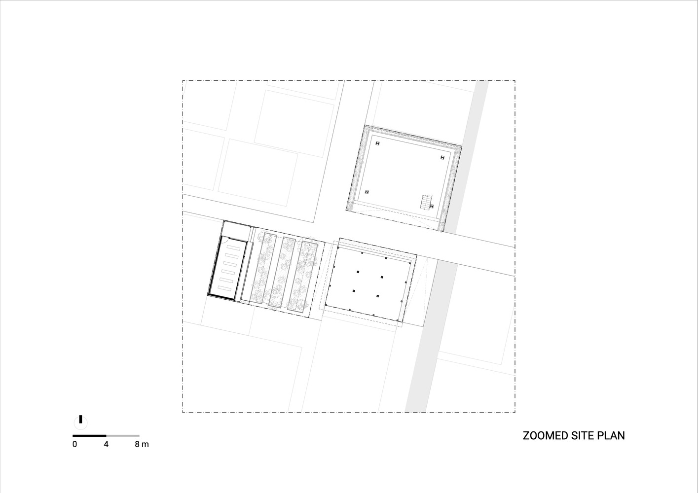
The Microlibrary Pringwulung SHAU Indonesia is a transformative urban project that reimagines Kampung Mrican in Yogyakarta. Designed by SHAU Indonesia in collaboration with the PKP Directorate of the Ministry of Public Works and Housing, the project enhances the village's infrastructure while preserving its cultural identity. With a total area of 4,353 m², this 2024 development integrates a microlibrary, community garden, pedestrian pathways, playgrounds, and flood-control systems to elevate the quality of life for residents.

Community-Centric Urban Development
Kampungs, the traditional village settlements in Indonesian cities, are characterized by high-density, low-rise housing. Kampung Mrican, located near major universities, faces pressures of urbanization and rental demands. Rather than a top-down redevelopment approach, SHAU Indonesia implemented a sensitive, incremental urban design that respects the existing social fabric and architectural character.



The planning process involved detailed urban and social analysis, with residents actively contributing to design decisions. This participatory approach ensured that new interventions such as the riverside walkway, flood-control post, and green spaces resonated with community needs. Elements like batik-patterned fences, street lighting, and historical Javanese texts on sidewalks further strengthen the cultural identity of the village.


Architectural Design of Microlibrary Pringwulung
The Microlibrary Pringwulung SHAU Indonesia serves as a cultural and educational hub, offering multifunctional spaces for community activities, events, and learning. Elevated on stilts, the structure allows for various activities underneath, including local gatherings, weddings, and motorbike parking. Its striking terracotta façade is inspired by Yogyakarta’s batik patterns, providing natural ventilation and shading.



A custom-designed terracotta shingle is the primary building material, arranged in five unique positions on a steel mesh to create dynamic patterns. Locally manufactured just a few blocks away, these shingles not only reduce costs and environmental impact but also celebrate regional craftsmanship.
Public Spaces and Urban Integration
The project extends beyond architecture, focusing on enhancing public spaces. The playground integrates traditional games and cultural references, including a terracotta Wayang figure of Gatotkaca, a celebrated hero from Javanese folklore. This cultural reference connects the play space to the street’s identity while offering children an engaging learning environment.



A community garden and urban farming initiatives are part of the master plan, supporting sustainable living practices such as organic waste recycling and eco-enzyme production. These green spaces encourage biodiversity while offering residents opportunities for relaxation and community bonding.




Sustainability and Social Impact
Sustainability is at the heart of the project, with flood-control systems, eco-friendly materials, and rainwater management embedded within the design. The pedestrian network improves walkability and accessibility while reducing dependence on vehicles. By combining modern urban planning with local cultural narratives, SHAU Indonesia has redefined how small-scale architecture and landscape design can create long-term social impact.




The Microlibrary Pringwulung SHAU Indonesia and the revitalization of Kampung Mrican exemplify how architecture can empower communities, preserve cultural heritage, and address contemporary urban challenges. This project is not only an educational and social hub but also a model for sustainable, inclusive urban design in Indonesia.




All the photographs are works of Instansi Direktorat PKP
Popular Articles
Popular articles from the community
On the Brooks House by Monsoon Collective – A Contemporary Kerala Home Rooted in Tradition
Kerala home blending tradition and modernity with water-inspired design, brick architecture, courtyard planning, and sustainable rainwater harvesting strategies.
A Contemporary Take on Iranian Residential Architecture
A modern interior design in Mashhad that reinterprets brick, light, and spatial flow to create a warm, contemporary residential architecture.
An Miên Lumière Cafe by xưởng xép, Ho Chi Minh City, Vietnam
An industrial-inspired café where layered steel and warm light create a dynamic, immersive environment shaped by reflection, depth, and perception.
Louis Malle Cinema: A Limestone Cultural Landmark Revitalizing Community Life in Prayssac
Limestone cinema extension with public forecourt, blending heritage and modern design to create flexible cultural spaces and strengthen community interaction.
Similar Reads
You might also enjoy these articles
Bamboo Housing Challenge 2026: Design Affordable, Sustainable Homes Using Bamboo
An international design competition by Bamboo U and IBUKU inviting architects and designers to reimagine affordable housing using bamboo — with the winning design built full-scale in Bali.
Computational Design & Education: Beegraphy Design Awards Introduces 7th Category (Featuring Jiyun's Innovative Approach)
Dive into Beegraphy’s 7th Design Awards category, where computational design meets education to create immersive, interactive learning tools, inspired by Jiyun’s work.
From Parametric Lighting to Urban Furniture: Join the 2nd Workshop in Beegraphy’s Computational Design Series
Dive into Cutting-Edge Design Techniques and Practical Applications with Industry Experts
Introducing Sphere by UNI: Pioneering a New Era in AEC Industry
Unlocking Global Potential with BIM and Agile Management
Explore Architecture Competitions
Discover active competitions in this discipline
The International Standard for Design Portfolios
The Global Benchmark for Architecture Dissertation Awards
The Global Benchmark for Graduation Excellence
Challenge to reimagine the Iron Throne
Comments (0)
Please login or sign up to add comments
No comments yet. Be the first to comment!