MINOR lab Stitches Three Leftover Spaces into a Community Art Ecosystem in Langfang
A café, gallery, and artist studio carved from residential surplus in a Hebei housing development prove small-scale renewal works.
China's urban agenda is pivoting. The era of expansion is giving way to the era of transformation, and the question facing designers is no longer how to build new but how to activate what already exists. In Yanjiao, a satellite district of Langfang in Hebei Province, MINOR lab has answered that question with the Jiadu Art Center: a 533 square meter interior project that reconfigures three underused spaces within a 2021 residential development into an interconnected network for art, work, and daily life.
What makes the project genuinely interesting is not that it renovated leftover rooms but how it links them into a single cultural circuit. An ancillary structure becomes a community art center. An adjacent commercial shell becomes a café. Two residential units merge into an artist's studio. Each space keeps its own identity through distinct spatial moves, yet a shared material language of terrazzo, hot-rolled steel, and strawboard ties them into one legible whole. The result is less a building and more an operating system for community creativity, slotted into the gaps of a housing block.
Before the Walls Came Down



The construction photographs reveal just how raw the starting conditions were: exposed columns, bare concrete beams, curtain wall glass, and scattered debris. These are the leftovers of a residential development that prioritized apartments over public life. MINOR lab's decision to document these conditions is telling. It frames the project as an act of spatial recovery rather than interior decoration, foregrounding the argument that stock renewal begins with understanding the bones of what you have.
The light-touch strategy is already legible in these images. Structural columns remain untouched. Elevator cores stay. The envelope is not replaced. Everything that follows is reconfiguration, not reconstruction, and the honesty of these before shots makes the after feel earned rather than imposed.
The Art Center as Flexible Machine



The community art center is the project's most programmatically ambitious space. Movable white partition panels roll across polished concrete floors, allowing the room to shift from open exhibition hall to subdivided gallery to community gathering space. The exposed concrete ceiling remains overhead, unapologetic and structural, while linear suspended light fixtures provide even, gallery-quality illumination. The system works because it is genuinely modular rather than merely described as such: you can see in the photographs that the partitions have been deployed in clearly different configurations.



Within this flexible envelope, MINOR lab introduces fixed anchors. A metal rolling ladder on one wall suggests a working archive or salon hang. Timber benches provide seating that doubles as exhibition plinths. The art center never reads as empty or incomplete even when cleared, because these permanent elements give the room a resting state that already feels occupied and purposeful.
Cork, Steel, and the Hybrid Partition



The project's signature detail is the steel-framed enclosure clad in strawboard. These hybrid elements wrap existing columns, conceal storage, provide display surfaces, and create seating in a single integrated volume. The cork-like warmth of the strawboard pushes back against the industrial grain of the hot-rolled steel framing, producing a material tension that is tactile and specific. In image after image, visitors lean against these volumes, sit on them, adjust panels beside them. They are not decorative; they are infrastructure for use.



The material logic is consistent down to the smallest details. Reception desks, wall grids, and shelving brackets all speak the same vocabulary of blackened steel and paneled surfaces. The cork-paneled wall grids at the reception provide a pinboard quality that invites change, while the precision of the steel framing suggests permanence. It is an interior designed to age well precisely because it expects to be touched, marked, and rearranged.
The Café as Threshold



The café occupies the adjacent commercial shell and retains its existing glass facade, turning the boundary between interior and exterior into the room's primary spatial event. A continuous low table runs along the glazing, placing visitors in direct visual and daylight contact with the dense greenery outside. Above, a suspended timber ceiling introduces a warm curvature that conceals mechanical services while defining the primary seating zone. The effect is surprisingly domestic for a commercial space, which is exactly the point: in a residential district, the café needs to feel like an extension of home rather than an interruption of it.



Angled windows and sloped glazing bring daylight deep into seating alcoves, while adjustable blinds and sliding frames give occupants control over privacy and glare. The stepped timber columns, with their layered profiles, act as spatial markers that subdivide the long room without closing it off. Service functions are consolidated into a single volume clad in hot-rolled steel, keeping the rest of the plan free and readable. It is a café designed for lingering, not just consuming.
The Artist Studio as Live-Work Prototype



By merging two adjacent residential units and removing non-load-bearing walls, MINOR lab establishes a continuous visual axis through the studio that transforms a pair of conventional apartments into a genuine creative workspace. The original floor-to-ceiling height allows for the insertion of a partial mezzanine, adding a private sleeping level above the work zone. Movable walls divide and connect working and living areas, also functioning as storage and display for artworks.



The supporting spaces, a kitchenette with black metal cabinetry, freestanding shelving units holding timber boxes, and a utility zone with exposed conduit, are treated with the same care and material consistency as the gallery. There is no hierarchy of finish between front-of-house and back-of-house. The artist's daily life is treated as part of the creative ecosystem, not hidden behind it. The studio is not just a place to make art; it is a place where the act of living is understood as inseparable from creative production.
Polished Concrete and Controlled Light



The terrazzo and polished concrete floors do enormous spatial work across all three programs. Their reflective quality amplifies daylight, doubles the visual presence of partition walls and artworks, and unifies rooms that might otherwise read as disconnected. The consistency of the floor plane is what makes three separate spaces feel like one institution. It is one of the quietest and most effective design decisions in the project.
Light management is equally deliberate. Adjustable roller blinds modulate glare in gallery rooms while maintaining a connection to the exterior. Track lighting supplements natural light with focused illumination for artwork. The interplay between the two is calibrated rather than defaulted: every room has a specific relationship to daylight, and the fixtures fill gaps rather than flattening the atmosphere.
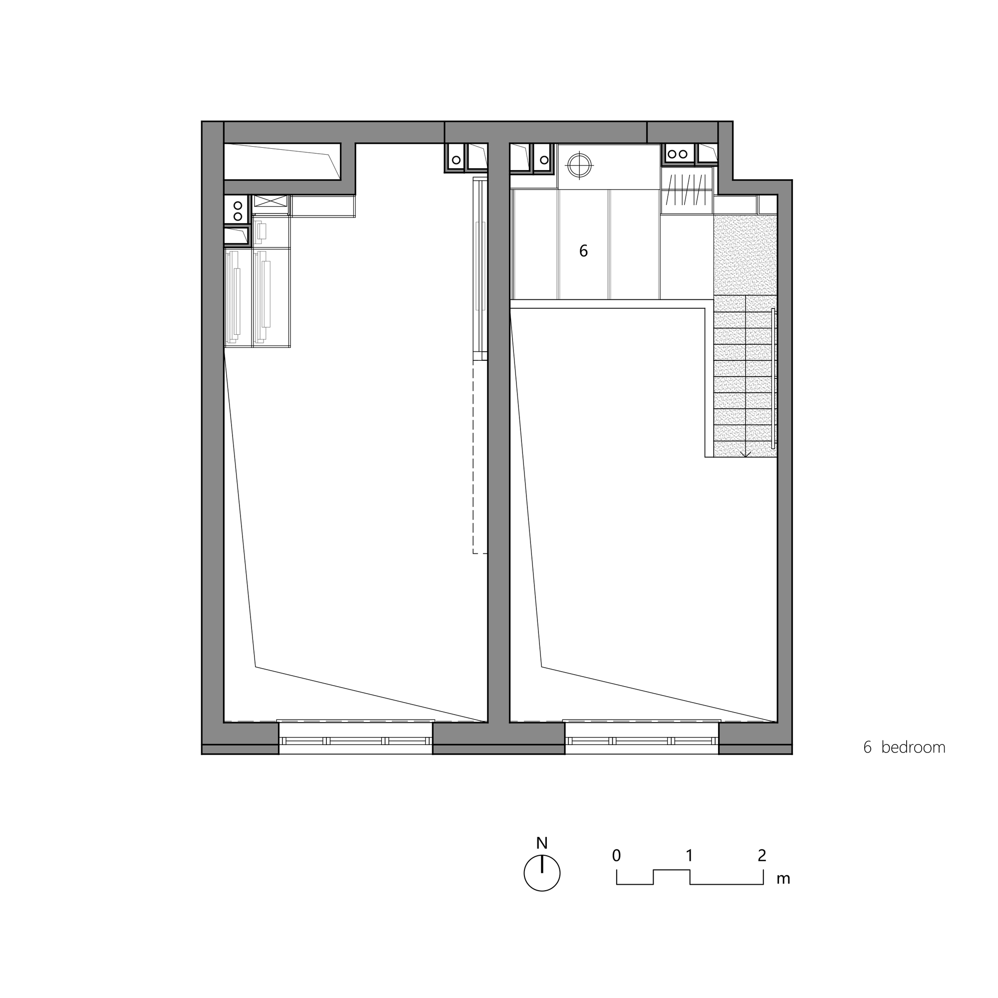
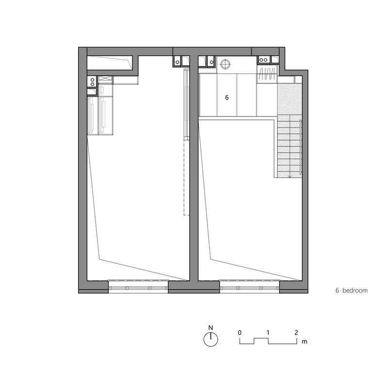
Plans and Drawings







The axonometric drawings are where the project's organizational intelligence becomes most legible. The exploded diagram breaks down the pavilion-like elements of the café into discrete components, making visible the layered logic of ceiling, structure, furniture, and enclosure. The three-state axonometric of the art center shows how the same open plan accommodates radically different configurations through movable partitions and modular seating. The six-variant diagram of the artist studio demonstrates that the live-work unit is not fixed but a field of possibilities, adapting wall positions, furniture, and program zones to suit changing needs.
The floor plans reinforce this reading. The café's curving plan wraps a central service core, while the studio plans show the clear before-and-after of wall removal and mezzanine insertion. The irregular polygon of the ancillary structure's plan reveals the site's leftover geometry, which the designers have embraced rather than fought. Together, these drawings argue convincingly that the project's adaptability is systematic, not improvised.
Why This Project Matters
The Jiadu Art Center matters because it demonstrates that community cultural infrastructure does not require a new building, a large budget, or a prominent site. It requires a willingness to see potential in surplus space and the design intelligence to connect those spaces into a coherent program. MINOR lab has not produced a landmark; they have produced a replicable model for activating the dead zones within China's vast residential building stock. In a country where hundreds of millions of square meters of ancillary and commercial space sit underused inside housing developments, that model has enormous latent value.
The deeper lesson here is about the relationship between flexibility and identity. The movable walls, modular furniture, and reconfigurable partitions are not generic solutions. They are specific to the material palette, the structural conditions, and the social aspirations of this particular community. The project does not just accommodate change; it anticipates that change is the point. Art shows will come and go, the café will rearrange itself seasonally, and the studio will shift with the artist's practice. The architecture holds steady underneath, providing a framework generous enough to support all of it.
Jiadu Art Center by MINOR lab. Langfang, Hebei Province, China. 533 m². Completed 2025. Interior design category.
About the Studio
Share Your Own Work on uni.xyz
If projects like this are the kind of work you want to make, uni.xyz is a place to publish your own, find collaborators, and enter design competitions.
Popular Articles
Popular articles from the community
A Park Building That Wants to Be a Landscape
Omrania's Operations & Maintenance Building at King Salman Park dissolves industrial program into Riyadh's largest green infrastructure.
Art 1 Office Strips Athens Back to Its Bones
Neiheiser Argyros transforms a 40-year-old Athens office building into a vivid, materially rich workplace anchored by red steel, exposed concrete, and roof
Gunawarman 35: Jakarta's Corner of Quiet Complexity
WOFF's mixed-use building in Jakarta pairs translucent glass block walls with a buff brick cylinder to hold coffee, wellness, and work under one roof.
Residence BB 214: Quiet Precision in Ludhiana
Minimalist Architecture & Design Studio composes a residence of white volumes, filtered light, and deliberate restraint in Punjab's urban fabric.
Similar Reads
You might also enjoy these articles
STEM School Mechelen by LAVA Architecten: A Future-Ready Educational Architecture in Belgium
Flexible, sustainable STEM school in Mechelen featuring modular classrooms, acoustic innovation, and energy-efficient design supporting future-focused collaborative learning environments.
Marvila Apartment Renovation in Lisbon: A Bright Minimalist Attic Transformation by KEMA Studio
Bright attic transformed into minimalist Lisbon apartment with skylights, sustainable materials, open plan layout, and industrial-inspired interior design elements.
20 Most Popular Commercial Architecture Projects of 2025
From sustainable market concepts to heritage factories, the commercial buildings and proposals that drew the most attention on uni.xyz this year.
Mantiqueira House by SysHaus and M Magalhães Estúdio
A linear modular house embedded in Serra da Mantiqueira, integrating panoramic views, sustainable prefabrication, minimal terrain impact, and contemporary interiors.
Comments (0)
Please login or sign up to add comments
No comments yet. Be the first to comment!