Modern Lakeside Cottage Design: Palissade Cottage by NatureHumaine
Palissade Cottage by NatureHumaine redefines modern lakeside cottage design with bold materiality, seamless nature integration, and a refined spatial experience.
Palissade Cottage, designed by NatureHumaine, is an architectural masterpiece that redefines modern lakeside cottage design by blending robust materiality with a seamless connection to nature. Nestled between Route 112 and Lake Orford in Austin, Canada, this striking home was conceived as a bold response to its unique site conditions. The residence stands as a juxtaposition of opacity and transparency, using brick as a protective shield against the roadside while opening up entirely toward the breathtaking lakeside views.






A Sculptural Form Rooted in Site Context
Originally, the site housed a small boathouse extending into a flood-prone zone. Instead of renovating, the architects opted for a complete rebuild, situating the new structure on safer ground closer to the road. This decision informed the home’s distinctive design, which presents a fortified, palisade-like façade toward the street while embracing an open and fluid relationship with the lake.




The orientation of the site posed a challenge, with the road-facing side directed south and the lake to the north. To counterbalance this, the architects introduced a high horizontal window band on the southern side, allowing natural light to penetrate deep into the home’s core. A centrally positioned skylight further enhances daylight flow, illuminating the main walkway that leads toward the lake. This architectural maneuver ensures that interior spaces remain bright and inviting while maintaining the privacy and solidity of the street-facing façade.





A Harmonious Balance of Mass and Light
The architectural form of Palissade Cottage is defined by a monolithic masonry structure topped with a low-pitched four-sided roof. A detached garage, clad in matching masonry, echoes the design language of the main residence. The choice of brick as the primary exterior material enhances both durability and acoustic insulation from the busy road. Visually, the heaviness of the masonry base gives the impression that the roof is floating, a subtle architectural illusion achieved by the horizontal window band that separates the two elements.




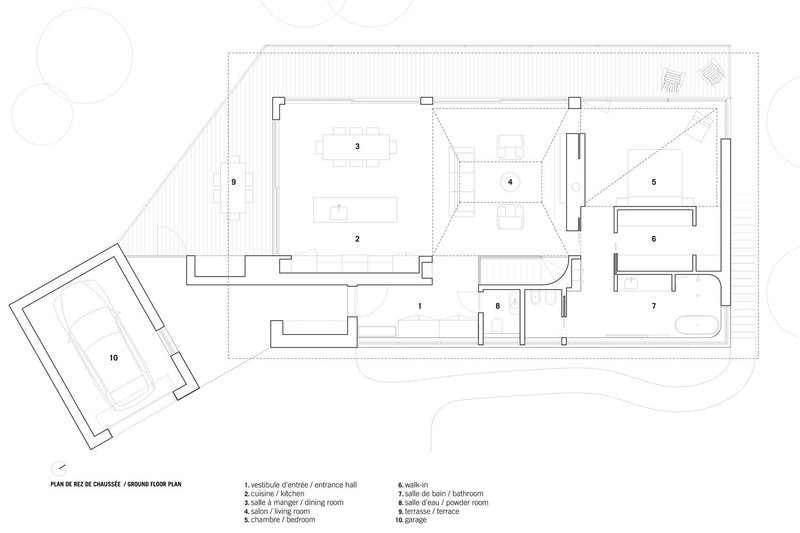
The interior layout follows a split-level arrangement, with the main living areas positioned at street level and the private quarters, including guest bedrooms and a secondary lounge, situated on the lower garden level. This zoning strategy ensures that communal spaces remain light-filled and expansive, while the more intimate areas enjoy a secluded and cozy atmosphere.




A Design Tailored for Lakeside Living
One of the key features of this modern lakeside cottage design is the seamless integration of indoor and outdoor living. The western terrace, adjacent to the kitchen, provides a perfect vantage point for sunset views while offering privacy from the entrance. The kitchen’s functional design extends outward, accommodating an outdoor cooking space that enhances the experience of lakeside living.



To the east, the master bedroom shares a two-sided fireplace with the living area, creating a warm and intimate ambiance. Due to its proximity to a neighboring property, glazing is kept to a minimum, but a carefully positioned corner window allows for morning sunlight and picturesque views of Mount Orford.


A Rich Material Palette with Timeless Appeal
Departing from the dominant trend of all-white contemporary interiors, the clients sought a richer and more tactile material palette. The ceilings are clad in stained wood paneling, while cherry veneer walls add warmth and depth. Copper-framed windows complement the wooden tones, creating a harmonious interplay of materials. The kitchen wall features beige brick, extending the exterior language into the interior, while a taupe-toned recessed cabinet niche adds subtle contrast.




Natural stone plays a prominent role in key design elements, with the fireplace, kitchen island, and vanities crafted from raw stone, enhancing the home’s organic aesthetic. The railing details, both inside and out, echo the earthy tones of the material palette, reinforcing a sense of cohesion throughout the residence.






Redefining Modern Lakeside Cottage Design
Palissade Cottage is more than just a residence; it is a carefully curated architectural statement that encapsulates the artistic sensibilities of its owners. By seamlessly blending solid and transparent elements, the design achieves a perfect balance between privacy, openness, and natural immersion. The thoughtful material selection and meticulous attention to spatial composition ensure that this modern lakeside cottage design remains timeless, offering an inspiring retreat for both its residents and guests.


NatureHumaine’s vision for Palissade Cottage challenges conventional architectural archetypes, showcasing how a lakeside home can simultaneously exude strength and serenity. The result is a refined, enduring work of architecture that stands as a testament to the power of materiality, light, and spatial storytelling.


All Photographs are works of Raphaël Thibodeau
Popular Articles
Popular articles from the community
Inverted Architecture Installation by Studio Link-Arc: Exploring the Intersection of Architecture and Living Organisms
Inverted Architecture Installation by Studio Link-Arc blends mycelium, sustainability, inverted design, ecological cycles, and urban adaptive architecture in Shenzhen.
Atelier Macri Concept Store Interior Design by CASE-REAL
Atelier Macri store features a "ko" counter, walnut wood details, cork displays, blending retail, gallery, and seamless customer experiences.
Gads Hill Early Learning Center by JGMA: Adaptive Reuse Shaping Community-Focused Educational Architecture
Adaptive reuse transforms fragmented structure into vibrant early learning center with playful façade, natural light, and community-focused sustainable design.
Similar Reads
You might also enjoy these articles
Bamboo Housing Challenge 2026: Design Affordable, Sustainable Homes Using Bamboo
An international design competition by Bamboo U and IBUKU inviting architects and designers to reimagine affordable housing using bamboo — with the winning design built full-scale in Bali.
Computational Design & Education: Beegraphy Design Awards Introduces 7th Category (Featuring Jiyun's Innovative Approach)
Dive into Beegraphy’s 7th Design Awards category, where computational design meets education to create immersive, interactive learning tools, inspired by Jiyun’s work.
From Parametric Lighting to Urban Furniture: Join the 2nd Workshop in Beegraphy’s Computational Design Series
Dive into Cutting-Edge Design Techniques and Practical Applications with Industry Experts
Explore Architecture Competitions
Discover active competitions in this discipline
The International Standard for Design Portfolios
The Global Benchmark for Architecture Dissertation Awards
The Global Benchmark for Graduation Excellence
Challenge to reimagine the Iron Throne
Comments (0)
Please login or sign up to add comments
No comments yet. Be the first to comment!