Modern Minimalist Architecture in Cyprus: Unveiling Residence 222 by Eraclis Papachristou Architects
This article describes Residence 222 in Cyprus, highlighting its modern minimalist architecture and dual functionality as a home and art gallery.
Nestled in the wheat fields of Nicosia, Cyprus, Residence 222 stands as a testament to the potential of modern minimalist architecture. Designed by the acclaimed Eraclis Papachristou Architects, this home merges the functionality of living space with the aesthetic of an exhibition gallery, offering a unique architectural statement.


Architectural Philosophy and Design
Embracing Minimalism and Functionality
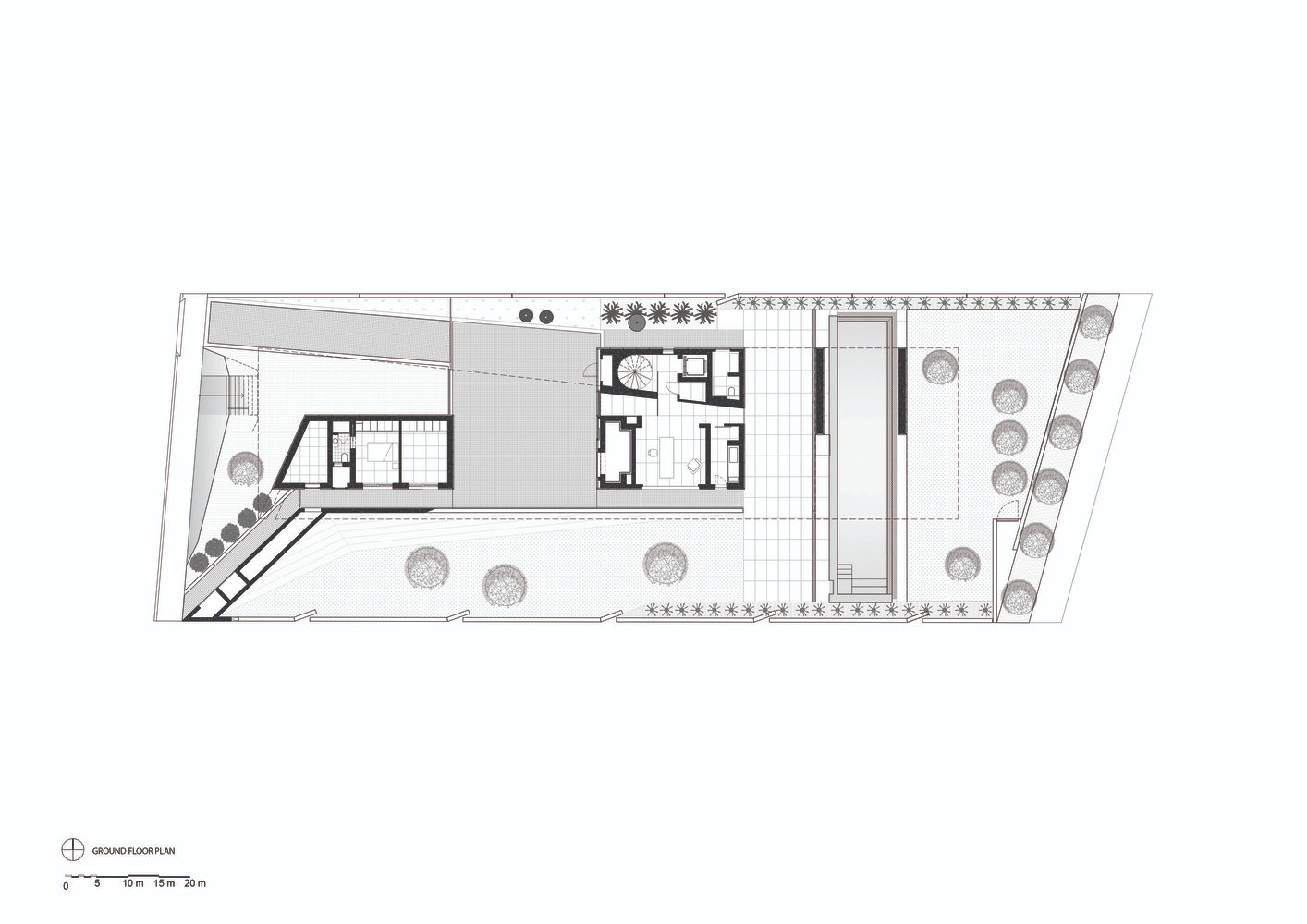
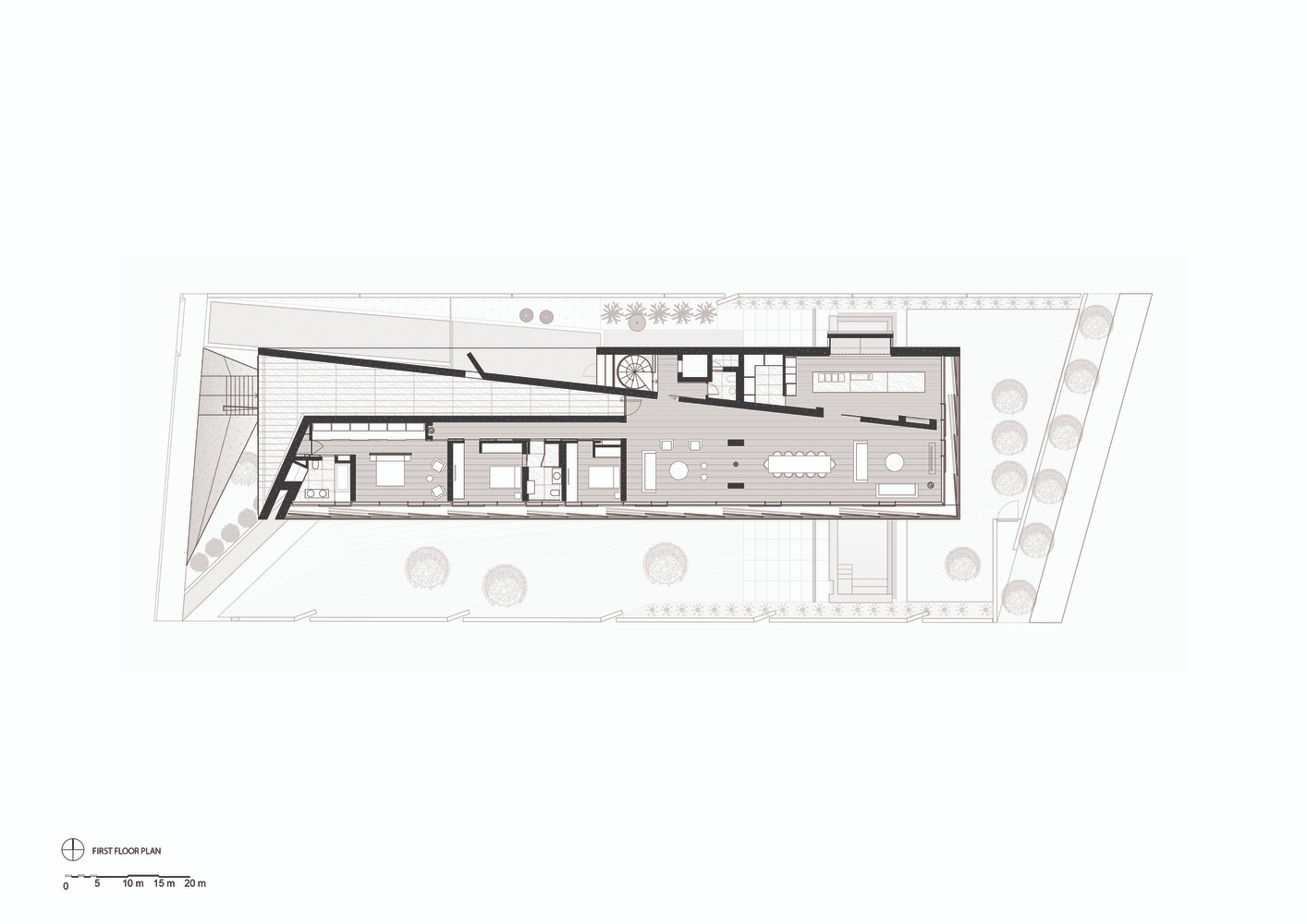
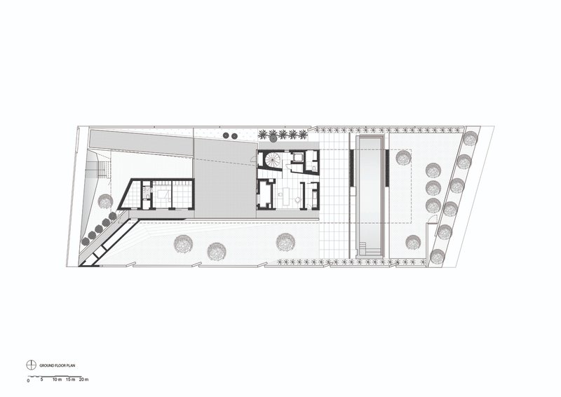
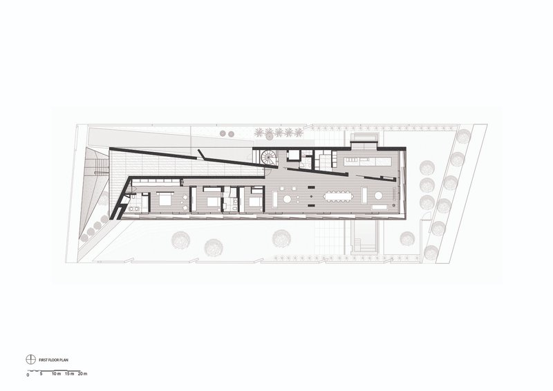
Residence 222 is characterized by its stark minimalist approach, utilizing exposed concrete and a longitudinal volume that acts as a hinge between the earth and sky. The design philosophy focuses on simplicity and the effective use of space, which is evident in the residence’s clean lines and uncluttered appearance.


Strategic Use of Space and Light
The residence is designed to enhance the natural play of light and shadows within the space, creating dynamic visual effects throughout the day. The minimal number of openings on the northwest façade are carefully crafted to form protective and directional shields, balancing privacy with the need for natural light.



Interior Design and Layout
The Intersection of Art and Living
Inside Residence 222, the vast volumes create a canvas for art and sculpture, blurring the lines between a private abode and an art gallery. This integration allows for a living experience that is continually engaging and aesthetically stimulating. The interior is a formal dance of the unexpected, where each element—from the staircase to the handrails—is a piece of art in itself.



High Ceilings and Luxurious Materials
The interior boasts immense heights, reminiscent of the mansions that historically signified wealth in Cyprus. The elevated language of the piano nobile in the design adds a vernacular touch to the otherwise modernist structure. Materials like crisp marble surfaces and long, simple lines ensure the architecture remains contemporary and solidly minimalist.


Cultural and Architectural Impact
A Contemporary Take on Cypriot Architecture
Residence 222 not only serves as a home but also as a cultural statement about the evolution of architecture in Cyprus. It reflects a shift towards modern minimalist design, emphasizing functionality without compromising on aesthetic values.



Setting a New Standard
The design of Residence 222 sets new benchmarks for residential architecture in Cyprus, pushing the boundaries of traditional design to embrace modernism and minimalism. It showcases how contemporary architecture can coexist with and enhance the natural environment, providing a blueprint for future projects in the region.




The Essence of Modern Minimalist Architecture in Cyprus
Residence 222 by Eraclis Papachristou Architects is a pioneering example of modern minimalist architecture in Cyprus. It captures the essence of minimalist design while providing a functional, livable space that doubles as an art gallery, offering a unique blend of privacy, art, and architectural innovation.





All photographs are work of Hufton+Crow, ©Creative Photo Room
Popular Articles
Popular articles from the community
TGK Nirasaki Plant: A Smart Factory Blending Technology, Landscape, and Wellness
Smart factory in Japan blending IoT manufacturing, scenic trail design, natural ventilation, and landscape integration to enhance user experience and sustainability.
20 Most Popular Commercial Architecture Projects of 2025
From sustainable market concepts to heritage factories, the commercial buildings and proposals that drew the most attention on uni.xyz this year.
Free Architecture Competitions You Can Enter Right Now
No entry fees, real prizes. Here are the best free architecture competitions open for submissions in 2026.
Rede Arquitetos Builds an Open-Air School in Fortaleza That Doubles as a Neighborhood Living Room
Educar II SESC-CE folds sports, dance, and community gathering into a courtyard campus wrapped in mesh and tropical color.
Similar Reads
You might also enjoy these articles
Bamboo Housing Challenge 2026: Design Affordable, Sustainable Homes Using Bamboo
An international design competition by Bamboo U and IBUKU inviting architects and designers to reimagine affordable housing using bamboo — with the winning design built full-scale in Bali.
Computational Design & Education: Beegraphy Design Awards Introduces 7th Category (Featuring Jiyun's Innovative Approach)
Dive into Beegraphy’s 7th Design Awards category, where computational design meets education to create immersive, interactive learning tools, inspired by Jiyun’s work.
From Parametric Lighting to Urban Furniture: Join the 2nd Workshop in Beegraphy’s Computational Design Series
Dive into Cutting-Edge Design Techniques and Practical Applications with Industry Experts
Explore Architecture Competitions
Discover active competitions in this discipline
The International Standard for Design Portfolios
The Global Benchmark for Architecture Dissertation Awards
The Global Benchmark for Graduation Excellence
Challenge to reimagine the Iron Throne
Comments (0)
Please login or sign up to add comments
No comments yet. Be the first to comment!