Modern Multi-Functional Villa Design: Bridge House by Klab Architecture
The Bridge House by Klab Architecture redefines luxury villa design with its multi-functional layout, sustainability, and seamless indoor-outdoor living.
A Contemporary Retreat Overlooking Ververonda Bay
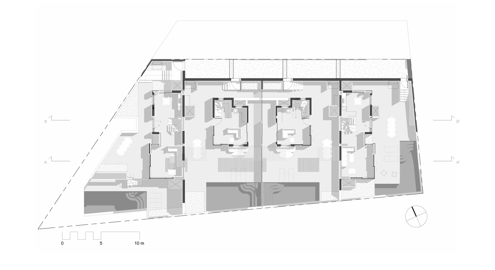
The Bridge House, designed by Klab Architecture, is a visionary residential project located above Ververonda Bay in Porto Heli, Greece. This 500-square-meter structure harmonizes modern design principles with the natural beauty of the Argolic Gulf and the Peloponnese. Designed to accommodate four independent residences that can be combined into a single house in the future, the Bridge House balances complex spatial requirements with innovative solutions, offering a luxurious and versatile retreat.



Site and Context: Embracing the Landscape
Nestled on an elongated, relatively flat plot with a steep western slope, the site is surrounded by a serene pine forest. This natural setting inspired the design, which minimizes the building’s ground-level footprint to preserve outdoor spaces and maximize interaction with the landscape. The steep western slope is creatively utilized to introduce varying levels and retaining walls, integrating the structure seamlessly into its surroundings.



Architectural Concept: Dynamic Outdoor Living
The design prioritizes outdoor living, recognizing the significance of exterior spaces in residences primarily used during the warm Mediterranean months. Semi-open areas beneath the narrow upper-floor projections provide shaded retreats, while large openings blur the line between indoor and outdoor spaces. A longitudinal pergola further enhances the outdoor experience, offering a dynamic environment that shifts between sun and shade throughout the day.


Interior Layout: Flexibility and Privacy
Ground Floor: Open and Expansive
The ground floor is compact, featuring kitchens and small living areas that visually extend into the outdoor spaces. These areas are designed with large openings that frame breathtaking views of the surrounding landscape, ensuring a seamless connection between interior and exterior environments.


Upper Floor: Independent and Private
The upper floor is dedicated to small, independent bedrooms, each equipped with a private bathroom. Middle residences share a balcony, while corner units feature large terraces complete with jacuzzis, providing a private and luxurious retreat. Loft spaces under the extended rooflines are designed for children, adding a playful and functional element to the design.


Basement: Innovative Use of Light
The basement rooms defy conventional expectations by incorporating skylights and courtyards that allow ample natural light to penetrate the space. This thoughtful integration of light and ventilation ensures these spaces are comfortable and inviting.


Structural Innovation: A Bridge-Inspired Design
The house’s elongated, narrow volume extends over staircases and living areas, creating openings that resemble a bridge. These cantilevered elements not only enhance the aesthetic appeal but also improve airflow through the structure, aligning it with sustainable design principles. The symmetry of the building is subtly disrupted by the western slope, introducing variations in levels and adding visual interest.

Sustainable and Climate-Responsive Features
The Bridge House is designed to respond to the local climate, with cantilevered projections and pergolas providing shade during the intense summer months. Openings aligned along the north-south axis generate natural air currents, cooling the interior spaces and reducing reliance on artificial climate control.



A Versatile and Sustainable Retreat
The Bridge House by Klab Architecture exemplifies modern multi-functional villa design, seamlessly integrating luxurious living with sustainability and adaptability. Its thoughtful use of space, light, and ventilation creates a residence that is as functional as it is beautiful. By prioritizing outdoor living and responding to its unique site, the Bridge House serves as a model for future-oriented residential design in natural settings.




All Photographs are work of Panagiotis Voumvakis
Popular Articles
Popular articles from the community
Cafe MADA: A Chiang Rai Pavilion in a Mango Orchard
BodinChapa Architects threaded a 254 m² black-roofed cafe through an existing mango orchard in Chiang Rai, Thailand, built around mature trees.
Filtering Space: A Gradual Spatial Experience
From urban intensity to spatial calm.
20 Most Popular Commercial Architecture Projects of 2025
From sustainable market concepts to heritage factories, the commercial buildings and proposals that drew the most attention on uni.xyz this year.
MAKER architecten Rewire a 1972 Brutalist Dormitory on the VUB Campus as a Living Lab
A modular renovation strategy in Belgium breathes new life into Willy Van Der Meeren's modernist student housing without erasing its concrete bones.
Similar Reads
You might also enjoy these articles
Filtering Space: A Gradual Spatial Experience
From urban intensity to spatial calm.
The Ken Roberts Memorial Delineation Competition (Krob)
As the most senior architectural drawing competition currently in operation anywhere in the world, it draws hundreds of entries each year, awarding the very best submissions in a series of medium-based categories.
Waterfront Redevelopment and Urban Revitalization in Mumbai: Forging a New Dawn for Darukhana
A transformative waterfront redevelopment project reimagining Darukhana’s shipbreaking heritage into an inclusive urban future.
OUT-OF-MAP: A Call for Postcards on Feminist Narratives of Public Space
Rhizoma Design and Research Lab invites artists, designers, architects, researchers, and students to reflect on how feminist perspectives can reshape public space. Selected works will be exhibited in Barcelona, October 2026. Submissions open until 15 April 2026.
Explore Architecture Competitions
Discover active competitions in this discipline
The International Standard for Design Portfolios
The Global Benchmark for Architecture Dissertation Awards
The Global Benchmark for Graduation Excellence
Challenge to reimagine the Iron Throne
Comments (0)
Please login or sign up to add comments
No comments yet. Be the first to comment!