Modern Office Design at BigRock Headquarters
The article discusses the transformation of two warehouses into the modern office headquarters for BigRock by ZAA Zanon Architetti Associati.
BigRock, renowned in the European 3D animation scene since 2005, recently inaugurated its new headquarters designed by ZAA Zanon Architetti Associati. The project is a significant upgrade, transforming two former warehouses into a modern office space that supports creativity and collaboration.




Design Philosophy and Objectives
The primary goal was to retain the historical essence while incorporating elements of modern office design. The project emphasizes open spaces and minimalistic design, integrating technology seamlessly with functional aesthetics, which is critical in fostering an environment conducive to creativity in digital arts.




Architectural and Interior Design
The use of light metal structures and soundproofing panel curtains in the initial temporary setup facilitated the division of large spaces into more manageable, acoustically insulated areas. These modifications allowed for a flexible, economical, and removable solution that addressed the immediate needs of the growing institution.




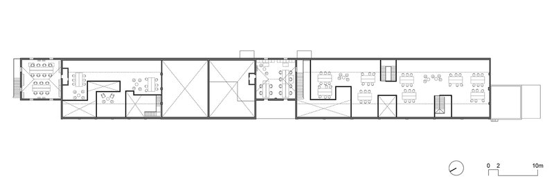
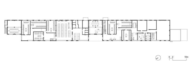
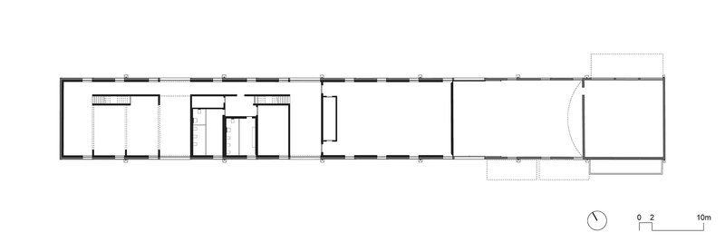
Spatial Arrangement and Usability
In the permanent setup, the office space was designed to maximize natural light and enhance employee well-being—a core principle of modern office design. The architectural plan was meticulously crafted to segregate different functional areas while ensuring fluid connectivity across the workspace. This layout helps in maintaining an open yet structured environment conducive to both collaborative projects and individual tasks.


Sustainable Practices and Materials
The choice of materials was guided by sustainability principles, another cornerstone of modern office design. Recycled materials were preferred, and the existing structures were upgraded with energy-efficient solutions to minimize the environmental impact.




A Model of Modern Office Design
The BigRock Headquarters by ZAA Zanon Architetti Associati is a testament to how contemporary architecture can transform traditional spaces into modern workplaces. It stands as a model of modern office design, emphasizing sustainability, openness, and integration of technology.



All photographs are work of Marco Zanta
Popular Articles
Popular articles from the community
The Ken Roberts Memorial Delineation Competition (Krob)
As the most senior architectural drawing competition currently in operation anywhere in the world, it draws hundreds of entries each year, awarding the very best submissions in a series of medium-based categories.
Gads Hill Early Learning Center by JGMA: Adaptive Reuse Shaping Community-Focused Educational Architecture
Adaptive reuse transforms fragmented structure into vibrant early learning center with playful façade, natural light, and community-focused sustainable design.
Split House: A Compact Urban Home Blending Privacy, Light, and Flexible Living in Japan
Compact Japanese home featuring DOMA space, flexible café potential, passive lighting, privacy zoning, and sustainable urban living design.
Atelier Macri Concept Store Interior Design by CASE-REAL
Atelier Macri store features a "ko" counter, walnut wood details, cork displays, blending retail, gallery, and seamless customer experiences.
Similar Reads
You might also enjoy these articles
The Ken Roberts Memorial Delineation Competition (Krob)
As the most senior architectural drawing competition currently in operation anywhere in the world, it draws hundreds of entries each year, awarding the very best submissions in a series of medium-based categories.
Waterfront Redevelopment and Urban Revitalization in Mumbai: Forging a New Dawn for Darukhana
A transformative waterfront redevelopment project reimagining Darukhana’s shipbreaking heritage into an inclusive urban future.
OUT-OF-MAP: A Call for Postcards on Feminist Narratives of Public Space
Rhizoma Design and Research Lab invites artists, designers, architects, researchers, and students to reflect on how feminist perspectives can reshape public space. Selected works will be exhibited in Barcelona, October 2026. Submissions open until 15 April 2026.
Documentation Work on Buddhist Wooden Temple
Architectural syncretism and cultural hybridity: A comparative study of the Buddhist temples in Chattogram Hill tracks
Explore Office Building Competitions
Discover active competitions in this discipline
The International Standard for Design Portfolios
The Global Benchmark for Architecture Dissertation Awards
The Global Benchmark for Graduation Excellence
Challenge to reimagine the Iron Throne
Comments (0)
Please login or sign up to add comments
No comments yet. Be the first to comment!