Modern Townhouse Extension: LAC Architecture Redefines Urban Living with a Wooden Expansion
LAC Architecture’s modern townhouse extension redefines urban living with fluid spaces, ecological materials, and a seamless blend of old and new.
A modern townhouse extension is more than just an addition; it is an opportunity to redefine spatial relationships and enhance contemporary living. LAC Architecture’s latest project near Paris exemplifies this philosophy by seamlessly integrating a wooden extension into a traditional townhouse. With an emphasis on openness, adaptability, and ecological materiality, the design transforms the conventional home into a dynamic and fluid environment that encourages interaction and multifunctional living.




Blending Contemporary and Traditional Architecture
The townhouse extension harmoniously blends with its surrounding urban fabric while asserting a distinct contemporary identity. The exterior presents a silent and modest façade, ensuring that the new addition respects the existing architectural language. However, subtle yet intentional design choices mark its modernity, creating a structure that stands out without disrupting its environment.


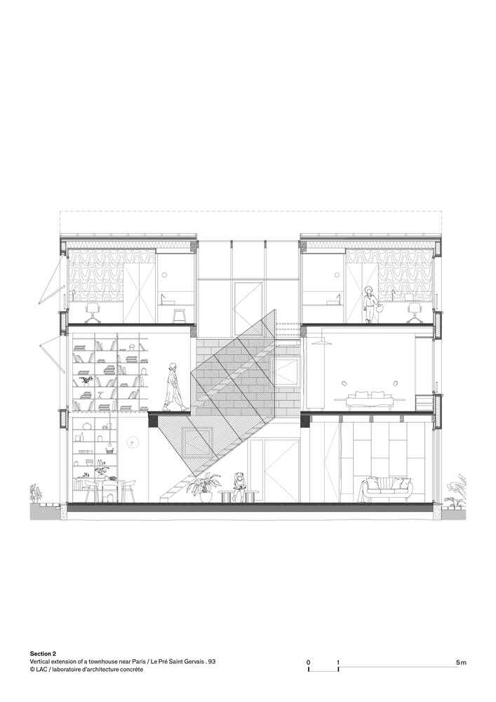
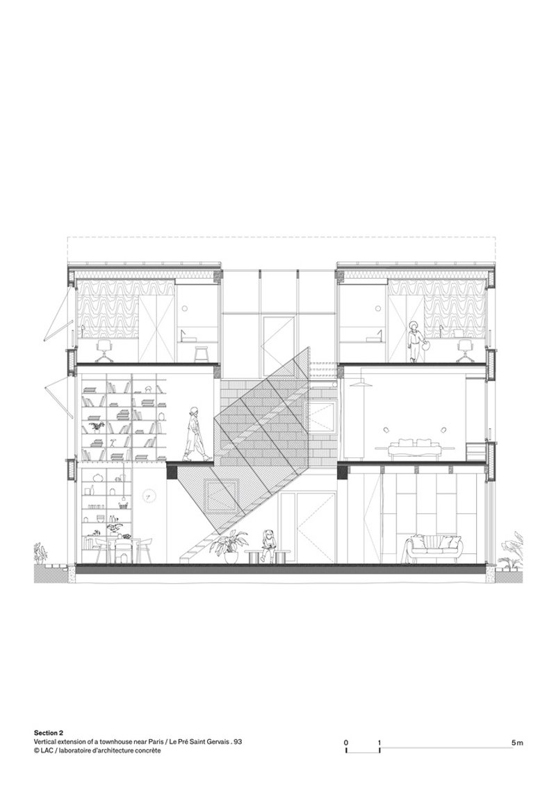
Inside, the intervention challenges the conventional division of spaces based on the day/night program. Instead of adhering to a rigid floor-based organization, the design focuses on volume and interconnected spatial relationships. This approach fosters a playful, evolving, and multifunctional home that adapts to the needs of its occupants.


Spatial Fluidity and Innovative Living Spaces
Rather than compartmentalizing functions into separate rooms, the townhouse extension embraces an open and visually porous layout. The design encourages new ways of living by integrating flexible spaces that serve multiple purposes.


A skylight transforms into a reading nook or a home projection space. The staircase landing doubles as a laundry and games area. The master bedroom seamlessly extends into the living room, erasing traditional boundaries. Structure and furniture merge to create an immersive architectural experience, where everyday activities become dynamic and engaging.


Sustainability and Material Economy
The project is deeply rooted in an ecological philosophy that prioritizes resource efficiency. By maximizing the natural properties of materials, the design minimizes unnecessary layering and superfluous finishes. A structural slab serves as a floor covering, waterproofing elements become visual features, and raw materials define the aesthetic rather than concealing them.



This frugal yet generous approach results in an architecture that feels open-ended—unfinished in a way that leaves room for future adaptability. The materials, primarily wood, enhance warmth while reinforcing the sustainable nature of the intervention.




Strategic Openings and Urban Connectivity
In a densely populated urban setting, managing natural light and privacy is crucial. The townhouse extension carefully positions its openings as precise incisions, allowing daylight to flood the interiors while maintaining privacy. These strategic windows frame specific views of the surrounding urban landscape, creating a constant dialogue between the home and its external environment.


Despite the abundance of natural light, the arrangement of openings ensures that intimate spaces remain shielded from direct outside visibility. This balance between openness and seclusion enhances both comfort and spatial experience.


A New Paradigm for Townhouse Extensions
LAC Architecture’s modern townhouse extension reimagines urban living through spatial innovation, ecological responsibility, and fluid programmatic design. By prioritizing multifunctionality, material efficiency, and intentional spatial relationships, the project sets a new benchmark for contemporary home extensions.



The transformation of this Parisian townhouse highlights how architecture can be both restrained and expressive—respecting its historical context while confidently embracing modern living principles. This project stands as a testament to the power of architecture to reshape the way we inhabit spaces, making homes more dynamic, adaptable, and attuned to their occupants' needs.



All Photographs are works of Phillipe Billard
Popular Articles
Popular articles from the community
Inverted Architecture Installation by Studio Link-Arc: Exploring the Intersection of Architecture and Living Organisms
Inverted Architecture Installation by Studio Link-Arc blends mycelium, sustainability, inverted design, ecological cycles, and urban adaptive architecture in Shenzhen.
Alton Cliff House: A Harmonious Retreat by f2a Architecture in Lake Country, Canada
Alton Cliff House blends corten steel, prefabrication, and sustainable design, creating a luxurious, energy-efficient retreat perched on Canadian cliffs.
Free Architecture Competitions You Can Enter Right Now
No entry fees, real prizes. Here are the best free architecture competitions open for submissions in 2026.
Atelier Macri Concept Store Interior Design by CASE-REAL
Atelier Macri store features a "ko" counter, walnut wood details, cork displays, blending retail, gallery, and seamless customer experiences.
Similar Reads
You might also enjoy these articles
Bamboo Housing Challenge 2026: Design Affordable, Sustainable Homes Using Bamboo
An international design competition by Bamboo U and IBUKU inviting architects and designers to reimagine affordable housing using bamboo — with the winning design built full-scale in Bali.
Computational Design & Education: Beegraphy Design Awards Introduces 7th Category (Featuring Jiyun's Innovative Approach)
Dive into Beegraphy’s 7th Design Awards category, where computational design meets education to create immersive, interactive learning tools, inspired by Jiyun’s work.
From Parametric Lighting to Urban Furniture: Join the 2nd Workshop in Beegraphy’s Computational Design Series
Dive into Cutting-Edge Design Techniques and Practical Applications with Industry Experts
Explore Architecture Competitions
Discover active competitions in this discipline
The International Standard for Design Portfolios
The Global Benchmark for Architecture Dissertation Awards
The Global Benchmark for Graduation Excellence
Challenge to reimagine the Iron Throne
Comments (0)
Please login or sign up to add comments
No comments yet. Be the first to comment!