Modernist Apartment Restoration: Guinle Park Apartment in the Iconic Caledônia Building
A modern restoration of a 1954 Guinle Park apartment that celebrates Brazilian modernist architecture and historical design elements.
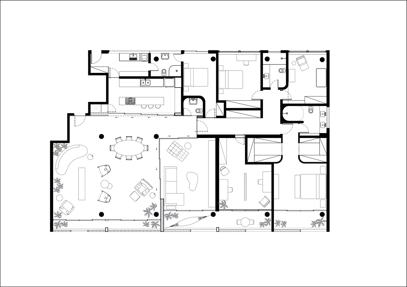
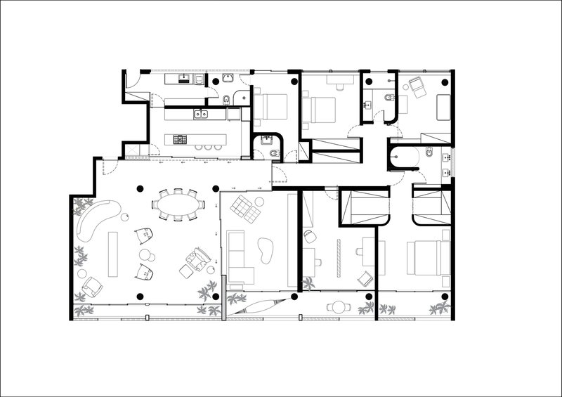
The Caledônia Building is a hallmark of Brazilian modernist architecture. Located in the lush greenery of Guinle Park in Rio de Janeiro, Brazil, Designed in 1954 by the renowned architect Lúcio Costa, the building exemplifies the ideals of modernism, combining clean lines, functional aesthetics, and integration with the natural environment. The restoration of a 250 m² apartment in this iconic building by LINHA Arquitetura pays homage to its original features while reimagining the space for contemporary living.


The architectural design, led by Paula Daemon and Lis Fernanda Thuller, carefully balances the preservation of historical elements with modern functionality. The result is an interior space that honors the beauty of its origins while adapting seamlessly to the needs of today.


Preserving Modernist Heritage
The project’s primary objective was to reveal and celebrate the original elements of the apartment. Key features such as the iconic cobogós (perforated concrete blocks) and brise-soleils (architectural sunshades) define the façade and create a dynamic interplay of light and shadow inside the apartment. These elements, along with the round pillars characteristic of mid-century modern design, provide a rhythm and structure that form the foundation of the apartment’s aesthetic.


LINHA Arquitetura’s approach avoided excess, focusing instead on creating an atmosphere that respected the apartment's existing elements. The furniture and materials were carefully chosen to enhance the modernist aesthetic, blending seamlessly with the original architectural details.


Materiality and Design Details
The selected materials establish a harmonious dialogue between the apartment’s interiors and the building’s façade. In the kitchen, bluish-green tiles echo the tone of the brise-soleils, creating a visual connection between the interior and exterior. Similarly, terracotta tones in the bathroom reference the cobogós, reinforcing the cohesion of the design.

The stainless steel kitchen cabinets, original to the apartment, were refurbished and reintegrated into the space. A glass brise was incorporated above the upper cabinets to improve air circulation and allow natural light to flood the kitchen. This thoughtful combination of old and new elements ensures that the history of the space is preserved while modern comfort is enhanced.

Celebrating Light and Space
The interplay of light and space is central to the design of the Guinle Park apartment. The cobogós and brise-soleils not only serve a functional purpose by controlling sunlight but also add an artistic dimension to the interiors. As light filters through these features, it casts intricate patterns on the walls and floors, creating a living, dynamic interior environment.


The living room, designed with an open layout, prioritizes the flow of natural light. The large windows frame views of the verdant Guinle Park, blurring the boundaries between the indoors and outdoors. This connection to nature is a defining characteristic of modernist design, reflecting Lúcio Costa’s philosophy of integrating architecture with the environment.


Revitalizing Modernist Iconography
A central theme of the restoration was the seamless integration of historical and contemporary elements. LINHA Arquitetura achieved this by carefully preserving original features like the stainless steel cabinets while introducing modern touches that enhance functionality and comfort. The furniture selection reveres the modernist style, with clean lines and minimalist forms that complement the apartment’s architectural language.


This blend of past and present reflects a deep respect for the building’s history. By revitalizing these elements, the project breathes new life into a mid-century modern icon, ensuring its relevance for future generations.



The restoration of the Guinle Park apartment in the Caledônia Building exemplifies the timeless appeal of modernist architecture. LINHA Arquitetura’s careful design approach preserves the essence of Lúcio Costa’s vision while adapting the space for contemporary living. The project serves as a model for modernist apartment restoration, demonstrating how historical architecture can be celebrated and revitalized without sacrificing modern functionality.

This harmonious blend of preservation and innovation ensures that the Guinle Park apartment remains a living tribute to Brazilian modernist heritage, inspiring a deeper appreciation for the architectural icons of the past.

Popular Articles
Popular articles from the community
Solar Steam: A Climate-Responsive Architecture That Redefines the Monument
A climate-responsive memorial architecture that transforms heat, decay, and time into a living system reflecting humanity’s ecological impact.
Inverted Architecture Installation by Studio Link-Arc: Exploring the Intersection of Architecture and Living Organisms
Inverted Architecture Installation by Studio Link-Arc blends mycelium, sustainability, inverted design, ecological cycles, and urban adaptive architecture in Shenzhen.
Fifth NRE Jazz Club – De Bever Architecten: Eindhoven’s Revitalized Cultural Hub
Historic gas factory transformed into Fifth NRE Jazz Club blending modern sustainability, jazz culture, dining, and heritage architecture seamlessly.
Atelier Macri Concept Store Interior Design by CASE-REAL
Atelier Macri store features a "ko" counter, walnut wood details, cork displays, blending retail, gallery, and seamless customer experiences.
Similar Reads
You might also enjoy these articles
The Ken Roberts Memorial Delineation Competition (Krob)
As the most senior architectural drawing competition currently in operation anywhere in the world, it draws hundreds of entries each year, awarding the very best submissions in a series of medium-based categories.
Waterfront Redevelopment and Urban Revitalization in Mumbai: Forging a New Dawn for Darukhana
A transformative waterfront redevelopment project reimagining Darukhana’s shipbreaking heritage into an inclusive urban future.
OUT-OF-MAP: A Call for Postcards on Feminist Narratives of Public Space
Rhizoma Design and Research Lab invites artists, designers, architects, researchers, and students to reflect on how feminist perspectives can reshape public space. Selected works will be exhibited in Barcelona, October 2026. Submissions open until 15 April 2026.
Documentation Work on Buddhist Wooden Temple
Architectural syncretism and cultural hybridity: A comparative study of the Buddhist temples in Chattogram Hill tracks
Explore Architecture Competitions
Discover active competitions in this discipline
The International Standard for Design Portfolios
The Global Benchmark for Architecture Dissertation Awards
The Global Benchmark for Graduation Excellence
Challenge to reimagine the Iron Throne
Comments (0)
Please login or sign up to add comments
No comments yet. Be the first to comment!