Nanjing University Suzhou Affiliated Primary School: A Benchmark in Resilient School Campus Design
A nature-integrated primary school in Suzhou redefines resilient school campus design with child-centric, adaptive, and sustainable learning environments.
Rethinking Educational Environments in China
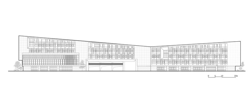
Completed in 2024 by Tus-Design, the Nanjing University Suzhou Affiliated Primary School is a forward-thinking model of resilient school campus design. Located in Suzhou’s Science and Technology City, the 61,175-square-meter campus is conceived not just as a place of learning, but as a living system that adapts, evolves, and harmonizes with both nature and urban life. This project is emblematic of how contemporary architecture can reimagine schools as resilient ecosystems that integrate environmental education, child-centric design, and flexible spatial strategies.





Contextual Intelligence and Natural Integration
Set between the Taihu Lake to the west and forested mountains to the east, the campus leverages its geographic location to create an immersive learning experience deeply embedded in nature. Winding rivers to the southeast enrich the biodiversity and aesthetic potential of the site. Rather than following conventional school typologies that prioritize efficiency over experience, the architects use this natural context to frame the design as a three-dimensional educational tool—open, inclusive, and ecologically sensitive.




Acoustic Strategy and Functional Zoning
The campus lies adjacent to a future rail line on the west, presenting noise and construction challenges. The architects resolved this by placing the sports field on the west to act as an acoustic buffer, the cultural and sports buildings in the center, and the teaching blocks on the quieter eastern edge. The result is a sound-attenuated environment that ensures decibel levels remain under 50, a crucial consideration for primary school learners.




Streamlined Circulation and Green Infrastructure
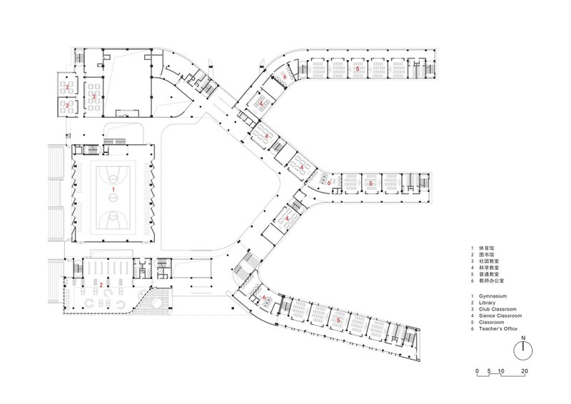
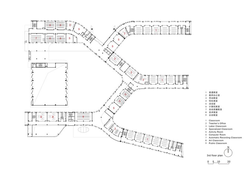
A winding, all-weather corridor system—with maximum 45-degree turns—unifies the entire campus. This fluid movement path links classrooms, professional studios, courtyards, and playgrounds. The design reduces building density to just 21% and opens up 27% of the site to multifunctional green space. This system transforms the school into a green infrastructure network that encourages open-air education and interactive learning.




Multi-Layered Learning Zones
Spatial layering is key to the design's success. The project adopts a three-level pedagogical structure: shared professional classrooms, atrium-like courtyards, and outdoor teaching terraces. These interconnected realms allow children to move from formal to informal learning seamlessly. The campus design supports a “five-minute reach” strategy where every key space, from classrooms to sports zones to libraries, is accessible quickly.


A Social and Environmental Core
Breaking from rigid zoning norms, the school’s cafeteria is placed at the literal and symbolic heart of the campus. Located beneath the elevated sports hall, the cafeteria opens to a sunken courtyard, facilitating natural light, ventilation, and student gathering. Above, the gym features a retractable glass roof to maximize daylight and reduce energy use. The library, located on the southern façade, employs perforated metal shading panels and full-height French windows, offering sweeping views of the riverside while protecting from harsh sunlight.



Civic and Cultural Interface
The campus is designed not as a closed institution but as a civic landmark. A concave ceremonial square at the northern entrance, framed by a six-meter-high elevated teaching block, welcomes both students and the community. With curved contours symbolizing an “unfolded scroll,” the architecture evokes the spirit of continuous learning. Permeable façades and visual transparency between inner courtyards and the cityscape increase visual and social connectivity.



Adaptive Architecture for Children
The school’s architectural narrative is told at a child’s scale. Recessed balconies, rounded stair corners, reading cabins, and secret nooks under staircases serve as “hidden classrooms.” These informal spaces allow spontaneous play, exploration, and peer learning. Outdoor rain gardens double as ecological teaching tools, letting students witness real-time water cycles and environmental stewardship.


Embracing the Resilient Campus Paradigm
Tus-Design proposes the idea of a "resilient school campus" that is spatially, functionally, and emotionally adaptive. Spatial resilience is achieved through porous layouts and flexible learning environments. Functional resilience emerges from hybrid programs like multipurpose halls and modular classrooms. Emotional resilience is embedded in soft textures, calming palettes, and the use of natural materials that enhance tactile comfort and psychological safety.


Architecture as a Living Textbook
Nanjing University Suzhou Affiliated Primary School transcends traditional educational architecture. Through its environmental integration, innovative circulation, multi-sensory learning zones, and child-focused design strategies, it functions as a three-dimensional textbook—one where architecture teaches resilience, sustainability, and imagination. This project sets a new benchmark in resilient school campus design, proving that the future of education lies not only in curriculum but in the very spaces where learning happens.


All photographs are works of Chao Zhang, ZY Architectural Photography, ZTZ IMAGE
Popular Articles
Popular articles from the community
Louis Malle Cinema: A Limestone Cultural Landmark Revitalizing Community Life in Prayssac
Limestone cinema extension with public forecourt, blending heritage and modern design to create flexible cultural spaces and strengthen community interaction.
Flamboyant House by Juliana Camargo + Prumo Projetos
Modern Brazilian house integrating existing tree, pool, and volumes with glass, wood, and transitional spaces blending interior, exterior, and landscape seamlessly.
Treehouse Apartment: A Warm Timber Interior Blending Craft, Play, and Contemporary Living
Warm timber apartment with integrated treehouse, combining natural materials, craftsmanship, and playful design to create a flexible, family-oriented living environment.
Solar Steam: A Climate-Responsive Architecture That Redefines the Monument
A climate-responsive memorial architecture that transforms heat, decay, and time into a living system reflecting humanity’s ecological impact.
Similar Reads
You might also enjoy these articles
Bamboo Housing Challenge 2026: Design Affordable, Sustainable Homes Using Bamboo
An international design competition by Bamboo U and IBUKU inviting architects and designers to reimagine affordable housing using bamboo — with the winning design built full-scale in Bali.
Computational Design & Education: Beegraphy Design Awards Introduces 7th Category (Featuring Jiyun's Innovative Approach)
Dive into Beegraphy’s 7th Design Awards category, where computational design meets education to create immersive, interactive learning tools, inspired by Jiyun’s work.
From Parametric Lighting to Urban Furniture: Join the 2nd Workshop in Beegraphy’s Computational Design Series
Dive into Cutting-Edge Design Techniques and Practical Applications with Industry Experts
Introducing Sphere by UNI: Pioneering a New Era in AEC Industry
Unlocking Global Potential with BIM and Agile Management
Explore Architecture Competitions
Discover active competitions in this discipline
The International Standard for Design Portfolios
The Global Benchmark for Architecture Dissertation Awards
The Global Benchmark for Graduation Excellence
Challenge to reimagine the Iron Throne
Comments (0)
Please login or sign up to add comments
No comments yet. Be the first to comment!