Nikola Karabatic Sports Complex: A Golden Icon of Modern Sports Complex Architecture in France
A luminous French sports facility blending bold design, urban connection, and flexibility in modern sports complex architecture.
A Golden Statement in the Landscape of Sports Design
Completed in 2024 by Atelier Aconcept, the Nikola Karabatic Sports Complex in Mennecy, France, is a landmark of modern sports complex architecture, designed to embody the excellence and ambition of its namesake. Commissioned by the Communauté de Communes du Val d'Essonne, the project creates a vibrant public space that blends athletic function with urban symbolism. With a bold metallic façade and a distinctive hovering volume, the complex redefines architectural expression in regional sports infrastructure.



Sculpting Function into Form
The design centers around two interlocking rectangular volumes that subtly shift to create dynamic spatial relationships. This composition is not merely sculptural—it is strategically functional. The upper volume, wrapped in shimmering gold-colored expanded metal, floats above the ground floor, casting shadows and catching light in constantly changing patterns. The overhang of the upper section provides essential solar shading during the hot summer months, while also reinforcing the architectural gesture of levitation.



The entrance hall—fully glazed on three sides—opens directly onto the forecourt, dissolving boundaries between inside and out. Its double-height space acts as a luminous core, bringing in natural light and visually orienting visitors upon arrival. This transparency signals openness and accessibility, key values of a community-oriented sports facility.


Spatial Dynamics for Diverse Sports Use
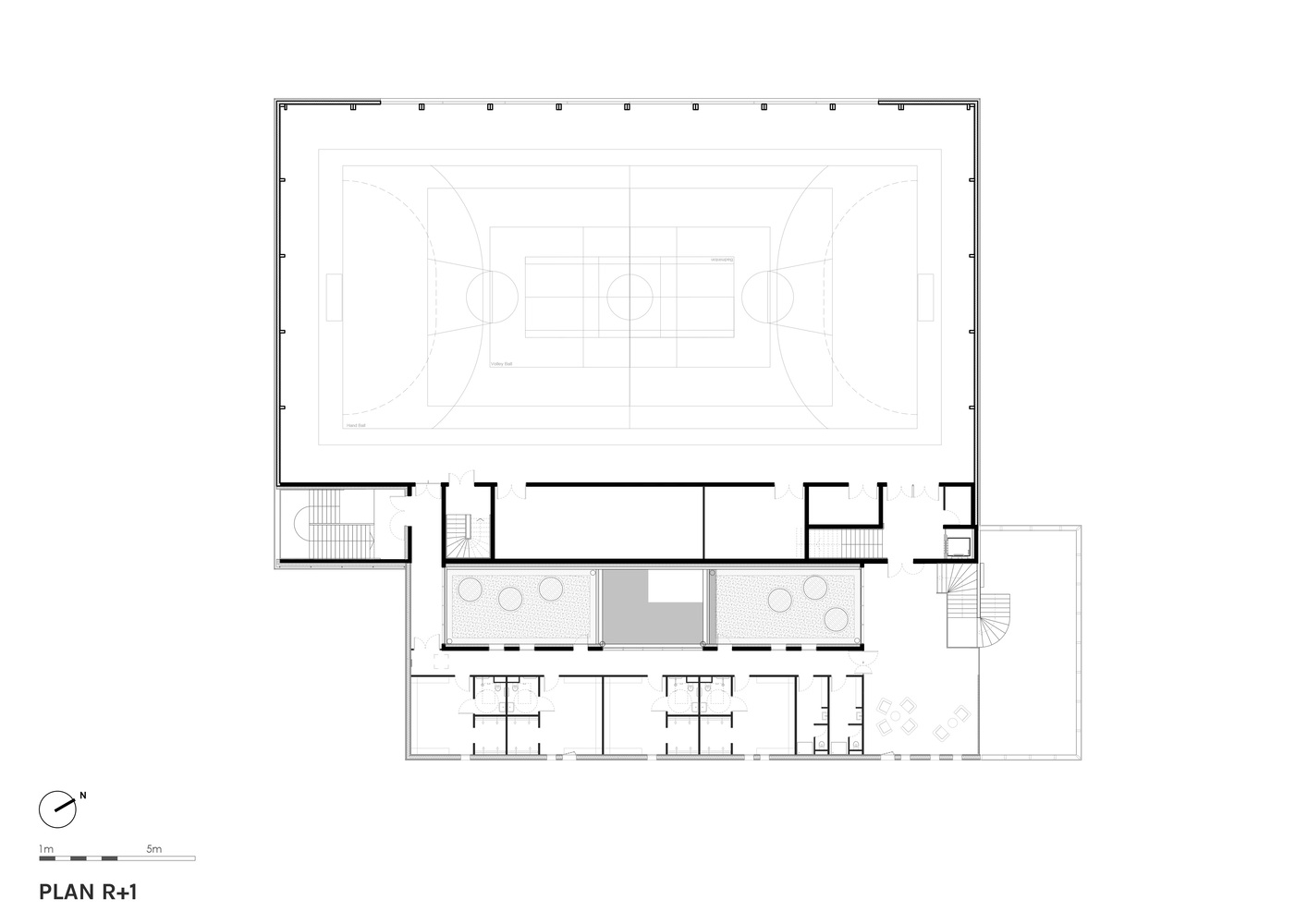
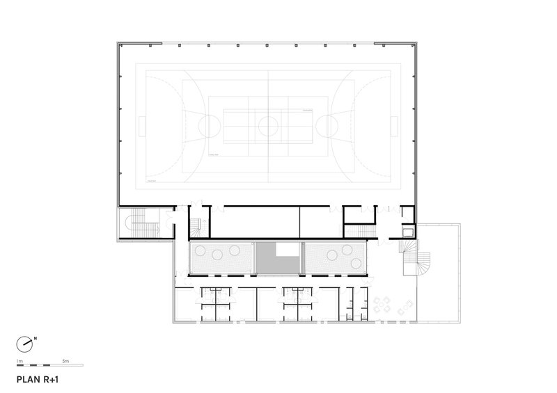
At the heart of the upper volume lies the multi-sports hall: a flexible rectangular arena designed for a wide range of indoor athletic activities. The space includes tiered seating that can accommodate between 100 and 150 spectators, adapting easily to different configurations. Continuous north-facing clerestory glazing and a southern glazed band flood the space with daylight while maintaining thermal comfort and glare control—an essential feature in modern sports complex architecture.



On the ground floor, two square auxiliary rooms provide additional functional areas for dance, exhibitions, or training sessions. Each space features at least one clear wall, allowing for mirrors, ballet bars, or multimedia projections. These rooms are directly accessible from the exterior, fostering a strong connection between the sports complex and its surrounding business district.



Human-Centric Circulation and Design
The building’s layout emphasizes user comfort and spatial fluidity. Circulation spaces are generous and intuitive, allowing athletes, visitors, and staff to navigate with ease. A central patio on the ground floor draws in natural light, creating moments of pause and visual relief. This space flows into a larger elongated courtyard, which further brightens the mezzanine and walkways while maintaining a quiet, contemplative atmosphere.


These carefully articulated spatial transitions enhance both the functional performance and the emotional quality of the user experience—a hallmark of high-performing sports architecture.


Integration of Landscape and Infrastructure
The project tackles the site's constraints, including limited parking, with innovation. Rather than a conventional lot, the architects designed a landscaped parking area that incorporates stormwater management solutions. This move not only addresses environmental sustainability but also harmonizes the sports complex with the natural terrain. The greenery acts as a soft buffer between the built form and its wider context, reinforcing the project's holistic design philosophy.


A Built Homage to Athletic Legacy
The shimmering gold façade is more than an aesthetic choice—it is a symbolic gesture honoring Nikola Karabatic's legendary handball career and the broader aspiration for sporting excellence. As light shifts across the metallic skin, the building seems to pulse with energy, transforming it into a visual metaphor for motion, strength, and aspiration. It is both a beacon for the community and a dynamic venue for everyday activity, events, and training.


With its bold expression, intelligent spatial planning, and seamless integration of architecture and landscape, the Nikola Karabatic Sports Complex stands as a benchmark for modern sports complex architecture in Europe. It celebrates not just the legacy of an athlete but the potential of architecture to inspire, serve, and elevate public life.

Popular Articles
Popular articles from the community
Treehouse Apartment: A Warm Timber Interior Blending Craft, Play, and Contemporary Living
Warm timber apartment with integrated treehouse, combining natural materials, craftsmanship, and playful design to create a flexible, family-oriented living environment.
A Contemporary Take on Iranian Residential Architecture
A modern interior design in Mashhad that reinterprets brick, light, and spatial flow to create a warm, contemporary residential architecture.
On the Brooks House by Monsoon Collective – A Contemporary Kerala Home Rooted in Tradition
Kerala home blending tradition and modernity with water-inspired design, brick architecture, courtyard planning, and sustainable rainwater harvesting strategies.
Inverted Architecture Installation by Studio Link-Arc: Exploring the Intersection of Architecture and Living Organisms
Inverted Architecture Installation by Studio Link-Arc blends mycelium, sustainability, inverted design, ecological cycles, and urban adaptive architecture in Shenzhen.
Similar Reads
You might also enjoy these articles
Bamboo Housing Challenge 2026: Design Affordable, Sustainable Homes Using Bamboo
An international design competition by Bamboo U and IBUKU inviting architects and designers to reimagine affordable housing using bamboo — with the winning design built full-scale in Bali.
Computational Design & Education: Beegraphy Design Awards Introduces 7th Category (Featuring Jiyun's Innovative Approach)
Dive into Beegraphy’s 7th Design Awards category, where computational design meets education to create immersive, interactive learning tools, inspired by Jiyun’s work.
From Parametric Lighting to Urban Furniture: Join the 2nd Workshop in Beegraphy’s Computational Design Series
Dive into Cutting-Edge Design Techniques and Practical Applications with Industry Experts
Introducing Sphere by UNI: Pioneering a New Era in AEC Industry
Unlocking Global Potential with BIM and Agile Management
Explore Architecture Competitions
Discover active competitions in this discipline
The International Standard for Design Portfolios
The Global Benchmark for Architecture Dissertation Awards
The Global Benchmark for Graduation Excellence
Challenge to reimagine the Iron Throne
Comments (0)
Please login or sign up to add comments
No comments yet. Be the first to comment!