Nori Architects' 'Toyota Gem': A Stunning Minimalistic Dwelling Redefining Space Efficiency
Can Nori Architects' Minimum House in Toyota Revolutionize Sustainable Living?

Toyota City, Aichi Prefecture - Nori Architects, renowned for their forward-thinking designs, have introduced a groundbreaking urban housing prototype designed to meet the needs of a young couple and their two children. Situated on a narrow site flanked by bustling streets and neighbouring buildings, this innovative dwelling redefines space efficiency and offers a refreshing approach to sustainable living.
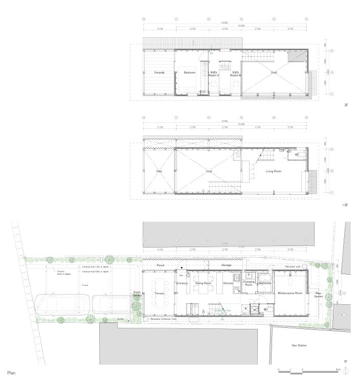
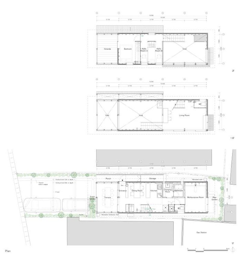
With a compact box-like structure measuring 2 ken (3.6m) in frontage by 7.5 ken (13.6m) in depth, the residence spans two floors, totalling 30 tsubo (100m2) in the area and standing approximately 6m tall. The architects have ingeniously divided the space into three levels, optimizing functionality while maintaining an aesthetic appeal.
The heart of the home lies in the expansive living room, adorned with a large window on the southeast wall that seamlessly connects the inhabitants with the urban void beyond. On the street-facing side, a covered terrace embellishes the dining room and kitchen area, featuring a mesh front and translucent walls. This design choice allows an uninterrupted flow of natural light and refreshing breezes while preserving a sense of privacy and distance from the city.
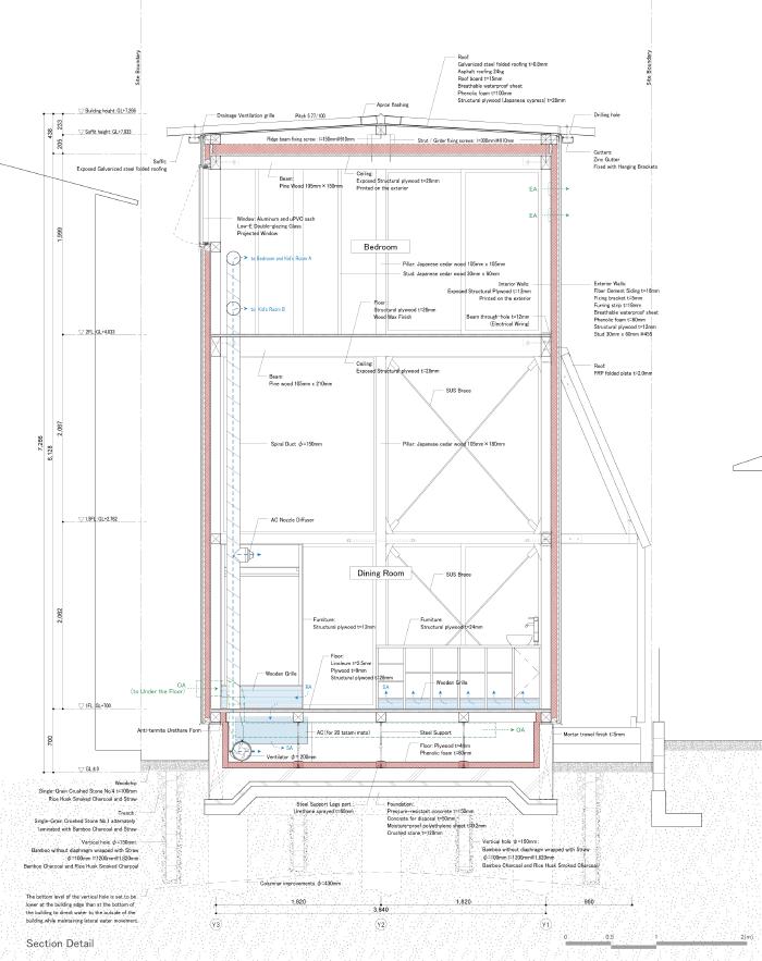
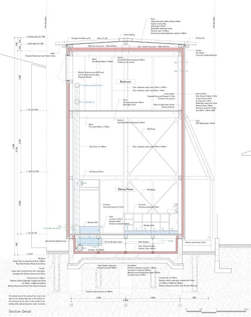
In their quest for year-round comfort and energy efficiency, Nori Architects prioritized the development of the exterior skin and mechanical equipment. Despite working within a limited budget, the team ingeniously combined reduced materials and affordable equipment to achieve outstanding performance. By exposing the wood structure, base, piping, and wiring, the architects created a warm and inviting atmosphere, enabling residents to comprehend the building's structure and carry out their own repairs and modifications.
Notably, this project represents a forward-thinking response to the global environmental crisis. Nori Architects aimed to minimize construction waste and reduce the overall use of materials. The result is a delightful dwelling that seamlessly integrates the indoors (family) with the outdoors (city), providing abundant natural light, invigorating airflow, and utilizing sustainable materials.
The architects' ingenuity extended beyond aesthetics and sustainability, as they also prioritized safety and cost-effectiveness. To achieve high earthquake resistance (Grade 3), load-bearing walls constructed with structural plywood and steel braces were strategically placed at both ends of each floor in a shorter direction. This design choice not only enhances stability but also ensures spatial flexibility and transparency.
Further optimizing the construction process, Nori Architects simplified the roof framing by utilizing 3.5" square timbers atop exterior insulation, creating a folded roof over baseboards and asphalt roofing. This clever strategy eliminated the need for rafters and reduced the number of components required, streamlining the building process.
With a strong focus on energy efficiency, the dwelling boasts high-performance window sashes, eaves, and exterior insulation. These features contribute to a commendable UA value of 0.49 (ZEH+ standard) and an ηAC value of 2.2 (exceeding the energy conservation standard). The architects also implemented a cost-effective ventilation system, utilizing fans and ducts to distribute warm or cold air from a single under-floor air conditioner to each zone, ensuring a comfortable thermal environment throughout the year.






























Architects: Nori Architects
Area: 88 m²
Year: 2022
Photographs: Jumpei Suzuki
Lead Architect: Norihisa Kawashima, Nori Architects
Lighting Advisor: CHIPS LLC.
Constructor: TOKORO
Design Team: Norihisa Kawashima, Takuro Kunitomo
Structure Engineer: Seiji Okawa
Textile Designer: Yuki Tsutsumi
Equipment Advisor: Kozo Takase
Country: Japan
Popular Articles
Popular articles from the community
The Ken Roberts Memorial Delineation Competition (Krob)
As the most senior architectural drawing competition currently in operation anywhere in the world, it draws hundreds of entries each year, awarding the very best submissions in a series of medium-based categories.
Inverted Architecture Installation by Studio Link-Arc: Exploring the Intersection of Architecture and Living Organisms
Inverted Architecture Installation by Studio Link-Arc blends mycelium, sustainability, inverted design, ecological cycles, and urban adaptive architecture in Shenzhen.
Atelier Macri Concept Store Interior Design by CASE-REAL
Atelier Macri store features a "ko" counter, walnut wood details, cork displays, blending retail, gallery, and seamless customer experiences.
An Miên Lumière Cafe by xưởng xép, Ho Chi Minh City, Vietnam
An industrial-inspired café where layered steel and warm light create a dynamic, immersive environment shaped by reflection, depth, and perception.
Similar Reads
You might also enjoy these articles
Zhuxi Wonderland: Reimagining Traditional Chinese Gardens by Doarchi Architects
Zhuxi Wonderland by Doarchi Architects reinterprets traditional Yangzhou gardens, integrating courtyards, pavilions, and tea houses in modern cultural design.
Doble Soga House: A Contemporary Brick Residence Rooted in Landscape in Quito, Ecuador
Brick house in Quito integrating nature, flexible living spaces, exposed materials, and rooftop terrace, creating warm contemporary architecture for modern family life.
Al Gharra Mosque in Medina Redefining Contemporary Islamic Architecture
Minimalist Medina mosque using concrete, light, and landscape to reinterpret Islamic worship spaces through symbolic spiritual transitions and contemporary architecture.
Viczonecode Villa by DDconcept – Tropical Family Living in Ho Chi Minh City
Tropical family villa in Ho Chi Minh City featuring courtyards, skylights, natural ventilation, elevated flooring, and seamless indoor–outdoor living surrounded by greenery.
Explore Architecture Competitions
Discover active competitions in this discipline
The International Standard for Design Portfolios
The Global Benchmark for Architecture Dissertation Awards
The Global Benchmark for Graduation Excellence
Challenge to reimagine the Iron Throne
Comments (0)
Please login or sign up to add comments
No comments yet. Be the first to comment!