Olympic Village Architecture Paris 2024: TRIPTYQUE and chaixetmorel Redefine Urban Sustainability
An in-depth look at the sustainable and reversible design of the Paris 2024 Olympic Village by TRIPTYQUE and chaixetmorel.
Transformative Urban Design in the Heart of Paris
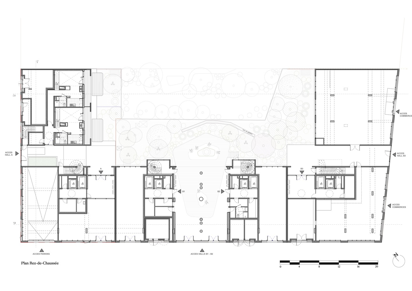
The Olympic Village Architecture Paris 2024, a collaborative effort by TRIPTYQUE and chaixetmorel, stands as a beacon of sustainable and adaptable design in Saint-Denis, northern Paris. Situated within the Universeine eco-district, this architectural feat was designed to host 450 athletes from the United States during the Summer Olympic and Paralympic Games. More than just a temporary accommodation, the project lays the groundwork for a socially and environmentally inclusive urban neighborhood that will thrive long after the last medal is awarded.



From Temporary Housing to Lasting Community
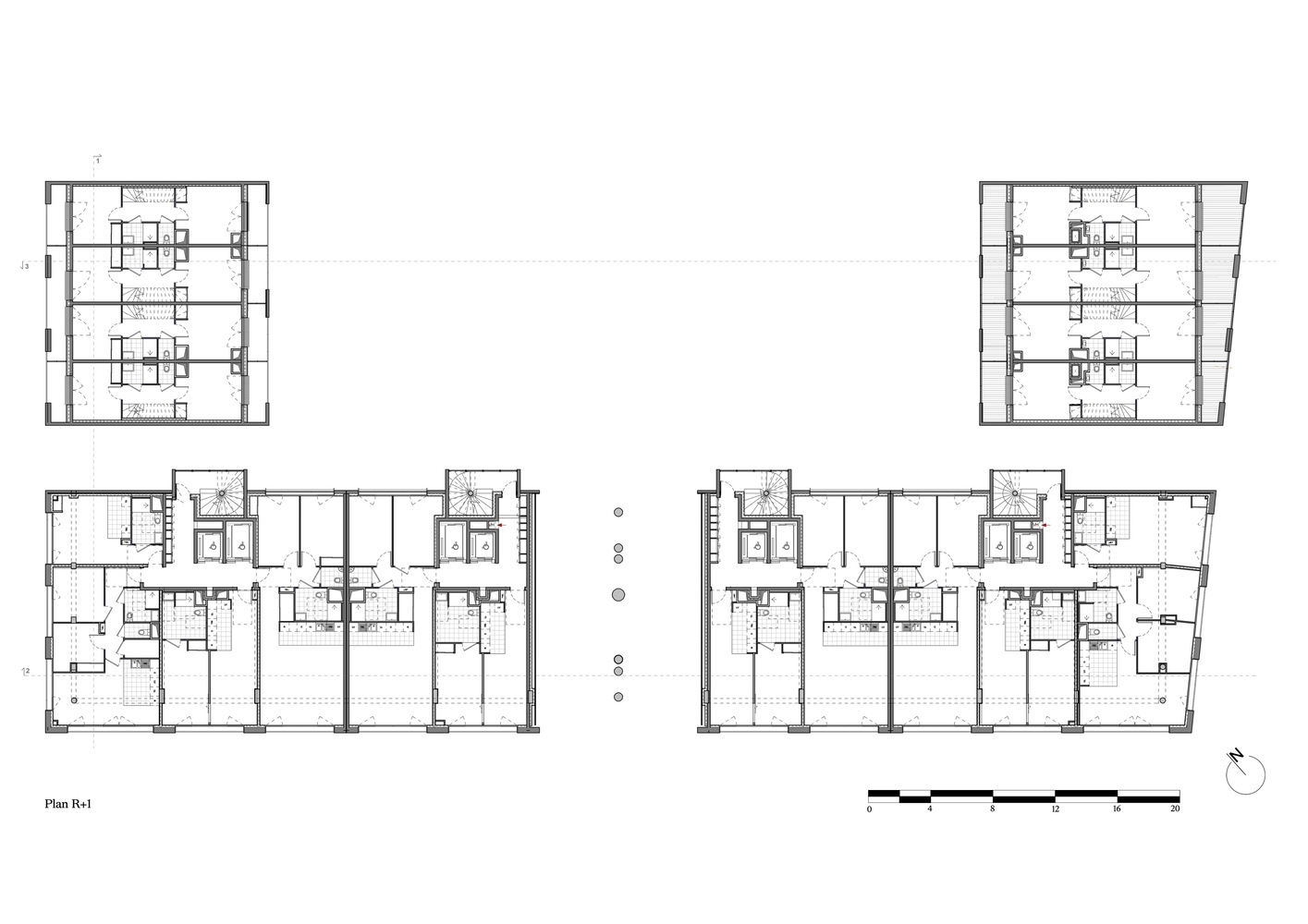
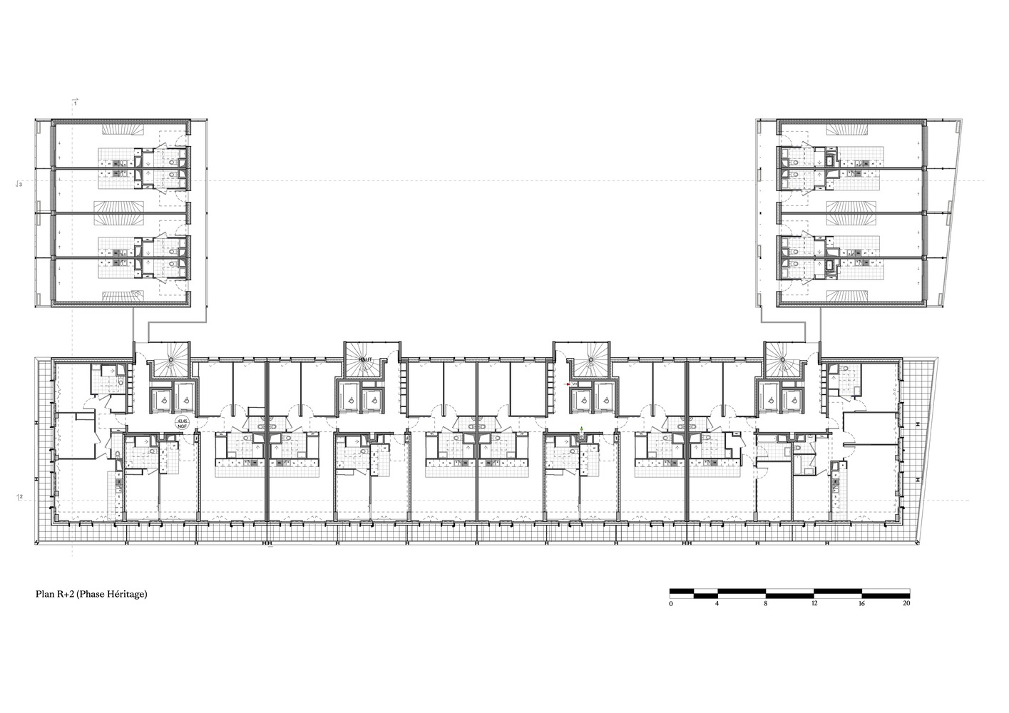
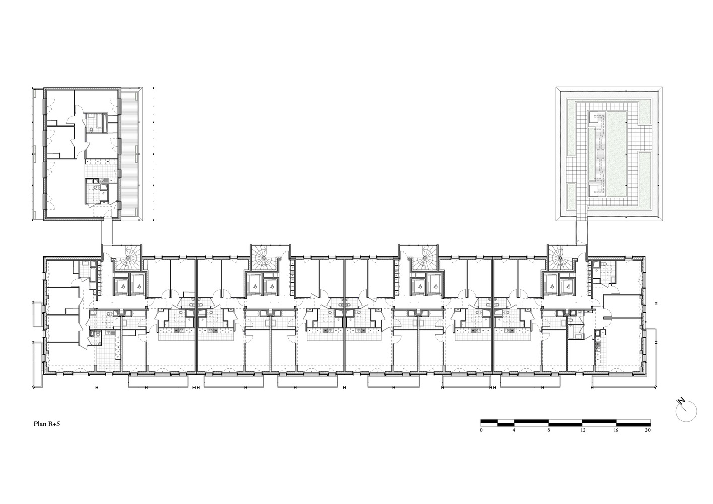
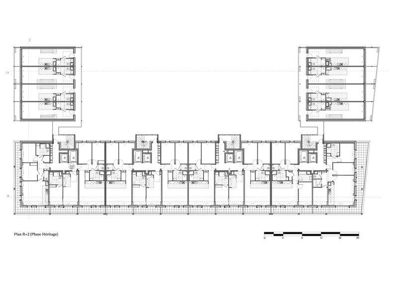
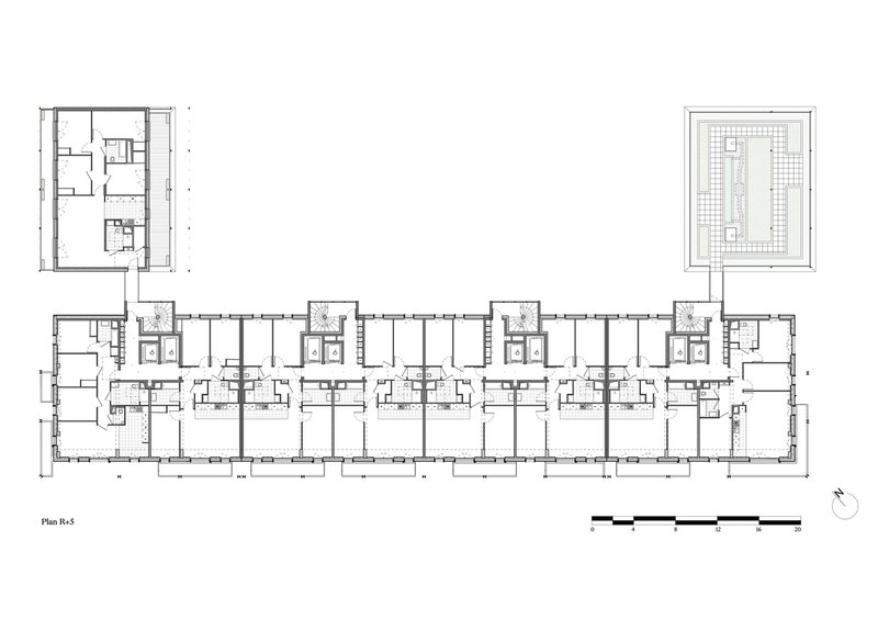
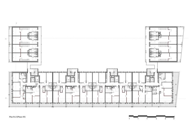
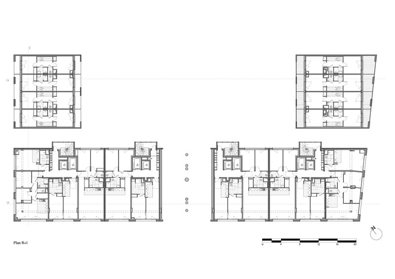
The 22,000-square-meter Universeine building embodies the concept of reversibility. Initially planned to serve as short-term residences during the Games, the complex will be converted into 125 permanent apartments by the end of 2024. These units will range from 30 to 105 square meters, transforming the structure into a hub of long-term social housing. The temporary 15-square-meter rooms designed for athletes are thoughtfully arranged to later serve the diverse spatial needs of future residents. This forward-thinking planning reflects a new architectural ethos focused on longevity, flexibility, and community impact.


Architectural Expression and Material Innovation
The exterior of the Universeine building, prominently featuring a structural exoskeleton, allows each unit to include a balcony ranging from 5 to 21.7 square meters. This not only extends living space outward but encourages a stronger connection to the surrounding urban fabric and natural environment. Triptyque’s design concept integrates low-carbon concrete and wood cladding to deliver both visual harmony and high-performance energy efficiency. The wooden panels insulate while promoting thermal stability, supporting both passive cooling and cross-ventilation strategies that significantly reduce reliance on artificial systems.


A Model of Eco-Conscious Living
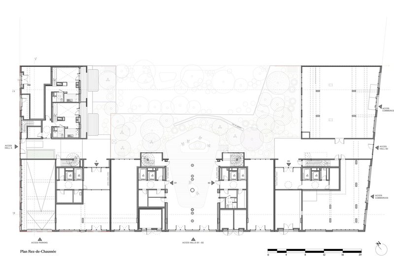
Pursuing France’s E3C1 environmental certification, the building is a model of low-carbon architecture. The layered façade controls heat gain and loss, while sustainable strategies such as a green roof, solar panels, and urban water cooling systems bolster the project’s energy-positive ambitions. Natural daylighting and strategic solar orientation are employed to minimize energy usage and maximize comfort. Furthermore, extensive facilities for bicycles and EV charging underscore the commitment to green mobility, making this development a cornerstone of eco-responsible city living.


Reinforcing Social Bonds Through Design
Community is central to the Olympic Village Architecture Paris 2024. Ground-floor commercial and office spaces foster a lively mixed-use environment that extends beyond the event itself. Shared green courtyards and communal areas cultivate a sense of belonging among future residents. Post-Olympics, the district will host around 6,000 inhabitants and create an equal number of jobs, all interwoven into a master plan that includes seven hectares of gardens and three hectares of parks—ensuring the area remains dynamic and connected.




Collaboration as a Catalyst for Innovation
The Universeine project highlights the power of collaboration in architecture. Under the guidance of Solideo, the agency responsible for the Olympic Village’s construction, TRIPTYQUE joined a global consortium of architects to create a cohesive vision for the district. Design decisions were made collectively, allowing for adaptability and ensuring that each building harmonizes with its surroundings. This approach sets a new standard for large-scale architectural projects, showing how shared values and creative exchange can reshape urban landscapes.


A Lasting Architectural Legacy
The legacy of the Olympic Village Architecture Paris 2024 lies in its holistic approach to urban regeneration. By addressing pressing environmental challenges, responding to evolving social needs, and placing architecture at the service of the community, TRIPTYQUE and chaixetmorel have delivered a project that transcends the temporary. This development not only celebrates athletic excellence but also acts as a blueprint for future cities that are inclusive, sustainable, and designed for life beyond the spectacle.

All Photographs are works of Salem Mostefaoui
Popular Articles
Popular articles from the community
An Miên Lumière Cafe by xưởng xép, Ho Chi Minh City, Vietnam
An industrial-inspired café where layered steel and warm light create a dynamic, immersive environment shaped by reflection, depth, and perception.
Louis Malle Cinema: A Limestone Cultural Landmark Revitalizing Community Life in Prayssac
Limestone cinema extension with public forecourt, blending heritage and modern design to create flexible cultural spaces and strengthen community interaction.
Inverted Architecture Installation by Studio Link-Arc: Exploring the Intersection of Architecture and Living Organisms
Inverted Architecture Installation by Studio Link-Arc blends mycelium, sustainability, inverted design, ecological cycles, and urban adaptive architecture in Shenzhen.
Atelier Macri Concept Store Interior Design by CASE-REAL
Atelier Macri store features a "ko" counter, walnut wood details, cork displays, blending retail, gallery, and seamless customer experiences.
Similar Reads
You might also enjoy these articles
Bamboo Housing Challenge 2026: Design Affordable, Sustainable Homes Using Bamboo
An international design competition by Bamboo U and IBUKU inviting architects and designers to reimagine affordable housing using bamboo — with the winning design built full-scale in Bali.
Computational Design & Education: Beegraphy Design Awards Introduces 7th Category (Featuring Jiyun's Innovative Approach)
Dive into Beegraphy’s 7th Design Awards category, where computational design meets education to create immersive, interactive learning tools, inspired by Jiyun’s work.
From Parametric Lighting to Urban Furniture: Join the 2nd Workshop in Beegraphy’s Computational Design Series
Dive into Cutting-Edge Design Techniques and Practical Applications with Industry Experts
Introducing Sphere by UNI: Pioneering a New Era in AEC Industry
Unlocking Global Potential with BIM and Agile Management
Explore Architecture Competitions
Discover active competitions in this discipline
The International Standard for Design Portfolios
The Global Benchmark for Architecture Dissertation Awards
The Global Benchmark for Graduation Excellence
Challenge to reimagine the Iron Throne
Comments (0)
Please login or sign up to add comments
No comments yet. Be the first to comment!