Onn Hair Salon Interior Design by Spicy Architects and Swarm Inc.
Onn Hair Salon by Spicy Architects and Swarm Inc. combines Japanese tradition with modern minimalism, creating a refined and tranquil interior.
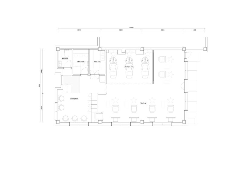
The Onn Hair Salon interior design, crafted by Spicy Architects and Swarm Inc., transforms a compact 72 m² unit in Shibuya’s creative hub of Daikanyama into a sophisticated, minimalist sanctuary. Completed in 2025, this renovation blends traditional Japanese design elements with modern aesthetics to create a salon that feels more like an art studio than a conventional hair space.


A Creative Approach to Spatial Design
The interior concept of Onn Hair Salon emphasizes the power of furniture and object placement as a means of personal expression. The space is designed as a blank yet carefully curated canvas that highlights the client’s unique collection of objects. Subtle textures of stucco-finished walls and ceilings pair with the understated linoleum flooring, creating a soft visual language that complements the client’s aesthetic without overwhelming it.


Integration of Japanese Architectural Elements
One of the standout features of the Onn Hair Salon interior design is its reinterpretation of traditional Japanese housing elements. The alcove, once a tokonoma display area, has been preserved and now functions as a focal point. Any decorative object placed here gains a quiet prominence, echoing the Japanese philosophy of appreciating simplicity and detail.

Natural Light and Visual Depth
The design leverages natural views and reflections to expand the spatial perception of the salon. The garden view, subtly reflected through the mirrors, creates layers of depth, making the space appear larger and more dynamic. This thoughtful interplay between interior and exterior elements reinforces a tranquil and immersive atmosphere.


Minimalism with Warmth
While minimalistic in approach, the salon is far from cold. Warmth is introduced through wooden accents, soft lighting, and carefully chosen furniture pieces that balance functionality with visual appeal. The waiting area feels calm and inviting, while the cutting stations have a refined yet playful character reminiscent of a photography studio.


A Unique Blend of Tradition and Modernity
By blending Japanese architectural traditions with contemporary interior concepts, Spicy Architects and Swarm Inc. have created a space that feels both timeless and forward-thinking. Every design choice reflects a sensitivity to texture, light, and composition, ensuring the salon stands out as a destination for both style and serenity.

The Onn Hair Salon interior design is a masterful example of how minimalism, traditional craftsmanship, and modern sensibilities can merge to form a functional yet visually inspiring space. It is not just a salon but an architectural statement that celebrates personal expression and harmony.

All the photographs are works of Yikin HYO
Popular Articles
Popular articles from the community
Alton Cliff House: A Harmonious Retreat by f2a Architecture in Lake Country, Canada
Alton Cliff House blends corten steel, prefabrication, and sustainable design, creating a luxurious, energy-efficient retreat perched on Canadian cliffs.
Fifth NRE Jazz Club – De Bever Architecten: Eindhoven’s Revitalized Cultural Hub
Historic gas factory transformed into Fifth NRE Jazz Club blending modern sustainability, jazz culture, dining, and heritage architecture seamlessly.
Free Architecture Competitions You Can Enter Right Now
No entry fees, real prizes. Here are the best free architecture competitions open for submissions in 2026.
Atelier Macri Concept Store Interior Design by CASE-REAL
Atelier Macri store features a "ko" counter, walnut wood details, cork displays, blending retail, gallery, and seamless customer experiences.
Similar Reads
You might also enjoy these articles
Bamboo Housing Challenge 2026: Design Affordable, Sustainable Homes Using Bamboo
An international design competition by Bamboo U and IBUKU inviting architects and designers to reimagine affordable housing using bamboo — with the winning design built full-scale in Bali.
Computational Design & Education: Beegraphy Design Awards Introduces 7th Category (Featuring Jiyun's Innovative Approach)
Dive into Beegraphy’s 7th Design Awards category, where computational design meets education to create immersive, interactive learning tools, inspired by Jiyun’s work.
From Parametric Lighting to Urban Furniture: Join the 2nd Workshop in Beegraphy’s Computational Design Series
Dive into Cutting-Edge Design Techniques and Practical Applications with Industry Experts
Explore Architecture Competitions
Discover active competitions in this discipline
The International Standard for Design Portfolios
The Global Benchmark for Architecture Dissertation Awards
The Global Benchmark for Graduation Excellence
Challenge to reimagine the Iron Throne
Comments (0)
Please login or sign up to add comments
No comments yet. Be the first to comment!