Open-Plan Office Design: Health & Beauty Office by Shang Interior Architects
Shang Interior Architects redefines open-plan office design with a fluid, collaborative workspace integrating natural light, flexibility, and innovative storage.
A New Vision for Workplace Design in Shanghai
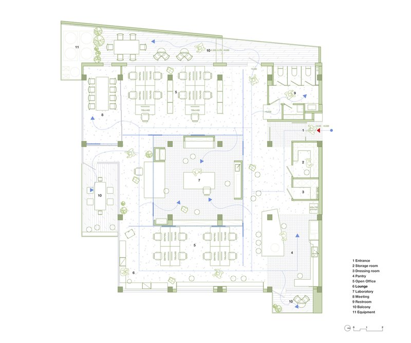
The Health & Beauty Office, designed by Shang Interior Architects, redefines open-plan office design by embracing fluidity, adaptability, and collaboration. Located in Shanghai, this 298-square-meter workspace rejects rigid office norms, transforming into an interactive and exploratory environment that fosters creativity and connectivity. With an emphasis on natural light, transparency, and seamless spatial integration, the office represents a shift towards innovative, people-centered design.



A Spatial Concept That Breaks Boundaries
Shang Interior Architects deconstructed traditional office layouts, introducing a dynamic, open-plan space that encourages interaction. The workspace is anchored by a central creative core, a multifunctional zone where research, collaboration, and ideation take place. Instead of enclosing meeting rooms and laboratories, the design prioritizes flexibility, merging diverse functions into a shared space. This innovative layout reflects the brand's operational philosophy, fostering teamwork and seamless knowledge exchange.



A Harmonious Blend of Nature and Interior Design
Natural light and ventilation play a crucial role in shaping the office’s atmosphere. The western façade was renovated to introduce large windows, connecting the interior with a terrace and integrating the surrounding greenery into the workspace. By opening up the space to nature, the design enhances well-being, boosts productivity, and creates a visually stimulating environment. The exposed ceiling further amplifies this openness, reducing any sense of confinement and allowing air and light to circulate freely.



Fluidity and Flexibility in Workspace Organization
Rejecting traditional office hierarchies, the layout removes physical and visual barriers between team members. The founder’s desk is integrated into the communal area, promoting direct engagement and eliminating isolation. Workstations are designed to be adaptable, supporting a variety of working styles, from focused individual tasks to collaborative brainstorming sessions. Employees can choose between bar-style communal tables, window-side niches, or flexible meeting rooms with sliding doors, ensuring a responsive and engaging work experience.



Innovative Storage and Materiality
The office employs custom-designed mobile storage solutions that enhance efficiency without disrupting spatial openness. Crafted specifically for the brand, the storage units accommodate experimental samples and essential materials while maintaining accessibility. The use of birchwood paneling with a mortise-and-tenon structure reflects an emphasis on craftsmanship, contributing to the overall aesthetic and functionality of the workspace.


An Open-Plan Office That Encourages Creativity
From the moment visitors step into the office, they are met with light-green embossed steel flooring, metallic ceilings, and an interplay of transparency and texture. The lowered entrance hall gradually opens into an expansive, multifunctional workspace where design elements blend seamlessly. This carefully curated transition enhances the sense of discovery and curiosity, reinforcing the concept of an unrestricted, adaptable environment.


Redefining Open-Plan Office Design for the Future
The Health & Beauty Office by Shang Interior Architects represents the next evolution of open-plan office design, where creativity, collaboration, and well-being coexist in harmony. By rejecting rigid structures and embracing fluidity, the design sets a new standard for contemporary workspaces. Through thoughtful integration of natural elements, flexible layouts, and cutting-edge materials, the office serves as a model for the future of workplace architecture, redefining how spaces can inspire innovation and productivity.


Popular Articles
Popular articles from the community
Split House: A Compact Urban Home Blending Privacy, Light, and Flexible Living in Japan
Compact Japanese home featuring DOMA space, flexible café potential, passive lighting, privacy zoning, and sustainable urban living design.
Atelier Macri Concept Store Interior Design by CASE-REAL
Atelier Macri store features a "ko" counter, walnut wood details, cork displays, blending retail, gallery, and seamless customer experiences.
Inverted Architecture Installation by Studio Link-Arc: Exploring the Intersection of Architecture and Living Organisms
Inverted Architecture Installation by Studio Link-Arc blends mycelium, sustainability, inverted design, ecological cycles, and urban adaptive architecture in Shenzhen.
Gads Hill Early Learning Center by JGMA: Adaptive Reuse Shaping Community-Focused Educational Architecture
Adaptive reuse transforms fragmented structure into vibrant early learning center with playful façade, natural light, and community-focused sustainable design.
Similar Reads
You might also enjoy these articles
The Ken Roberts Memorial Delineation Competition (Krob)
As the most senior architectural drawing competition currently in operation anywhere in the world, it draws hundreds of entries each year, awarding the very best submissions in a series of medium-based categories.
Waterfront Redevelopment and Urban Revitalization in Mumbai: Forging a New Dawn for Darukhana
A transformative waterfront redevelopment project reimagining Darukhana’s shipbreaking heritage into an inclusive urban future.
OUT-OF-MAP: A Call for Postcards on Feminist Narratives of Public Space
Rhizoma Design and Research Lab invites artists, designers, architects, researchers, and students to reflect on how feminist perspectives can reshape public space. Selected works will be exhibited in Barcelona, October 2026. Submissions open until 15 April 2026.
Documentation Work on Buddhist Wooden Temple
Architectural syncretism and cultural hybridity: A comparative study of the Buddhist temples in Chattogram Hill tracks
Explore Architecture Competitions
Discover active competitions in this discipline
The International Standard for Design Portfolios
The Global Benchmark for Architecture Dissertation Awards
The Global Benchmark for Graduation Excellence
Challenge to reimagine the Iron Throne
Comments (0)
Please login or sign up to add comments
No comments yet. Be the first to comment!