(PARENTESI.STUDIO) Harnesses the Power of Innovation to Create a NEPERO Revolution
Can NEPERO, Developed by (PARENTESI.STUDIO), Transform the Future of Technology?

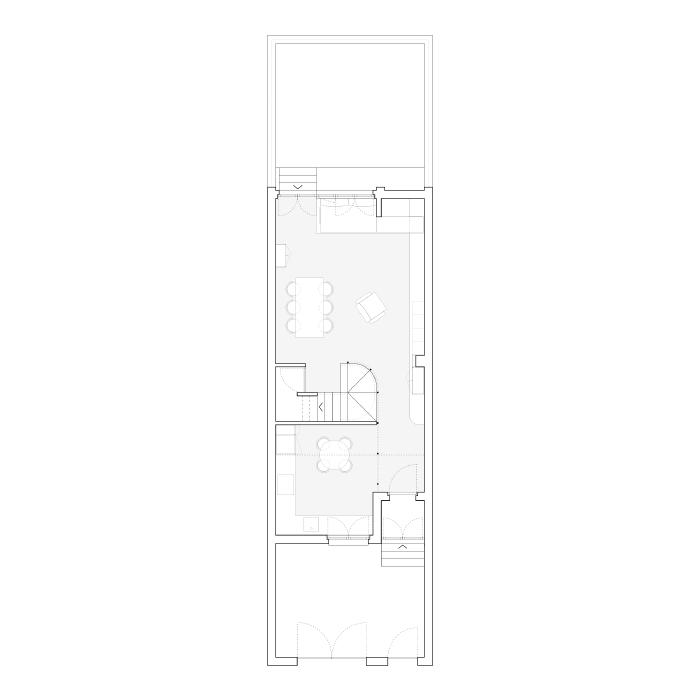
Housing Transformation: Preserving the Spirit of Inacasa Harar-Dessie District Residence with Ingenious Design"
Nestled within the historic Inacasa Harar-Dessie district, an architectural gem conceived by Luigi Figini, Gino Pollini, and Gio Ponti in the 1950s, an exceptional housing intervention has taken place. This remarkable residence, located in one of the insulae that harmonize with the neighbourhood's iconic "horizontal skyscrapers," has undergone a thoughtful renovation to honour its original design and essence.
Spanning two above-ground floors and a basement, the revitalization project aimed to maintain the house's true character by eliminating accumulated additions throughout the years, and meticulously preserving the original layout and proportions. A pivotal aspect of the transformation involved the rotation of the staircase's final section and the creation of a new spatial system using a striking metal structure, seamlessly connecting the ground floor and the first floor. Within this innovative framework, meticulously integrated dividing elements, a carefully crafted lighting system, and a bespoke staircase found their place.
Reflecting a commitment to natural materials, the flooring elegantly transitions between breccia stone on the ground floor, wood on the staircase, and grit on the first floor. The living room features a captivating interplay of design elements, with a ribbed white volume providing support for a Canaletto walnut volume and a sleek metal bookcase. This visually engaging arrangement draws the eye from the entrance towards a window framing a picturesque view of the rear garden, beneath which a custom sofa adds its charm.
The sleeping area showcases custom-designed doors adorned with fanlights, ensuring a generous infusion of natural light into the small hallway. Meticulously crafted furnishings and thoughtfully chosen new materials establish a harmonious dialogue with the house's original spirit, culminating in a spatial harmony that rekindles a profound sense of domesticity throughout the rooms.
This awe-inspiring housing transformation exemplifies a meticulous approach to preservation, blending seamlessly with contemporary design elements to create a truly captivating living space. The successful marriage of innovation and reverence for architectural heritage breathes new life into this cherished residence, setting a remarkable precedent for the preservation and revitalization of historic housing.






















Popular Articles
Popular articles from the community
Flamboyant House by Juliana Camargo + Prumo Projetos
Modern Brazilian house integrating existing tree, pool, and volumes with glass, wood, and transitional spaces blending interior, exterior, and landscape seamlessly.
Atelier Macri Concept Store Interior Design by CASE-REAL
Atelier Macri store features a "ko" counter, walnut wood details, cork displays, blending retail, gallery, and seamless customer experiences.
An Miên Lumière Cafe by xưởng xép, Ho Chi Minh City, Vietnam
An industrial-inspired café where layered steel and warm light create a dynamic, immersive environment shaped by reflection, depth, and perception.
Inverted Architecture Installation by Studio Link-Arc: Exploring the Intersection of Architecture and Living Organisms
Inverted Architecture Installation by Studio Link-Arc blends mycelium, sustainability, inverted design, ecological cycles, and urban adaptive architecture in Shenzhen.
Similar Reads
You might also enjoy these articles
Zhuxi Wonderland: Reimagining Traditional Chinese Gardens by Doarchi Architects
Zhuxi Wonderland by Doarchi Architects reinterprets traditional Yangzhou gardens, integrating courtyards, pavilions, and tea houses in modern cultural design.
Doble Soga House: A Contemporary Brick Residence Rooted in Landscape in Quito, Ecuador
Brick house in Quito integrating nature, flexible living spaces, exposed materials, and rooftop terrace, creating warm contemporary architecture for modern family life.
Al Gharra Mosque in Medina Redefining Contemporary Islamic Architecture
Minimalist Medina mosque using concrete, light, and landscape to reinterpret Islamic worship spaces through symbolic spiritual transitions and contemporary architecture.
Viczonecode Villa by DDconcept – Tropical Family Living in Ho Chi Minh City
Tropical family villa in Ho Chi Minh City featuring courtyards, skylights, natural ventilation, elevated flooring, and seamless indoor–outdoor living surrounded by greenery.
Explore Architecture Competitions
Discover active competitions in this discipline
The International Standard for Design Portfolios
The Global Benchmark for Architecture Dissertation Awards
The Global Benchmark for Graduation Excellence
Challenge to reimagine the Iron Throne
Comments (0)
Please login or sign up to add comments
No comments yet. Be the first to comment!