Pinheiro Farm House: A Restored Rural Home Balancing Memory, Material, and Contemporary Living
Restored farmhouse preserving original form, integrating natural materials, open spaces, and landscape to create warm, contemporary living rooted in memory and place.
Nestled within the wooded hills of São José do Rio Pardo in Brazil, Pinheiro Farm by Equipe Lamas is a sensitive restoration that bridges past and present. Originally built in the 1980s as a farmhouse headquarters, the residence has been carefully reimagined to accommodate contemporary living while preserving its architectural identity and deep connection to the surrounding landscape.

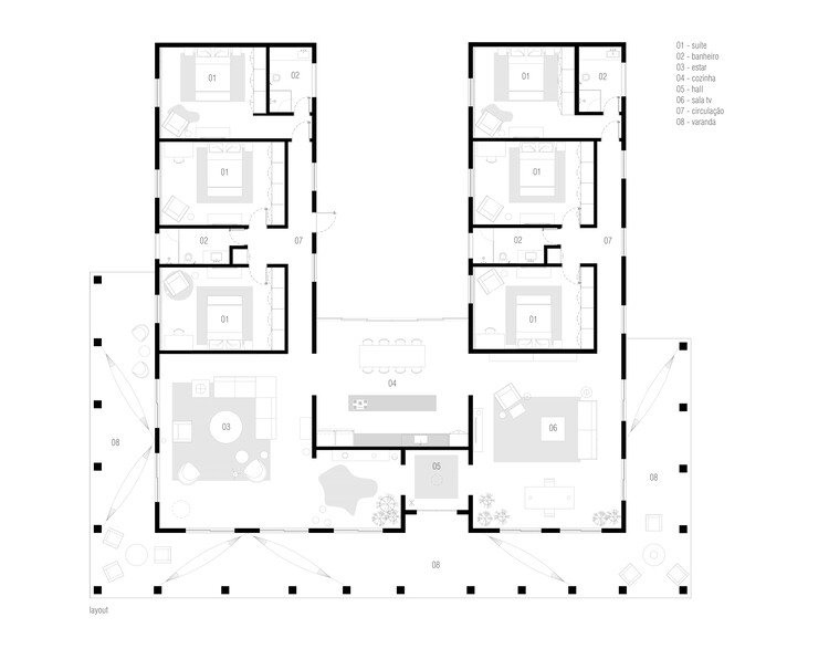
Rather than transforming the house into something entirely new, the project focuses on revealing and strengthening its original essence. Key elements such as the clay-tiled roof, generous eaves, and the characteristic U-shaped plan are preserved, maintaining the building’s familiar silhouette within the rural setting. This respect for the existing structure ensures continuity with both memory and place.


The intervention is most evident in the reorganization of interior spaces. The layout has been refined to create a more fluid and interconnected living environment. At the center of the house, the kitchen becomes the social heart, positioned between the dining area and leisure spaces such as the TV and games room. This centrality reinforces the role of shared experiences in everyday life.

A defining feature of the renovation is the seamless relationship between interior and exterior. Large sliding doors made of glass and wood open the central spaces directly onto the patio, dissolving physical boundaries and allowing the garden to become an extension of the living areas. This permeability enhances natural ventilation, light, and a continuous visual connection with the landscape.


Material choices reinforce this dialogue with place. Hydraulic tiles in earthy tones echo the color of the local soil, unifying the interior while extending visually toward the exterior. The replacement of slate flooring with peroba wood introduces warmth and tactility across both social and private areas. In bathrooms, the use of national white marble combined with solid pine reflects a restrained elegance rooted in natural materials.


While the overall structure remains intact, subtle adjustments improve comfort and functionality. Enlarged window openings retain their original green frames, an important vernacular detail, while allowing greater light penetration and airflow. These modifications enhance the environmental performance of the house without compromising its identity.


The interior atmosphere is defined by a careful balance between neutrality and expression. White walls provide a calm backdrop for a curated mix of furniture, including modernist pieces, family heirlooms, and contemporary designs. This layered approach creates a living environment that feels both personal and timeless, where color and texture emerge through objects rather than architecture alone.



Landscape design plays a crucial role in extending the architectural experience. The surrounding gardens, enriched with native plant species, create a dynamic ecosystem that evolves throughout the year. This living landscape attracts birds and wildlife, reinforcing the sense of immersion in nature and expanding the perceived boundaries of the home.




Ultimately, Pinheiro Farm is an exercise in architectural continuity. It demonstrates how restoration can go beyond preservation, becoming a process of reinterpretation and renewal. By combining memory, material authenticity, and contemporary spatial needs, the project creates a home that is both rooted in its past and fully adapted to present-day life: an environment where architecture, landscape, and time coexist in quiet harmony.




All the Photographs are works of Joana França
Popular Articles
Popular articles from the community
The Ken Roberts Memorial Delineation Competition (Krob)
As the most senior architectural drawing competition currently in operation anywhere in the world, it draws hundreds of entries each year, awarding the very best submissions in a series of medium-based categories.
Split House: A Compact Urban Home Blending Privacy, Light, and Flexible Living in Japan
Compact Japanese home featuring DOMA space, flexible café potential, passive lighting, privacy zoning, and sustainable urban living design.
Fifth NRE Jazz Club – De Bever Architecten: Eindhoven’s Revitalized Cultural Hub
Historic gas factory transformed into Fifth NRE Jazz Club blending modern sustainability, jazz culture, dining, and heritage architecture seamlessly.
Similar Reads
You might also enjoy these articles
Free Architecture Competitions You Can Enter Right Now
No entry fees, real prizes. Here are the best free architecture competitions open for submissions in 2026.
Top 15 Architecture Competitions to Enter in 2026
From student-friendly idea competitions to prestigious international awards, here are the best architecture competitions open for entries in 2026. Updated regularly.
DIY & Engineering in Computational Design : Enter the BeeGraphy Design Awards
Showcase Your Creativity with Computational Design and Open Source Projects

Innovative Design Solutions: Award-Winning Projects from Recent Architecture Competitions
Exploring award-winning architectural projects shaping the future of design, sustainability, and community.
Explore Architecture Competitions
Discover active competitions in this discipline
The International Standard for Design Portfolios
The Global Benchmark for Architecture Dissertation Awards
The Global Benchmark for Graduation Excellence
Challenge to design mud housing for contemporary communities
Comments (0)
Please login or sign up to add comments
No comments yet. Be the first to comment!