Preserving History: Architectural Marvel of the Archives Départementales de l'Isère
How Does the Archives Départementales de l'Isère Preserve and Showcase History?

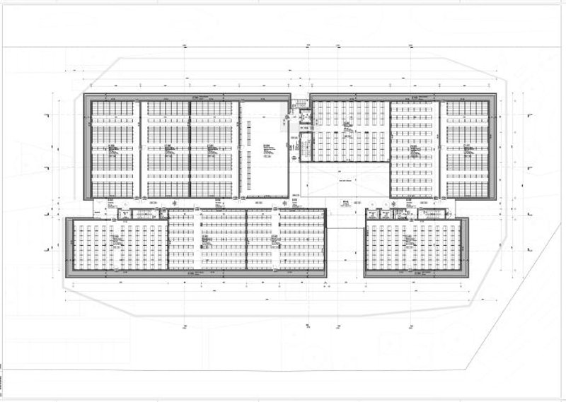
The project of the Isère Departmental Archives (ADI) consists of three components: a base, plant strata, and a storage volume. These volumes represent the raw and mineral expression of the Isère territory. The building is traversed by an internal street with two entrances. The volumetry of the Archives reflects the functional logic of the program. Four blocks of archive stores are connected by vertical glazed spaces that provide natural light, without direct sunlight, to the circulation areas used by archivists throughout the day. These imposing masses respond to the density of the program they contain and the loads they support.
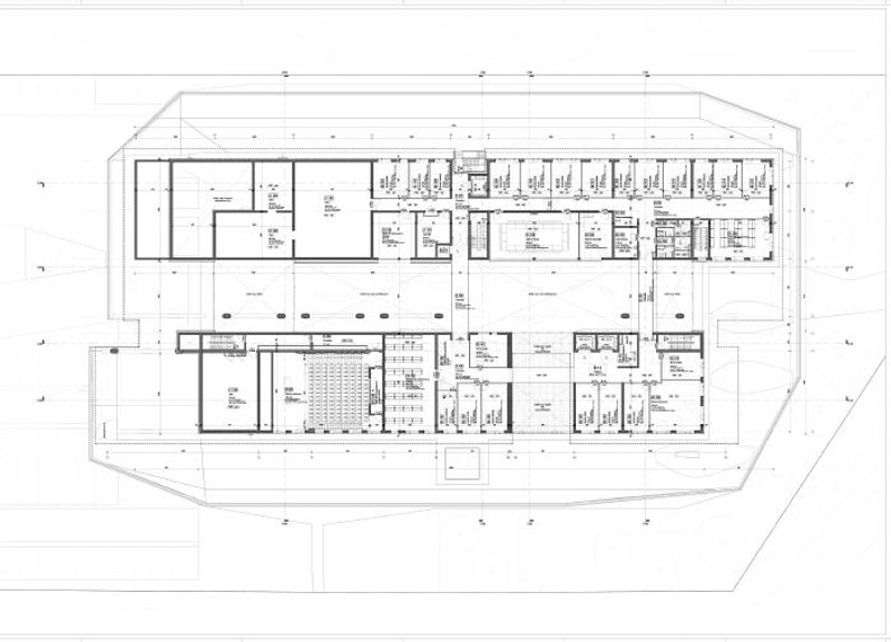
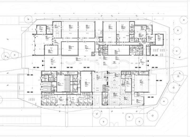
The base of the building receives the conservation activities, the reception of the public, as well as the administration specific to the site. The plant stratum creates a visual and functional break, taking up the spirit of the nearby University Campus. The skin and the concrete structure of the project make the link between the geology of the limestone massifs which surround the Grenoble Plain and the industrial history of a territory which initiated the technique of moulded concrete and, today, continues research and innovation. The construction system sets up a building that is highly insulated, inert and stable in the face of climatic conditions of temperature and humidity, a strong constraint of the program.




























Popular Articles
Popular articles from the community
The Ken Roberts Memorial Delineation Competition (Krob)
As the most senior architectural drawing competition currently in operation anywhere in the world, it draws hundreds of entries each year, awarding the very best submissions in a series of medium-based categories.
Treehouse Apartment: A Warm Timber Interior Blending Craft, Play, and Contemporary Living
Warm timber apartment with integrated treehouse, combining natural materials, craftsmanship, and playful design to create a flexible, family-oriented living environment.
Atelier Macri Concept Store Interior Design by CASE-REAL
Atelier Macri store features a "ko" counter, walnut wood details, cork displays, blending retail, gallery, and seamless customer experiences.
Gads Hill Early Learning Center by JGMA: Adaptive Reuse Shaping Community-Focused Educational Architecture
Adaptive reuse transforms fragmented structure into vibrant early learning center with playful façade, natural light, and community-focused sustainable design.
Similar Reads
You might also enjoy these articles
SOM LAND Hotel by RooMoo: A Sustainable Retreat Rooted in Nature and Local Craft
Sustainable boutique hotel in Shanghai blending adaptive reuse, natural materials, vernacular craftsmanship, and slow living within a serene countryside landscape.
Zhuxi Wonderland: Reimagining Traditional Chinese Gardens by Doarchi Architects
Zhuxi Wonderland by Doarchi Architects reinterprets traditional Yangzhou gardens, integrating courtyards, pavilions, and tea houses in modern cultural design.
Doble Soga House: A Contemporary Brick Residence Rooted in Landscape in Quito, Ecuador
Brick house in Quito integrating nature, flexible living spaces, exposed materials, and rooftop terrace, creating warm contemporary architecture for modern family life.
Al Gharra Mosque in Medina Redefining Contemporary Islamic Architecture
Minimalist Medina mosque using concrete, light, and landscape to reinterpret Islamic worship spaces through symbolic spiritual transitions and contemporary architecture.
Explore Architecture Competitions
Discover active competitions in this discipline
The International Standard for Design Portfolios
The Global Benchmark for Architecture Dissertation Awards
The Global Benchmark for Graduation Excellence
Challenge to reimagine the Iron Throne
Comments (0)
Please login or sign up to add comments
No comments yet. Be the first to comment!