Reimagining Heritage: A Modern Take on Historic Elderly Care Center Design in Belgium
Explore the Gaudium Elderly Care Center by plusoffice architects: a perfect blend of historic preservation and modern elderly care in Belgium.
In the serene village of Sint-Ulriks-Kapelle, nestled in the picturesque Pajottenland, Belgium, the historic domain of "De Verlosser" has been transformed into the Gaudium Elderly Care Center. This project, masterminded by plusoffice architects, is a prime example of how historic elderly care center design in Belgium is evolving to meet contemporary needs while preserving cultural heritage.

The Master Plan: Blending Past with Present
Revitalizing a Historic Site
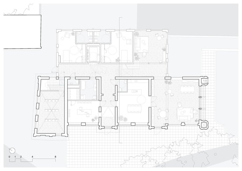
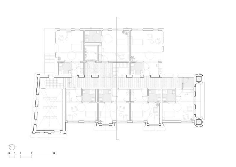
plusoffice architects embarked on a comprehensive master plan aimed at revitalizing the former castle domain into a state-of-the-art residential care center. The plan includes the preservation of the manor house, carriage houses, farm, and chaplain's house, strengthening the connection between the past and the present, and ensuring high-quality care for up to 150 elderly residents.


The Transformation of Gaudium
The centerpiece of this initiative is the renovation of "Gaudium", originally a coach house turned novices' residence. The project highlights the firm's commitment to nearly energy-neutral technology and sustainable renovation practices, ensuring that each of the nine residents enjoys a modern, fully equipped care room, within a building steeped in history.


Architectural Innovation: A Symbiotic Relationship
Restoring Historical Facades
The restoration of Gaudium's historic facades has been approached with reverence and meticulous attention to detail. plusoffice architects have carefully preserved the building's architectural essence while introducing necessary modernizations, striking a balance between tradition and innovation in elderly care center design.


Integrating New with Old
The new addition to the Gaudium Elderly Care Center, described as a "twin-sister" to the original structure, exemplifies seamless integration between old and new. The replication of materials and the reinterpretation of the roof shape demonstrate a respectful nod to the historical context, while contemporary window openings and detailed balustrades bridge the gap to modern design sensibilities.


Towards a Sustainable Future in Elderly Care
Nearly Energy-Neutral Technology
Adopting a nearly energy-neutral approach, plusoffice architects set a new standard for historic elderly care center design in Belgium. The project's emphasis on sustainability not only respects the building's historical significance but also addresses the pressing global need for environmentally responsible architecture.


Engaging with Nature and Community
The direct connection between the residential care community and the surrounding park and vegetable garden enriches the lives of the residents. This thoughtful integration emphasizes the importance of outdoor spaces in elderly care, promoting well-being and active engagement with nature.


A New Chapter in Elderly Care
The Gaudium Elderly Care Center by plusoffice architects marks a significant milestone in the field of historic elderly care center design in Belgium. By marrying heritage with modernity, the project sets a precedent for future developments, ensuring that the elderly can enjoy a high quality of life in settings that respect and celebrate the past.




All photographs are work of Dennis De Smet
Popular Articles
Popular articles from the community
Atelier Macri Concept Store Interior Design by CASE-REAL
Atelier Macri store features a "ko" counter, walnut wood details, cork displays, blending retail, gallery, and seamless customer experiences.
Solar Steam: A Climate-Responsive Architecture That Redefines the Monument
A climate-responsive memorial architecture that transforms heat, decay, and time into a living system reflecting humanity’s ecological impact.
Louis Malle Cinema: A Limestone Cultural Landmark Revitalizing Community Life in Prayssac
Limestone cinema extension with public forecourt, blending heritage and modern design to create flexible cultural spaces and strengthen community interaction.
On the Brooks House by Monsoon Collective – A Contemporary Kerala Home Rooted in Tradition
Kerala home blending tradition and modernity with water-inspired design, brick architecture, courtyard planning, and sustainable rainwater harvesting strategies.
Similar Reads
You might also enjoy these articles
The Ken Roberts Memorial Delineation Competition (Krob)
As the most senior architectural drawing competition currently in operation anywhere in the world, it draws hundreds of entries each year, awarding the very best submissions in a series of medium-based categories.
Waterfront Redevelopment and Urban Revitalization in Mumbai: Forging a New Dawn for Darukhana
A transformative waterfront redevelopment project reimagining Darukhana’s shipbreaking heritage into an inclusive urban future.
OUT-OF-MAP: A Call for Postcards on Feminist Narratives of Public Space
Rhizoma Design and Research Lab invites artists, designers, architects, researchers, and students to reflect on how feminist perspectives can reshape public space. Selected works will be exhibited in Barcelona, October 2026. Submissions open until 15 April 2026.
Documentation Work on Buddhist Wooden Temple
Architectural syncretism and cultural hybridity: A comparative study of the Buddhist temples in Chattogram Hill tracks
Explore Architecture Competitions
Discover active competitions in this discipline
The International Standard for Design Portfolios
The Global Benchmark for Architecture Dissertation Awards
The Global Benchmark for Graduation Excellence
Challenge to reimagine the Iron Throne
Comments (0)
Please login or sign up to add comments
No comments yet. Be the first to comment!