REXKL Adaptive Reuse Architecture: Transforming a Historic Cinema into a Cultural Hub
REXKL exemplifies adaptive reuse architecture, transforming a historic cinema into a vibrant cultural hub while preserving heritage and fostering community engagement.
REXKL stands as a remarkable example of adaptive reuse architecture, breathing new life into a historic cinema in Kuala Lumpur. Located in Petaling Street, this 60,000-square-foot venue, originally a popular local cinema, had fallen into neglect due to disuse and fire damage. Through an ambitious restoration led by Mentahmatter Design Sdn Bhd, the building has been reimagined into a dynamic cultural and community hub, redefining the urban landscape while preserving its historical significance.





Reviving Heritage Through Adaptive Reuse
The REXKL cinema, once an iconic gathering place, had become an abandoned shell, used illegally as a makeshift hostel. Despite its dilapidated state, the structure held deep cultural value for the local community. Recognizing the need for spaces that encourage social interaction and creativity, the redevelopment aimed to restore the building while introducing modern functions that align with contemporary urban needs.



By retaining the cinema’s architectural essence, including its original façade and signature tiled surfaces, the transformation celebrates its past while making way for new possibilities. The cinema hall, staircases, and spatial configuration were preserved, ensuring the site’s memory remains embedded in its evolving identity.



Community-Centric Design for a Thriving Urban Hub
The adaptive reuse of REXKL was driven by the need for a community-centered space that fosters local engagement. The new design introduces flexible and permanent spaces that accommodate various activities, from performances and exhibitions to retail and culinary experiences. The once-neglected alleyways surrounding the building have been revitalized, creating pedestrian-friendly zones that enhance connectivity and contribute to a more vibrant neighborhood.




At the heart of REXKL’s revival is its ability to serve as an incubator for innovation. The ground floor features a bustling food hall and retail spaces, offering a platform for local entrepreneurs to test and refine their business concepts. The diverse mix of tenants ensures an ever-evolving landscape, where traditional trades merge with contemporary expressions, creating a space that is both functional and inspiring.




Reinventing the Cinema Experience with Art and Literature
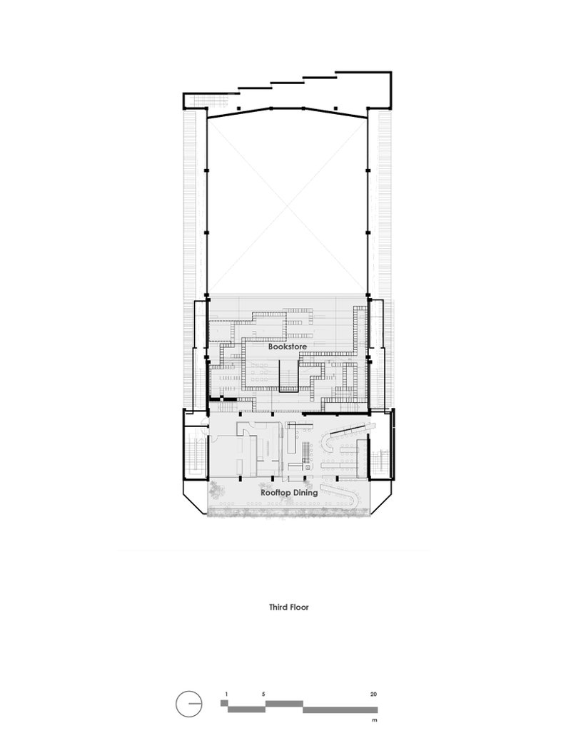
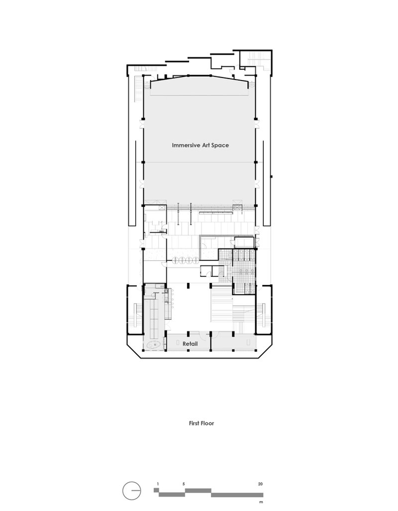
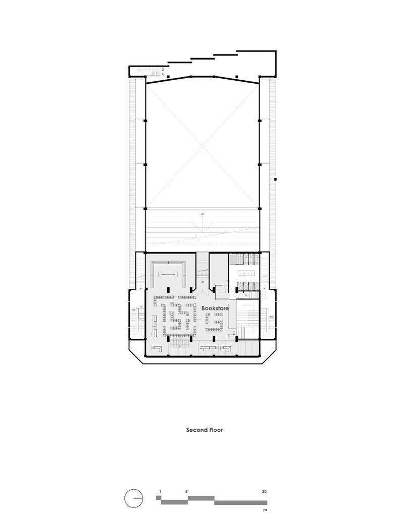
A defining aspect of the transformation is the creative reinterpretation of the cinema hall. The vast 8,000-square-foot space has been converted into RXP, an immersive gallery that redefines cinematic experiences through interactive exhibitions and digital art. The VIP tiered seating area has been repurposed into BookXcess, a sprawling bookstore that encourages exploration and discovery. Designed with a modular shelving system, the bookstore’s labyrinth-like arrangement echoes the experience of navigating Kuala Lumpur’s hidden alleyways, enhancing the spirit of adventure within the space.





A Sustainable Approach to Urban Regeneration
Beyond its architectural transformation, REXKL is a model of sustainability in urban design. The project embraces adaptive reuse as a means of reducing construction waste and preserving embodied energy. Instead of demolishing the existing structure, the architects strategically integrated new materials and design interventions to complement the original framework. This approach not only minimizes environmental impact but also reinforces the building’s historical narrative.




Through thoughtful design and community-driven programming, REXKL has successfully positioned itself as a key cultural landmark in Kuala Lumpur. It serves as a testament to the power of adaptive reuse architecture, demonstrating how forgotten spaces can be revived to foster creativity, economic growth, and social interaction. The transformation of REXKL is not just a renovation; it is a reawakening of history, culture, and urban potential.












All Photographs are works of David Yeow Photography
Popular Articles
Popular articles from the community
Sam Crawford Architects Anchors a Sports Pavilion in 10,000 Years of Indigenous History
A V-shaped brick and steel pavilion in southwest Sydney translates ancient clay ovens and gathering traditions into civic architecture.
Atelier LAI Scatters a Timber Resort Across a Terraced Anhui Valley
Nanshan Junning Resort uses wood joinery and topographic sensitivity to settle 6,700 square meters into a ten-meter slope near Hefei.
MIDW Casts a Pavilion Roof from the Earth Itself at the 2025 Osaka Expo
On a fragile reclaimed island, excavated soil becomes formwork for a concrete canopy that will eventually disappear into wisteria.
Prokop Hartl Turns a 1930s Prague Corner Apartment into a Lesson in Structural Honesty
A 115 m² renovation on the Vltava River celebrates exposed concrete, restored parquet, and a mirrored column as its centerpiece.
Similar Reads
You might also enjoy these articles
Bamboo Housing Challenge 2026: Design Affordable, Sustainable Homes Using Bamboo
An international design competition by Bamboo U and IBUKU inviting architects and designers to reimagine affordable housing using bamboo — with the winning design built full-scale in Bali.
Computational Design & Education: Beegraphy Design Awards Introduces 7th Category (Featuring Jiyun's Innovative Approach)
Dive into Beegraphy’s 7th Design Awards category, where computational design meets education to create immersive, interactive learning tools, inspired by Jiyun’s work.
From Parametric Lighting to Urban Furniture: Join the 2nd Workshop in Beegraphy’s Computational Design Series
Dive into Cutting-Edge Design Techniques and Practical Applications with Industry Experts
Introducing Sphere by UNI: Pioneering a New Era in AEC Industry
Unlocking Global Potential with BIM and Agile Management
Explore Architecture Competitions
Discover active competitions in this discipline
The International Standard for Design Portfolios
The Global Benchmark for Architecture Dissertation Awards
The Global Benchmark for Graduation Excellence
Challenge to reimagine the Iron Throne
Comments (0)
Please login or sign up to add comments
No comments yet. Be the first to comment!