PMA madhushala Wraps a Pune Co-working Space in a Hand-Carved Sandstone Skin That Breathes
S NINE replaces the glass box with a living facade of red sandstone planters, hand-crafted on site in Talegaon Dabhade, Pune.
On the outskirts of Pune, in Talegaon Dabhade, a district rapidly filling with speculative glass boxes, PMA madhushala has built an argument in stone. S NINE is a 1,596 square meter co-working building whose entire outer envelope is composed of 25mm thick slabs of natural red sandstone, arranged as fins and planters on a modular grid. The facade is not decorative appliqué: it is the building's primary climate strategy, its irrigation infrastructure, and its cultural statement, all fused into a single tectonic system.
What makes S NINE genuinely interesting is its refusal to separate performance from craft. The stone fins were carved on site by local artisans, not fabricated in a factory. The metal members that hold them also carry drip irrigation lines and drainage, feeding every planter by gravity. The result is a building that gets greener, shadier, and cooler over time, the opposite trajectory of the glass curtain walls sprouting around it. PMA madhushala calls it a "breathing organism," which sounds like brochure language until you see the thing in operation across seasons.
A Facade That Works for Its Living



The dominant move here is the planted facade grid. Red sandstone slabs are arranged as angled fins and open planters across a concrete frame that operates independently of the building's main structure. Grasses, vines, and shrubs colonize the planter boxes, creating a semi-permeable skin that filters daylight into diffused rays while cutting direct solar gain. In Pune's hot semi-arid climate, where conventional buildings depend on mechanical cooling to counteract their own glazing, this is a straightforward thermodynamic win.
The asymmetric placement of vegetation ensures the facade is never static. Light, shadow, and plant growth shift the building's appearance through the day and across seasons. PMA madhushala cites an older Pune tradition of balconies with protruding planters, street-facing gardens that celebrated life in transitional spaces. S NINE scales that memory up to an entire building envelope.
Ground Plane and Thresholds



The ground floor reads as a compressed, almost industrial datum: exposed concrete columns, diagonal wire mesh gates, and a corrugated service core for parking. It is deliberately rough, yielding its visual budget to the planted floors above. The corner entrance is marked by a concrete sign and little else, letting the building's volume announce itself. Pedestrians pass beneath palm trees on the street side, encountering the facade at a scale where the stone detailing is legible.
The diagonal steel bracing visible at the entry creates a layered threshold, framing views through to planted concrete planters and establishing a rhythm of transparency and enclosure that carries through the building. On a tight 470 square meter site, the architects needed every square meter of ground floor for parking and services, so the public gesture happens vertically rather than horizontally.
Parking and the Honest Underbelly


Architects often hide parking behind cladding or bury it underground. PMA madhushala leaves it exposed, using the parking floor as a tectonic canvas: corrugated concrete service boxes, exposed ceiling beams, and leftover sandstone repurposed for compound walls. The zero-waste ethos is not rhetorical. Offcuts from the facade fabrication literally become the walls of the parking level. It is a small gesture with real material consequences on a project where every slab was cut by hand on site.
Stone, Steel, and the Interior Stair


Inside, the material language tightens. The staircase features a textured stone wall with vertical light slots that pull natural light deep into the core, paired with timber treads that soften the ascent. Stone railings throughout the building are sandwiches of two slabs with a concealed stainless steel support, a detail that reduces visible hardware to almost nothing. Toilet and storeroom partitions use 20mm thick basalt slabs, continuing the logic of stone as both structure and finish.
The peripheral column system keeps interiors open and reconfigurable, which is essential for a co-working program where tenants change and layouts evolve. Dedicated service corridors on each floor separate infrastructure from workspace, allowing maintenance access without disrupting occupied areas. It is unglamorous planning, but it is what makes a flexible building actually flexible rather than theoretically so.
Plans and Drawings



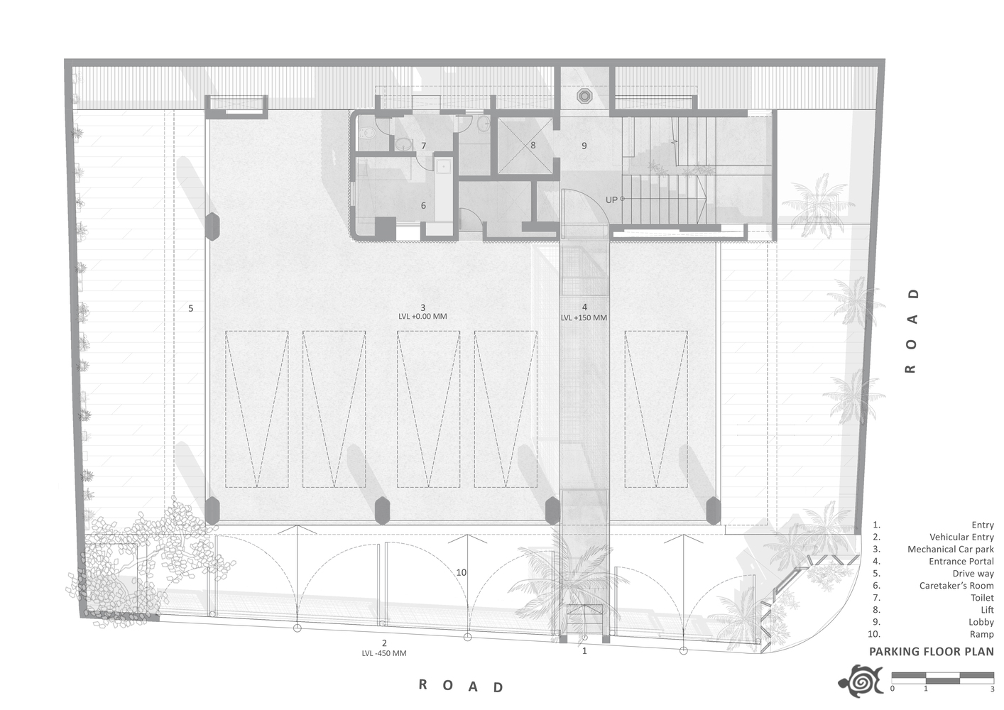
The design development diagram traces a clear sequence: solid massing gives way to a porous, climate-responsive facade through iterative subtraction and modulation. The parking floor plan reveals six angled bays organized around a compact service core, maximizing vehicle capacity on a constrained footprint. The section is the most revealing drawing, showing how the planted facade, service corridors, and ventilation strategies stack across five floors. Natural ventilation pathways move through the planted envelope and up through the building, reducing dependence on mechanical systems.


The facade module evolution diagram deserves close reading. It progresses from a blank concrete wall to a gridded framework to a fully planted screen, illustrating how the stone fins, planters, and openings are assembled into a single modular unit. Because the stone fenestrations are changeable and the planters removable while the concrete frames remain permanent, the system has genuine long-term adaptability. Floors can be reconfigured without touching the primary structure.
Why This Project Matters
S NINE matters because it demonstrates that climate-responsive facades do not require parametric software, imported systems, or enormous budgets. A team of local stone workers, a clear modular logic, and a regionally abundant material produced a building envelope that outperforms the glass curtain walls around it on every environmental metric. The integration of irrigation infrastructure into the structural frame of the facade is a genuinely clever piece of engineering that deserves wider study.
More broadly, PMA madhushala's project is a rebuke to the idea that commercial architecture in India's expanding suburbs must default to the sealed glass box. By grounding its design in Pune's own building traditions, local material supply chains, and on-site craft labor, S NINE shows that specificity and performance can coexist. The building will only improve with age, as vegetation thickens and the stone patinas. That is a rare quality in a co-working space, or any building type.
S NINE Multifunctional Co-working Space by PMA madhushala. Talegaon Dabhade, Pune, Maharashtra, India. Built-up area: 1,596 m². Completed 2022. Photography by Hemant Patil.
About the Studio
Share Your Own Work on uni.xyz
If projects like this are the kind of work you want to make, uni.xyz is a place to publish your own, find collaborators, and enter design competitions.
Popular Articles
Popular articles from the community
20 Most Popular Office Building Projects of 2025
From biophilic workspaces in India to net-positive energy offices in New Delhi, 20 office building projects that defined architecture in 2025.
Goldstein Heather Doubles a Victorian Terrace in West London with a Four-Storey Lateral Extension
A 244 square metre addition in Stamford Brook transforms a narrow end-of-terrace house into a 500 square metre family home of sculpted arches and daylight.
Studio Gram Unfurls a Concrete Curve Through an Adelaide Queen Anne Villa
In Rose Park, a billowing concrete threshold stitches a century-old house to a sun-chasing pavilion organized around an existing pool.
20 Most Popular Furniture Design Projects of 2025
Modular street systems, parametric benches, and insect hotels: the furniture design projects that captivated architects on uni.xyz in 2025.
Similar Reads
You might also enjoy these articles
Olio Towers: A Mid-Rise for Performers That Fuses Housing, Rehearsal, and Stage
Located blocks from Houston's Theater District, this modular tower stacks living units around a central performance atrium.
Oasis: Modular Green Housing Carved into Dhaka's Urban Fabric
A shortlisted Plugin Housing entry reclaims unauthorized settlements in Dhaka with stepped concrete volumes, green roofs, and ventilation-driven design.
Black Hole: A Floating Megastructure for the Post-Physical Era
Emiliano Mazzarotto envisions a spherical, self-scaling arena where e-sports, digital hotels, and holographic stadiums replace traditional public space.
Compact & Sustainable Living in Piraeus: A Four-Level Family Home Built Around Light and Air
A narrow townhouse in one of Greece's densest port cities uses a central atrium and passive strategies to house three generations under one roof.
Explore Architecture Competitions
Discover active competitions in this discipline
The International Standard for Design Portfolios
The Global Benchmark for Architecture Dissertation Awards
The Global Benchmark for Graduation Excellence
Challenge to reimagine the Iron Throne
Comments (0)
Please login or sign up to add comments
No comments yet. Be the first to comment!