Scaffold House: A Harmonious Blend of History and Modernity
Exploring Scaffold House by António Costa Lima Arquitectos: A masterful fusion of historical preservation and contemporary extension in Lisbon, enhancing living spaces and views.
Nestled in the historic heart of Lisbon, Portugal, the Scaffold House by António Costa Lima Arquitectos stands as a testament to the delicate balance between preservation and innovation. Completed in 2023, this project rejuvenates a semi-detached home, marrying its historical elements with contemporary interventions. The essence of this transformation is captured in the keyword "contemporary extension."



Design Philosophy
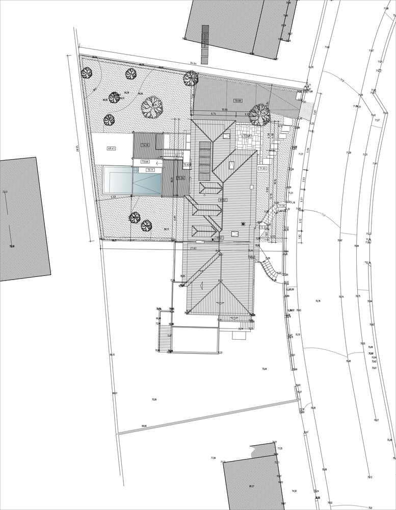
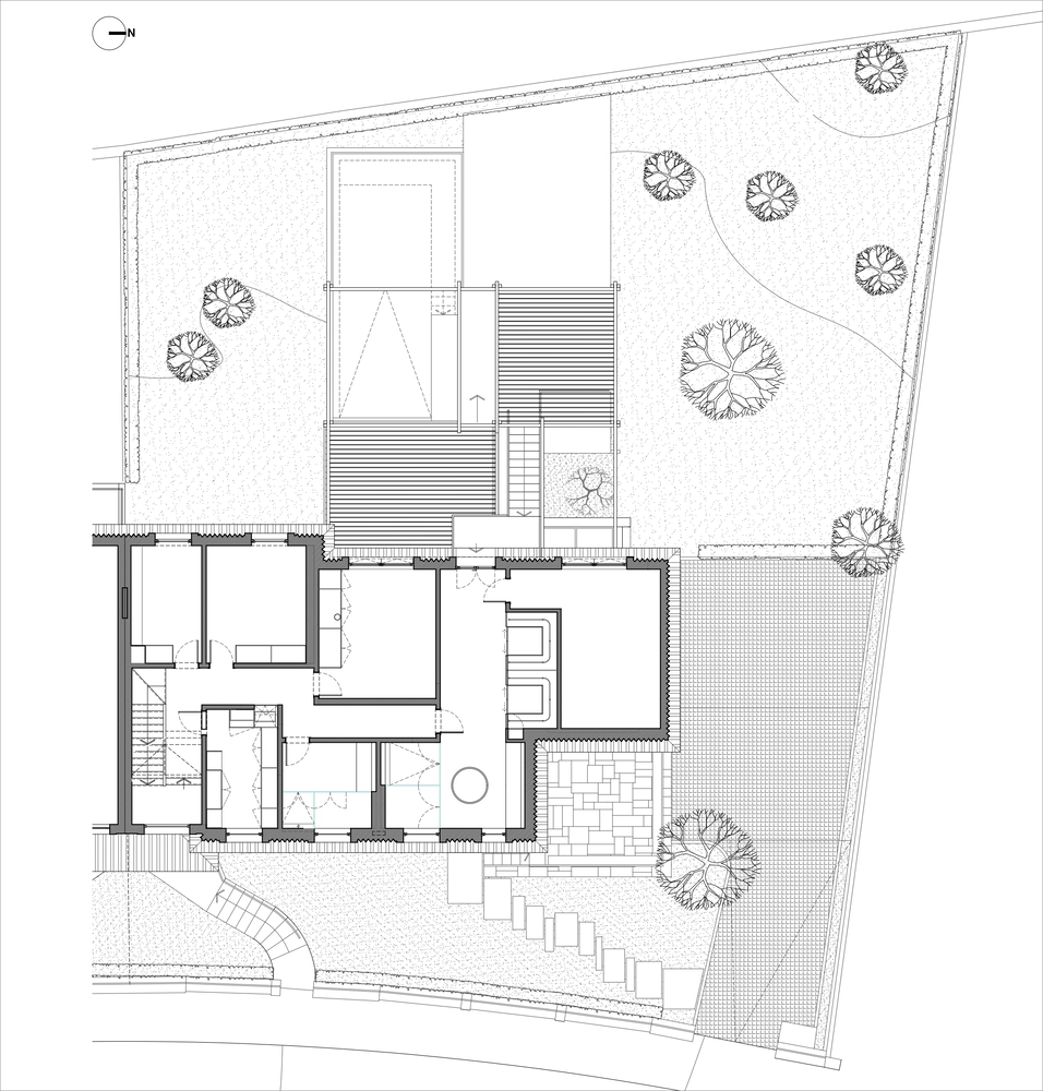
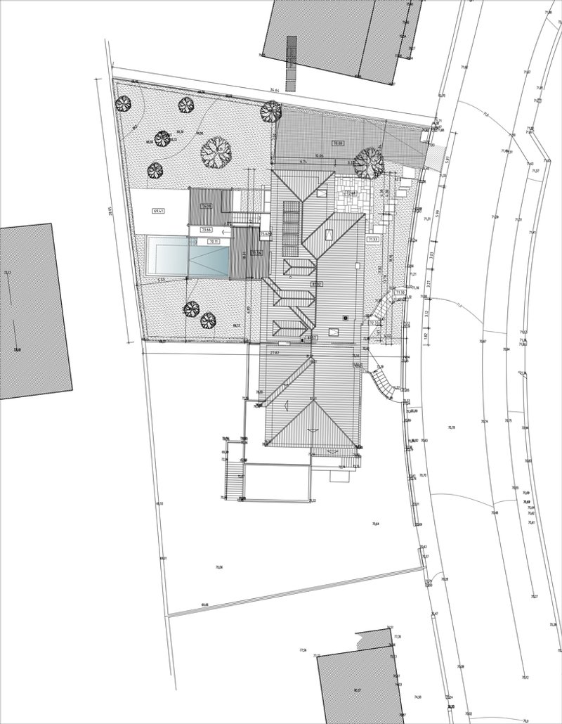
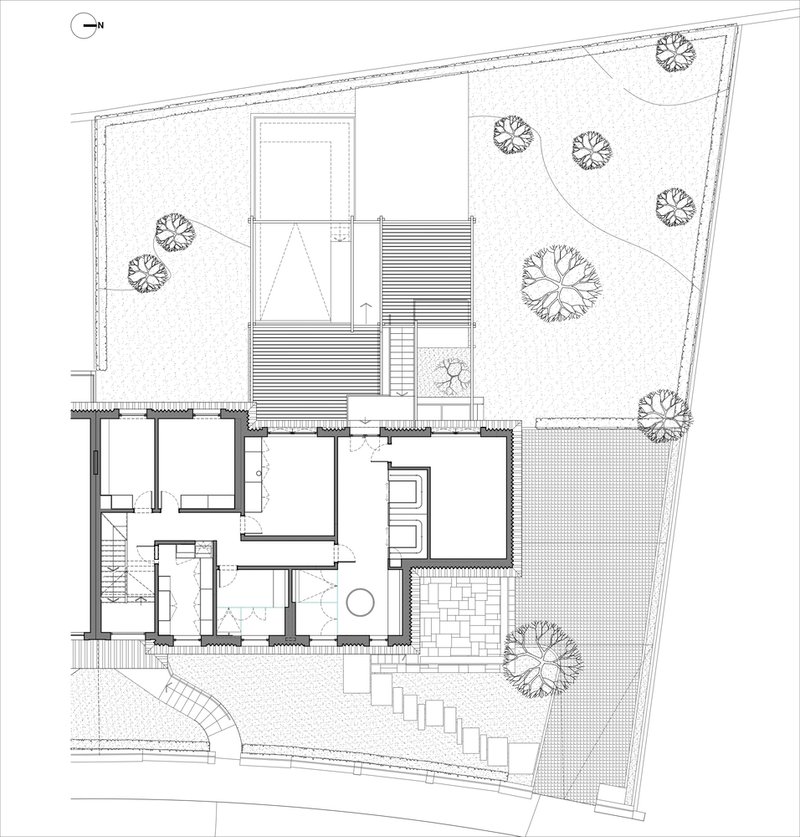
The architectural narrative of Scaffold House is rooted in the contrast between its original features and the modern additions. The project's cornerstone lies in rejuvenating the building's significant aspects—its main façade and the distinct mansard roof—while weaving in a modern structural skeleton that expands the living space into the outdoors, enhancing the garden and views.







Structural Skeleton and Spatial Reconfiguration
The new structural framework is pivotal, introducing a series of external spaces that redefine the home's interaction with its surroundings. This skeleton not only supports the physical expansion of the house but also fosters a new dialogue between the interior and the garden, between the private and the panoramic.







Interior Preservation and Enhancement
A key component of the renovation is the meticulous preservation of the house's internal volume and the restoration of existing finishes. This approach ensures that the soul of the home remains intact while adapting to contemporary living standards.





Historical Identity and Contemporary Dialogue
The Scaffold House project excels in highlighting the dwelling's historic identity, creating a symbiotic relationship between the past and the present. The contemporary extension, with its clear and respectful delineation from the original structure, serves as a modern backdrop that elevates the house's architectural narrative.










António Costa Lima Arquitectos' Scaffold House is a masterful example of how modern architecture can complement and enhance historical properties. Through thoughtful interventions and a deep respect for the original structure, the project stands as a beacon of architectural harmony, seamlessly integrating the old with the new in the heart of Lisbon.








All photographs are work of Francisco Nogueira
Popular Articles
Popular articles from the community
BICA Arquitectos Buries a Coastal Home in a Man-Made Dune on Portugal's Tróia Peninsula
A 300-square-meter house of timber, sand mortar, and travertine dissolves into the dune landscape it helped regenerate on the Alentejo coast.
20 Most Popular Office Building Projects of 2025
From biophilic workspaces in India to net-positive energy offices in New Delhi, 20 office building projects that defined architecture in 2025.
boq architekti Fits a Gabled Family House onto a Tiny Moravian Hillside Plot with No Room for a Garden
A 115 square meter home in South Moravia trades a garden for a rooftop terrace and a fully glazed facade facing the village below.
1-1 Architects Builds a Nagoya House and Office from Decades of Stockpiled Timber
A 69-square-meter tower in dense residential Nagoya transforms surplus lumber into a home and workplace for a construction company.
Similar Reads
You might also enjoy these articles
Bamboo Housing Challenge 2026: Design Affordable, Sustainable Homes Using Bamboo
An international design competition by Bamboo U and IBUKU inviting architects and designers to reimagine affordable housing using bamboo — with the winning design built full-scale in Bali.
Computational Design & Education: Beegraphy Design Awards Introduces 7th Category (Featuring Jiyun's Innovative Approach)
Dive into Beegraphy’s 7th Design Awards category, where computational design meets education to create immersive, interactive learning tools, inspired by Jiyun’s work.
From Parametric Lighting to Urban Furniture: Join the 2nd Workshop in Beegraphy’s Computational Design Series
Dive into Cutting-Edge Design Techniques and Practical Applications with Industry Experts
Introducing Sphere by UNI: Pioneering a New Era in AEC Industry
Unlocking Global Potential with BIM and Agile Management
Explore Architecture Competitions
Discover active competitions in this discipline
The International Standard for Design Portfolios
The Global Benchmark for Architecture Dissertation Awards
The Global Benchmark for Graduation Excellence
Challenge to reimagine the Iron Throne
Comments (0)
Please login or sign up to add comments
No comments yet. Be the first to comment!