Shekou Cultural and Sports Park Architecture: A Human-Centered Design by Tanghua Architects
An in-depth look at Shekou Cultural and Sports Park’s architecture by Tanghua Architects, blending public space, climate response, and community.
Redefining Public Spaces Through Architectural Integration
Shekou Cultural and Sports Park, designed by Tanghua Architects, presents a transformative vision for urban recreational infrastructure in Shenzhen. Situated on reclaimed land amidst high-density residential communities, this 21,547-square-meter project exemplifies a paradigm shift from iconic forms toward immersive, human-scaled environments. The park and its architectural centerpiece foster inclusivity, adaptability, and spatial harmony between the built environment and natural elements.



Harmonizing Landscape and Architecture in Shenzhen
In contrast to past tendencies toward exaggerated civic structures, the design approach at Shekou Cultural and Sports Park emphasizes the experience of space, accessibility, and community engagement. The site is divided equally between open parkland and a modernist building that blends seamlessly into its environment. Undulating lawns, meandering pathways, and open plazas encourage a variety of social activities, transforming the park into a dynamic civic venue.





A Building That Extends the Urban Fabric
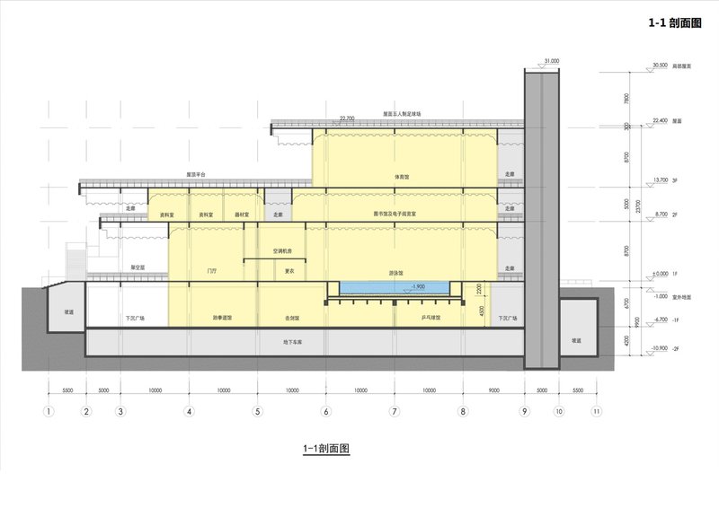
The main structure occupies the eastern half of the site and is shaped by the needs of Southern China’s humid climate. Horizontal platforms and layered terraces draw the city and park into the building, effectively blurring the lines between indoors and outdoors. Its open-air configuration maximizes ventilation and natural shading, while service cores are strategically housed in vertical concrete shafts to maintain spatial clarity and openness.




Vertical Transparency with Functional Logic
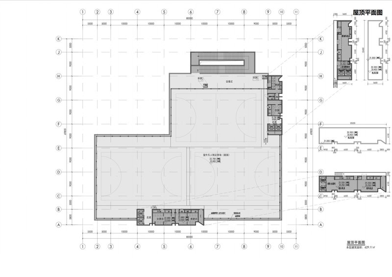
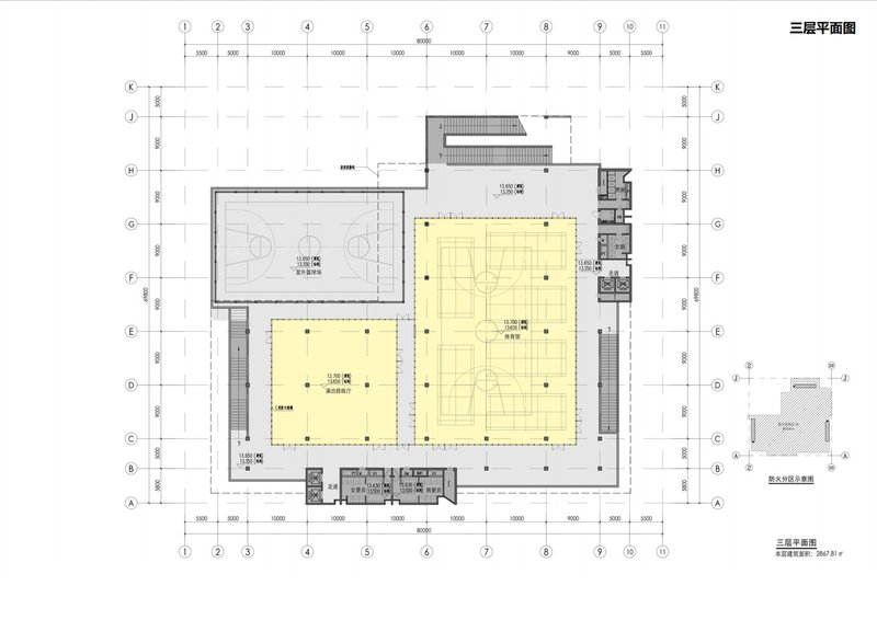
This three-level structure follows a high-low-high organization that supports its integrated "sports-culture-sports" programming. The architectural layout allows continuous public access even when internal facilities are closed, maintaining civic engagement at all times. A sunken plaza in the basement level introduces daylight and airflow, enriching the visitor experience and activating underutilized space. Each stair and platform is scaled for comfort, ensuring an intuitive spatial flow.


Material Language and Modular Expression
The architectural expression is grounded in a 1x1 meter modular system, highlighting the logic of construction and materiality. Concrete surfaces interact with metallic precision, distinguishing structural from non-structural components. Integrated ceiling ducts and boundary vents enhance spatial continuity, especially on the second floor, where indoor and outdoor spaces merge through seamless design transitions.




Contemporary Pavilion with Cultural Resonance
While strikingly modern, the building’s open volumes and elevated vistas evoke the spatial experience of traditional Chinese pavilions. The park’s pathways and green spaces, inspired by classical garden design, create a layered, experiential landscape. Inside, design choices reflect the distinct needs of each space: the swimming pool features marine tones, while cultural areas on the second floor are enriched with warm wood textures for a sense of calm and focus.




Interior Contrasts and Community Activation
Interior programs are tailored to serve a diverse population. The bookstore contrasts its spatial fluidity with the structural grid, creating a unique reading environment. Sports zones burst with vivid color, set against the muted palette of the building. This interplay energizes the interior spaces and enhances user engagement. Since its inauguration, the park has become a vital hub for residents, offering dance spaces, play zones, and educational events that serve nearby schools and broader Shenzhen communities.



A Blueprint for Future Urban Parks
Shekou Cultural and Sports Park stands as a model for future civic architecture—where inclusivity, environmental responsiveness, and aesthetic precision converge. By prioritizing community experience and architectural clarity, Tanghua Architects have created a space that celebrates both urban life and cultural expression in a sustainable, forward-looking way.


All Photographs are works of Chao Zhang
Popular Articles
Popular articles from the community
An Miên Lumière Cafe by xưởng xép, Ho Chi Minh City, Vietnam
An industrial-inspired café where layered steel and warm light create a dynamic, immersive environment shaped by reflection, depth, and perception.
Treehouse Apartment: A Warm Timber Interior Blending Craft, Play, and Contemporary Living
Warm timber apartment with integrated treehouse, combining natural materials, craftsmanship, and playful design to create a flexible, family-oriented living environment.
Atelier Macri Concept Store Interior Design by CASE-REAL
Atelier Macri store features a "ko" counter, walnut wood details, cork displays, blending retail, gallery, and seamless customer experiences.
A Contemporary Take on Iranian Residential Architecture
A modern interior design in Mashhad that reinterprets brick, light, and spatial flow to create a warm, contemporary residential architecture.
Similar Reads
You might also enjoy these articles
Bamboo Housing Challenge 2026: Design Affordable, Sustainable Homes Using Bamboo
An international design competition by Bamboo U and IBUKU inviting architects and designers to reimagine affordable housing using bamboo — with the winning design built full-scale in Bali.
Computational Design & Education: Beegraphy Design Awards Introduces 7th Category (Featuring Jiyun's Innovative Approach)
Dive into Beegraphy’s 7th Design Awards category, where computational design meets education to create immersive, interactive learning tools, inspired by Jiyun’s work.
From Parametric Lighting to Urban Furniture: Join the 2nd Workshop in Beegraphy’s Computational Design Series
Dive into Cutting-Edge Design Techniques and Practical Applications with Industry Experts
Introducing Sphere by UNI: Pioneering a New Era in AEC Industry
Unlocking Global Potential with BIM and Agile Management
Explore Architecture Competitions
Discover active competitions in this discipline
The International Standard for Design Portfolios
The Global Benchmark for Architecture Dissertation Awards
The Global Benchmark for Graduation Excellence
Challenge to reimagine the Iron Throne
Comments (0)
Please login or sign up to add comments
No comments yet. Be the first to comment!