Shore House by Stanley Office of Architecture: A Modern Lake House in Canada’s Forested Landscape
Shore House in Nelson, Canada blends regional modernism, natural materials, and cantilevered design, creating a family retreat suspended above Kootenay Lake.
Perched dramatically on the forested slopes overlooking Kootenay Lake in Nelson, Canada, the Shore House by Stanley Office of Architecture is a striking example of how regional modern design can harmonize with rugged natural landscapes. This modern lake house in Canada responds directly to the steep topography, using cantilevered structures, deep foundations, and natural materials to blend into its environment while offering a unique treetop living experience.



Architecture Rooted in Place
The design concept is inspired by both the powerful presence of the lake and the towering cedar and fir trees surrounding the site. The home evokes the image of an osprey perched above shimmering waters, suspended lightly among the tree canopy yet grounded by strong concrete foundations. Its architectural language reflects a regional modern aesthetic, merging contemporary forms with materials that speak to the local context.




Material Expression and Construction Details
Natural and durable materials define the identity of Shore House. Douglas Fir glulam beams support the sweeping roofline, while Western Red Cedar warms the ceilings and soffits. Alaskan Yellow Cedar lines the entrance footbridge and sunscreens, creating a tactile connection to the forest. Concrete foundations and chimneys anchor the home into the steep slope, while steel beams extend the cantilevered decks outward, framing dramatic lake views. The muted exterior palette allows the structure to recede into the forest rather than compete with it.



Living Among the Treetops
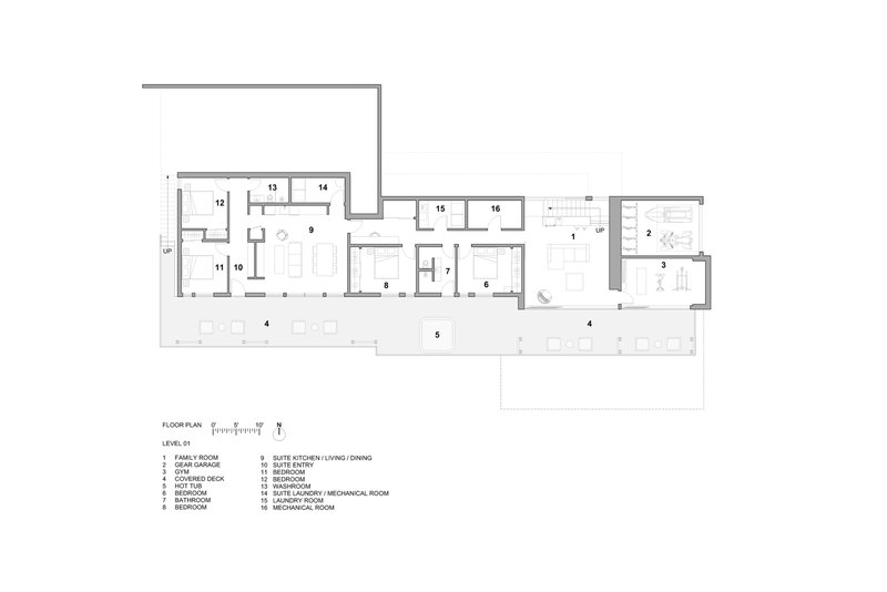
Inside, the home is designed as both a welcoming family retreat and a place for larger gatherings. Expansive glazing opens the living-dining-kitchen area to the outdoors, blurring the boundary between inside and out. A gently rising roofline directs the gaze toward the lake, while sliding doors connect directly to cantilevered decks. A custom millwork kitchen and a concrete fireplace form the heart of the living spaces, grounding the interiors with warmth and permanence.





Private and Recreational Spaces
The more intimate areas of the home, including bedrooms and bathrooms, are nestled among the treetops, offering serene framed views of forest and water. Shore House also integrates lifestyle-specific amenities such as a gym, gear garage, and even a year-round basketball hoop, made possible by the deep foundations required for the site’s geotechnical stability. This blending of recreation, family life, and architectural precision creates a residence uniquely tailored to its owners.




Regional Modernism on the Lakefront
Beyond its role as a family home, Shore House exemplifies how modern lake houses in Canada can respond meaningfully to site and climate. Details like “ganged” rain chains reference the modernist heritage of nearby hot springs, embedding regional cultural memory into the design. Its robust construction and site-sensitive engineering solutions ensure longevity, while its organic integration with the natural environment creates a sense of timeless belonging.



The Shore House in Nelson, Canada, by Stanley Office of Architecture, is more than a residence. It is an architectural statement that bridges modern design with regional heritage, geotechnical precision with natural beauty, and private family life with the expansive drama of the Canadian landscape. As a model of modern lake house design in Canada, it demonstrates how architecture can both embrace and elevate the experience of living among trees and overlooking water.


All Photographs are works of Addison Rickaby
Popular Articles
Popular articles from the community
Flamboyant House by Juliana Camargo + Prumo Projetos
Modern Brazilian house integrating existing tree, pool, and volumes with glass, wood, and transitional spaces blending interior, exterior, and landscape seamlessly.
Solar Steam: A Climate-Responsive Architecture That Redefines the Monument
A climate-responsive memorial architecture that transforms heat, decay, and time into a living system reflecting humanity’s ecological impact.
An Miên Lumière Cafe by xưởng xép, Ho Chi Minh City, Vietnam
An industrial-inspired café where layered steel and warm light create a dynamic, immersive environment shaped by reflection, depth, and perception.
Treehouse Apartment: A Warm Timber Interior Blending Craft, Play, and Contemporary Living
Warm timber apartment with integrated treehouse, combining natural materials, craftsmanship, and playful design to create a flexible, family-oriented living environment.
Similar Reads
You might also enjoy these articles
Bamboo Housing Challenge 2026: Design Affordable, Sustainable Homes Using Bamboo
An international design competition by Bamboo U and IBUKU inviting architects and designers to reimagine affordable housing using bamboo — with the winning design built full-scale in Bali.
Computational Design & Education: Beegraphy Design Awards Introduces 7th Category (Featuring Jiyun's Innovative Approach)
Dive into Beegraphy’s 7th Design Awards category, where computational design meets education to create immersive, interactive learning tools, inspired by Jiyun’s work.
From Parametric Lighting to Urban Furniture: Join the 2nd Workshop in Beegraphy’s Computational Design Series
Dive into Cutting-Edge Design Techniques and Practical Applications with Industry Experts
Introducing Sphere by UNI: Pioneering a New Era in AEC Industry
Unlocking Global Potential with BIM and Agile Management
Explore Architecture Competitions
Discover active competitions in this discipline
The International Standard for Design Portfolios
The Global Benchmark for Architecture Dissertation Awards
The Global Benchmark for Graduation Excellence
Challenge to reimagine the Iron Throne
Comments (0)
Please login or sign up to add comments
No comments yet. Be the first to comment!