Social Studio sparks meaningful connections through creativity
How can art and design be used to create positive social change?

The rising land prices in the greater Freiburg area have made it difficult to acquire multi-family property for residential purposes. However, STUDIO SOZIA TINA, an architecture firm, has found a solution to this problem by developing a commercial property that can be converted into apartments in the future.
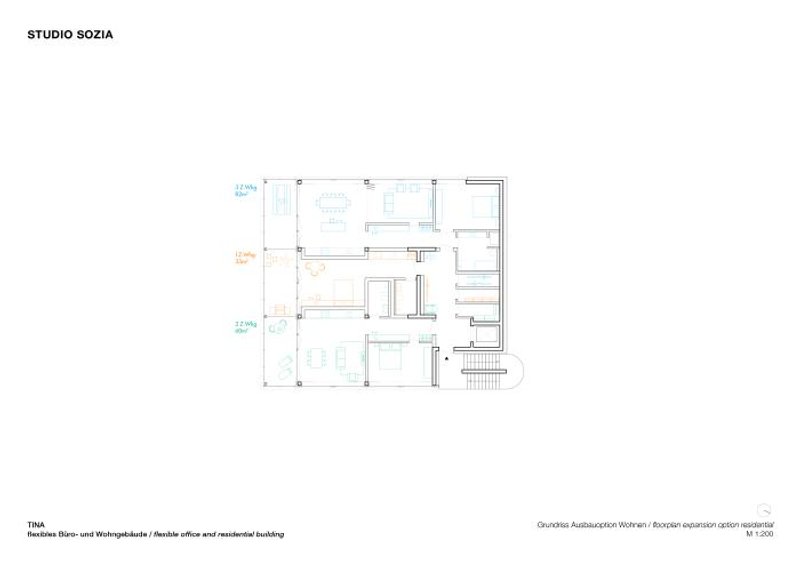
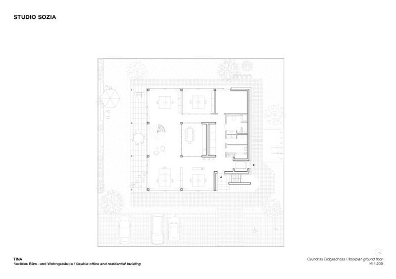
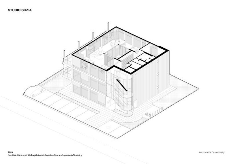
The building is a free-standing, three-storey solitaire with a unique geometry that is based on the surrounding developments of the new commercial area. The building has been designed to be flexible, allowing for the creation of variable office and apartment sizes. The project also includes a semi-circular stair landing that breaks up the clear geometry of the volume, marks the entrances to the individual units, and serves as a communicator in the surrounding urban space.
The functional concept of the building is based on a 5x5 meter load-bearing grid that transforms the building from a closed wall panel in the north to an open support structure in the south, with an adjoining, spacious outdoor area. This structural transformation makes it possible to create a resource-efficient, long-lasting supporting structure that enables maximum flexibility in use and zoning.
The building's spatial concept is based on the centralization of service rooms such as toilets, storage, and technology on the closed north wall. All work areas are oriented around the heart of the kitchen, creating a communicative place of exchange. The outdoor areas in the south are used for relaxation, informal exchange, and temporary workspace.
The building's facade design reflects the conceptual guiding principle of the transformation. The north facade appears completely opaque with a rear-ventilated trapezoidal sheet metal facade, while the west and east facades open up to the surroundings with large window elements. The south-facing balconies and terrace form the conclusion and the second physical interface to the outside space.
STUDIO SOZIA TINA has designed the building with special attention to the unburned-ling potential of the construction. The facade can be easily upgraded to the current status even if requirements change in the future, making the building a functionally sustainable and future-oriented structure.
The building is an innovative solution to the housing crisis in Freiburg, providing a flexible and efficient design that can adapt to future changes. STUDIO SOZIA TINA has created a building that is not only practical but also visually stunning, revitalizing the surrounding commercial area with its use of industrial quality components and a high proportion of glass in the facade.



























Architects: STUDIO SOZIA
Area: 835 m²
Year: 2022
Photographs: Kim Fohmann
Manufacturers: Jakob, Giro, RAICO
Building Services Engineer: Ingenieurbüro für Gebäudetechnik Uwe Häberle
Structural Design: Mohnke Höss Bauingenieure
Design And Project Leaders: Valerio Calavetta, Lisa Häberle
City: Breisach
Country: Germany
Popular Articles
Popular articles from the community
An Miên Lumière Cafe by xưởng xép, Ho Chi Minh City, Vietnam
An industrial-inspired café where layered steel and warm light create a dynamic, immersive environment shaped by reflection, depth, and perception.
Inverted Architecture Installation by Studio Link-Arc: Exploring the Intersection of Architecture and Living Organisms
Inverted Architecture Installation by Studio Link-Arc blends mycelium, sustainability, inverted design, ecological cycles, and urban adaptive architecture in Shenzhen.
Treehouse Apartment: A Warm Timber Interior Blending Craft, Play, and Contemporary Living
Warm timber apartment with integrated treehouse, combining natural materials, craftsmanship, and playful design to create a flexible, family-oriented living environment.
On the Brooks House by Monsoon Collective – A Contemporary Kerala Home Rooted in Tradition
Kerala home blending tradition and modernity with water-inspired design, brick architecture, courtyard planning, and sustainable rainwater harvesting strategies.
Similar Reads
You might also enjoy these articles
Zhuxi Wonderland: Reimagining Traditional Chinese Gardens by Doarchi Architects
Zhuxi Wonderland by Doarchi Architects reinterprets traditional Yangzhou gardens, integrating courtyards, pavilions, and tea houses in modern cultural design.
Doble Soga House: A Contemporary Brick Residence Rooted in Landscape in Quito, Ecuador
Brick house in Quito integrating nature, flexible living spaces, exposed materials, and rooftop terrace, creating warm contemporary architecture for modern family life.
Al Gharra Mosque in Medina Redefining Contemporary Islamic Architecture
Minimalist Medina mosque using concrete, light, and landscape to reinterpret Islamic worship spaces through symbolic spiritual transitions and contemporary architecture.
Viczonecode Villa by DDconcept – Tropical Family Living in Ho Chi Minh City
Tropical family villa in Ho Chi Minh City featuring courtyards, skylights, natural ventilation, elevated flooring, and seamless indoor–outdoor living surrounded by greenery.
Explore Architecture Competitions
Discover active competitions in this discipline
The International Standard for Design Portfolios
The Global Benchmark for Architecture Dissertation Awards
The Global Benchmark for Graduation Excellence
Challenge to reimagine the Iron Throne
Comments (0)
Please login or sign up to add comments
No comments yet. Be the first to comment!