Spalihof Houses Switzerland: Sustainable Village Densification by Seilerlinhart
Spalihof Houses in Switzerland combine sustainable timber design, historic preservation, and community-oriented spaces, redefining rural densification for future living.
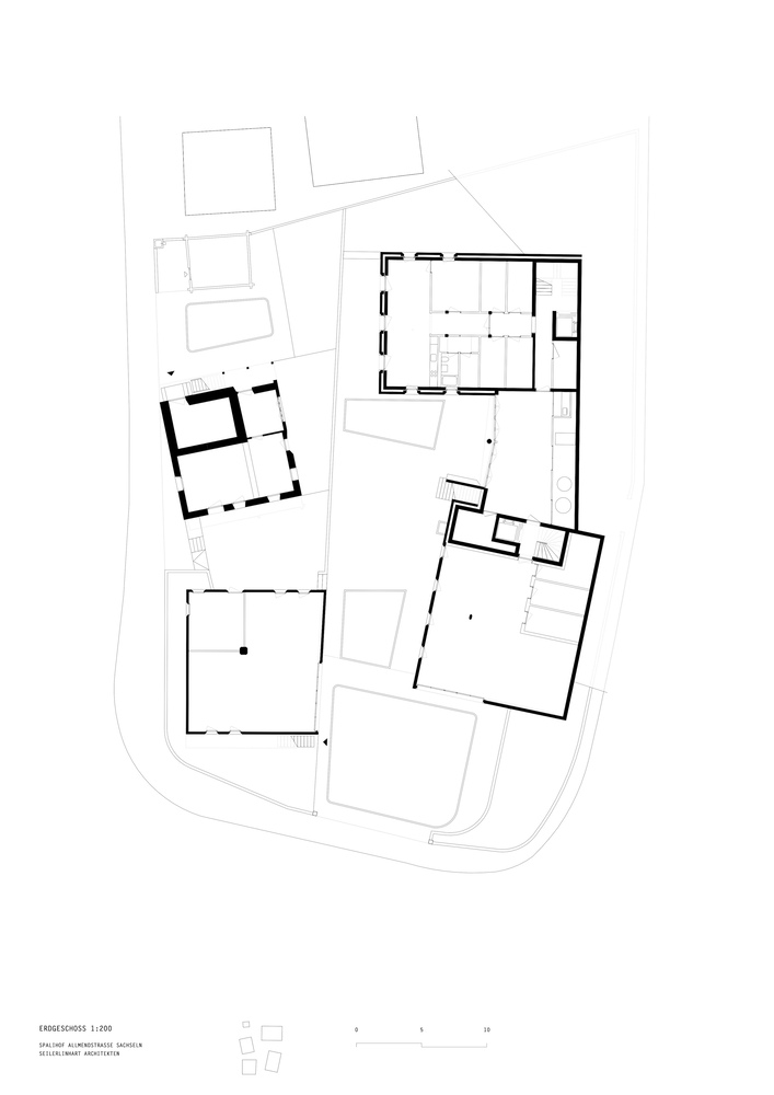
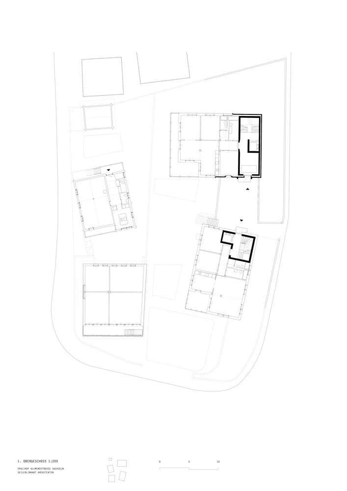
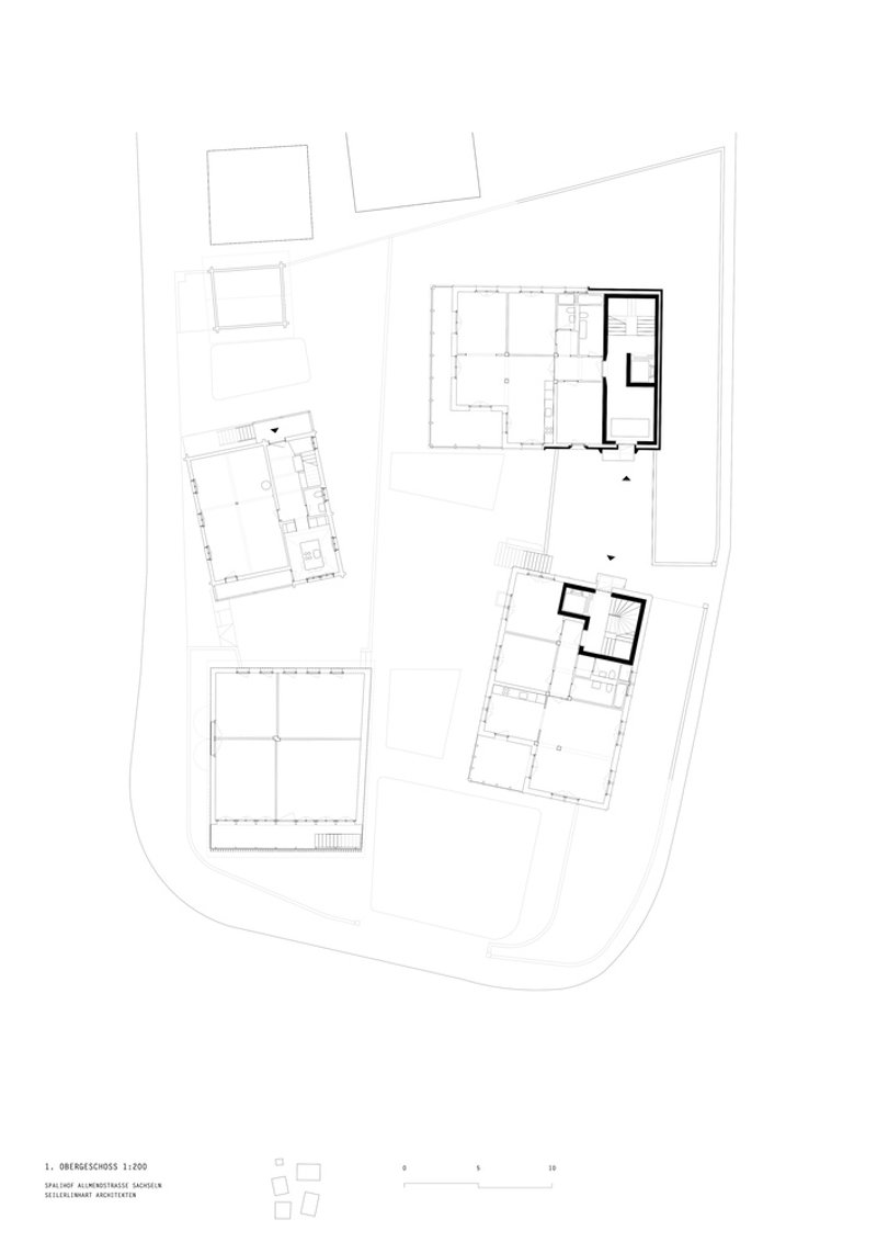
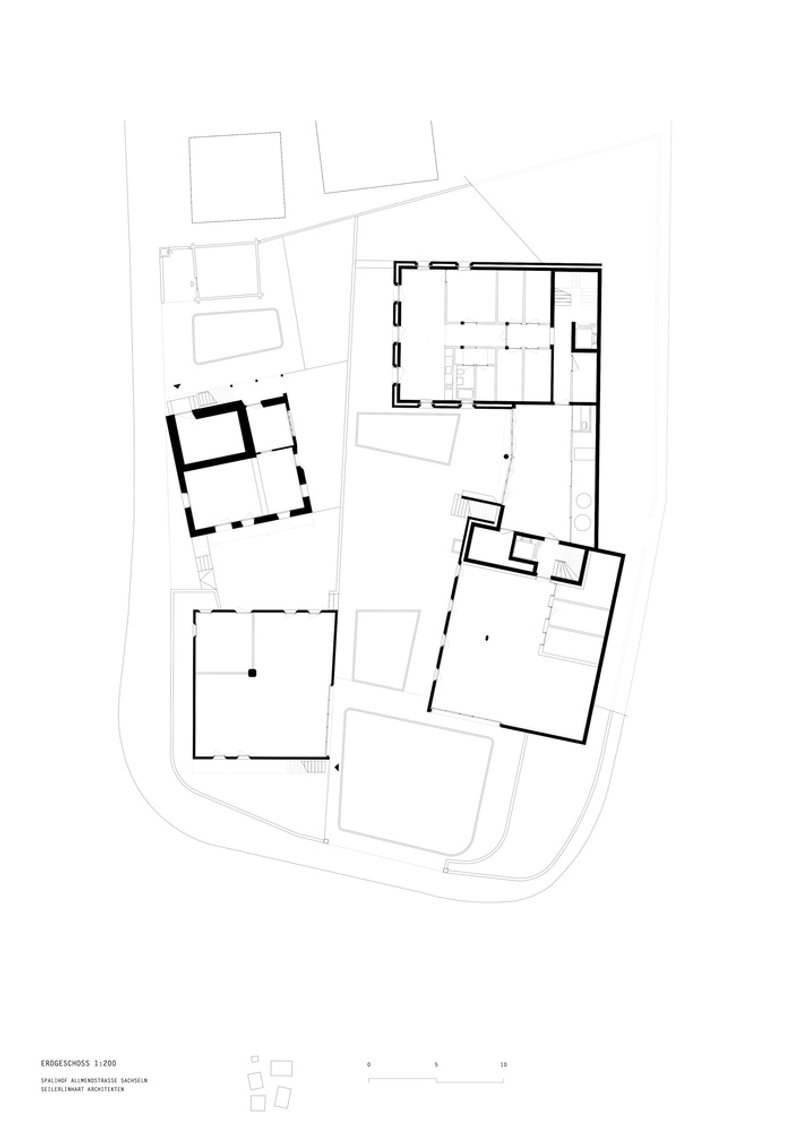
The Spalihof Houses in Sachseln, Switzerland, designed by Seilerlinhart, represent an innovative approach to village densification that harmonizes contemporary living with heritage preservation. By integrating three new timber buildings with the historic Spalihaus dating back to 1463, this project addresses one of the most pressing issues in rural development: how to accommodate larger residential volumes within a small-scale, culturally sensitive context.




Densification Challenges and Design Response
Village densification often creates tension between the need for additional housing and the preservation of traditional character. The Spalihof project demonstrates that thoughtful architectural strategies can reconcile these competing demands. Instead of isolating new structures, the design clusters them around the historic building, forming shared outdoor spaces accessible to the public. This spatial composition strengthens neighborhood cohesion and activates semi-public courtyards, making densification a socially and environmentally responsive process.




Integration of Historic and Contemporary Architecture
Central to the project is the sensitive restoration and integration of the Spalihaus, a heritage building from 1463. Rather than overshadowing the historic structure, the new houses adopt a complementary aesthetic grounded in timber construction, reflecting Switzerland’s enduring tradition of wooden architecture. These buildings stand on solid bases that mediate the natural topography, creating an architectural dialogue between old and new while preserving the cultural narrative of the site.




Sustainable Materiality and Environmental Considerations
Sustainability was a guiding principle for the Spalihof development. Wood serves as the primary building material for the new structures, not only for its renewable qualities but also for its tactile warmth and historical resonance. Unlike conventional underground parking solutions that involve high carbon emissions and soil sealing, parking for residents has been pragmatically integrated into the bases of two new buildings. This approach minimizes environmental disruption while maintaining functional convenience.




Program Diversity and Community Strength
The Spalihof Houses embrace a mixed-use strategy by offering a wide range of apartment sizes, along with commercial and communal spaces. This diversity encourages a heterogeneous population and fosters intergenerational coexistence, reinforcing neighborhood vitality. Shared spaces, both indoors and outdoors, promote community interaction and create a sense of belonging—key goals in contemporary housing design.




Architectural Language and Spatial Quality
The architectural expression of the new houses combines minimalist detailing with traditional proportions. Generous glazing and timber surfaces create interiors that feel open, warm, and connected to nature. The interplay between the robust stone bases and the light wooden structures above them not only resolves topographical challenges but also delivers a distinctive visual identity rooted in local context.



A Model for Rural Transformation
The Spalihof project offers a replicable blueprint for rural densification without compromise. By preserving historic assets, leveraging sustainable materials, and integrating functional amenities, the project demonstrates that growth can coexist with heritage and ecological stewardship. It challenges the conventional narrative of urbanization, proving that rural villages can evolve without erasing their cultural DNA.




The Spalihof Houses in Switzerland exemplify how architectural design can mediate between the past and the future. Through its integration of the historic Spalihaus, sustainable timber construction, and diverse housing solutions, Seilerlinhart has created a vibrant, inclusive, and environmentally responsible neighborhood that sets a benchmark for future rural development initiatives.




All the photographs are works of Rasmus Norlander
Popular Articles
Popular articles from the community
The Ken Roberts Memorial Delineation Competition (Krob)
As the most senior architectural drawing competition currently in operation anywhere in the world, it draws hundreds of entries each year, awarding the very best submissions in a series of medium-based categories.
Solar Steam: A Climate-Responsive Architecture That Redefines the Monument
A climate-responsive memorial architecture that transforms heat, decay, and time into a living system reflecting humanity’s ecological impact.
Gads Hill Early Learning Center by JGMA: Adaptive Reuse Shaping Community-Focused Educational Architecture
Adaptive reuse transforms fragmented structure into vibrant early learning center with playful façade, natural light, and community-focused sustainable design.
Similar Reads
You might also enjoy these articles
Free Architecture Competitions You Can Enter Right Now
No entry fees, real prizes. Here are the best free architecture competitions open for submissions in 2026.
Top 15 Architecture Competitions to Enter in 2026
From student-friendly idea competitions to prestigious international awards, here are the best architecture competitions open for entries in 2026. Updated regularly.
DIY & Engineering in Computational Design : Enter the BeeGraphy Design Awards
Showcase Your Creativity with Computational Design and Open Source Projects

Innovative Design Solutions: Award-Winning Projects from Recent Architecture Competitions
Exploring award-winning architectural projects shaping the future of design, sustainability, and community.
Explore Architecture Competitions
Discover active competitions in this discipline
The International Standard for Design Portfolios
The Global Benchmark for Architecture Dissertation Awards
The Global Benchmark for Graduation Excellence
Challenge to reimagine the Iron Throne
Comments (0)
Please login or sign up to add comments
No comments yet. Be the first to comment!