Step inside the futuristic BSH Headquarters in China designed by Greater Dog Architects and be blown away!
Get ready to be amazed by the mind-bending design of China's BSH Headquarters by Greater Dog Architects!
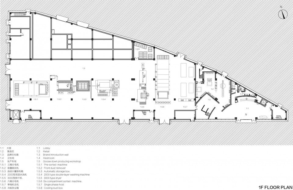
BSH headquarters is located in Shaoxing city, it designed by the Greater Dog Architects.The main building called é é é that emerged in the city by its unique quality. é é é is a comprehensive functional building integrating retail space, office, restaurants,R&D and production, and sightseeing factory. BSH focuses on bedding products which is from high quality goose down. It finished from a series of production processes of raw materials – cleaning – processing – Inspection – filling – labeling. The white linear structure language of building is inspired by the characteristics of “goose down”.

The original building site is triangular. Greater Dog Architects try to break this angular site and combine the softness of goose down to design a soft looking architecture, forming a strong contrast with the surrounding where high-density factory buildings appear, which also makes é é é building a very attractive place in the whole area.

Two–way access is divided by main functions: factory and office. The entrance of the factory area is located in the west of the building, and it is connected with the main entrance by the shortest distance to produce an efficient working access; The outdoor space retreated inside 30 meters is far away from the noise of the main road, and it makes office environment become more independent and quite.Furthermore, the green land guide the people to the southeast of the building where is office &retail space located.

Facade is the interface between indoor and outdoor. It is the attractive part of a elevation, It not only protects the building from external damage, but brings opportunities for an comfortable indoor environment.

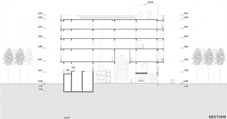
The building is designed as two parts: suspended and solid.Low area as solid concrete, forming a thick and stable building base, and the high area is curtain wall system with gradient translucent glass and white curved aluminum plate.The concrete wall is designed to be retreated, which makes the white curtain wall more transparent and suspended in the air.


In the southwest factory area where the architect applied foggy glass, which visually avoids the chaos inside. At the same time, foggy glass makes the indoor and outdoor vision become hazy, which makes people curious. Inside of the factory area, the central block is removed, so that the producing machines around the atrium, creating a factory under the sky light for workers.

In the southeast area of the building, there are multi-function of interior space: retail, office and restaurant. The architect applied two kinds of glass on facade, gradual translucent glass and transparent glass, to meet the needs of different sunshine demand of interior functions. Meanwhile, it brings a changing visual from hazy to high transparency gradually.


The architect designed the external corridor connecting factory and office area on the third floor. The corridor is suspended on the facade in the form of semi outdoor, which provides more convenient traffic flow for two main areas, and creates a co-work space for people to communicate. Meanwhile, the external corridor brings balance between two different materials: white glass curtain wall and concrete.The supporting structure of curved aluminum plate is clearly with the rise and fall rhythm in the corridor .
Curved aluminum plate has become the main feature of architecture, both emphasized the freedom of white linear form, and presented the potential rhythm by the curve. It seems simple to use the dynamic cutting method, but it shows the infinite possible rhythm of building skin.

In addition, it also forms a dialogue with light: during the day, while the glass reflects the outline of the surrounding trees, buildings and rivers, the curved aluminum plate changes constantly with the projection of sunlight, forming a rich rhythm of light and shadow on the facade, rather than being in a static and isolated combination.

The “white goose down” is in such a poetic way, walking in the gentle breeze, perched on the building. The window opening position has also been accurately considered. By integrating the window opening method in the form of curtain wall, the corresponding positions in different interior spaces have been realized.

Tourism factory and retail space are two completely different spatial design types, and there is a certain different requirements from them. How to meet the functional requirements of two spaces and establish a close connection of circulation: such as the connection between factories and sightseeing routes; the connection between sightseeing and retail spaces; and the sharing space to connect retail and office lobby. These are one of the challenges faced by Greater Dog Architects design team.



The tourist factory satisfies the curiosity of visitors while possessing production effectiveness. The main function of a tourist factory is placed in the production space, and the designer built a factory with “front of the stage” and “behind the scenes” language. Therefore, the designer set up a sightseeing channel for visitors at the southwest entrance of the building, and created a readable exhibition hall inside of factory on the first and second floors.

The sightseeing channel follows the softness of the “Down” in the building. The bright and clean space gives visitor the feeling of stepping into a laboratory with a sense of interest. The round pipe structure was found from the Filling Machine, so the designer apply the translucent pipe in the way of display. Meanwhile, it is also used in the division of two spaces and display systems of various types of “down”. Moreover, the stair hall and display space are formed through the combination of enlarged pipes to realize the diversity of pipe elements which originally from machines.


The translucent green acrylic pipe leads to the space on the second floor. the professional process is displayed through the explanation of the three-dimensional model on wall. Adjacent to the side of the factory, the production process hidden in the “behind the scenes” is transferred to the “front of the stage”. The designer open the factory area by transparent glasses, so that a process of each machine is able to see.It directly shows industrial environment and the functionality of each. And they are clearly marked through signage board.

A display platform with a sense of flow runs through the entire space, and acrylic cans are filled with different kinds of down.Visitors can experience it through multi-sensory experience methods such as “touching”, “smelling” and “seeing”. The designer orderly displays the disassembled machine components in corridor where makes people walk through.The exquisite of industrial technology to present the connection between components and performance, production and technology. The specimen of the goose is placed in a scene of transparent display box, and the dynamic luminescent acrylic lightly and vividly simulates the habitat of the goose.

Factory as the furthest production process from consumers, in contrast, retail has brought brands closer to consumers. The BSH brand has established the bridge between “furthest” and “nearest”, integrating social retail space and immersive sightseeing experience. To present the actual production process to consumers, integrates manufacturing and knowledge, as well as activates the vitality of the factory. Meanwhile, the seamless connection opens the publicity of the factory and customer flow of the retail space.


The white gradient glass continues the main feature of building. Another staircase leading from the tourism factory to retail, it brings different circulation of the upper and lower floors through the multi-directional staircase. A rotatable capsule display box is placed in the center of retail area, with gradient transparent glass vision to dynamically display collection-level products. The suspended round cabinet together with the scene of bedding, forms a three-dimensional display system for the series of bedding products, which brings a change of display rhythm to space. The combination of the acrylic box filled with goose down and the copper-colored metal display shelf adds texture to the display props system while continuing its product identity.


Looking from the retail area to the center of the first floor is office lobby area. The designer breaks the floor slab between the upper retail area and the lower floor, to create an arc-shaped high space, fully extends the height proportion of lobby, and presents more tension in the entrance space.The shape of the reception desk is integrated into the whole elevation, weakening its sense of block and making the lobby more integrated. The capsule-shaped glass inserted in the wall is is transparent and suspended. With the help of specimens to add childlike interest to the space, and it has also become the memory of the brand IP.


Experiential space has become the mainstream of commercial field. Therefore, the emerging flagship factory has also become a place to tell the higher production technology method of brand to public. As a result, factories are becoming as important a representation of brand values as office or retail spaces. While it solves the productivity, it brings more experiences to consumers potentially.


With the coming of night, the rhythmic curtain wall changes from dynamic to static. The LED light clearly outlines the white curved aluminum plate, and stays on the building as soft as a sculpture in the night.



























Project Name: é é é – BSH Brand Headquarters Architectural Design
Construction Area: 18,342 square meters
Project Commission: Best Han Feather Brand
Architectural Design: Big Dog Architectural Design
Chief Designer: Xin Jin, Hu Zhihong
Design Team: Lu Yanbiao, Guo Linang, Gu Liling, Zhang Jing, Wang Jing
Handmade Model: Wang Chenwei Zheng Chenxi
Architecture deepening: Shanghai Urban Architectural Design Co., Ltd. Shaoxing Branch
Construction unit: Zhejiang Rongda Construction Co., Ltd. Project address: No. 2689
, Qiantao Road, Keqiao District, Shaoxing City, Zhejiang Province Architectural Photography: Meng Qingwei, Xie Yilun, Wu Ruozheng
Design time: 2017-2019
Completion Date: 2021,01
Design Website: www.greater – dog.com
Email Contact: greaterdog@yeah.net
Project Name: é é é – BSH Headquarters
Site: 18,342 sqm
Client: BAISIHAN Brand
Design Company: Greater Dog Architects
Lead Architects: Jin XIN, Red HU
Design Team: Yanbiao Lu, Keith Guo, Abigale Gu, Zoe Zhang, Wendy Wang
Model-making: Adv Wang, May Zheng
Construction design: Shanghai Urban Architectural Co., Ltd – Shaoxing office
Constructor: Zhejiang Rongda Construction
Location: No.268 9, Qiantao Road, Shaoxing City, Zhejiang, China
Photo Credits: Qingwei Meng,Y i lun Xie,Wu Ruozheng Year began: 2017
Completion Year: 202 1
Website: www.greater – dog.com
Contact e-mail: greaterdog@ yeah.net